Contact met de makelaar

Deze woning is gevonden buiten ons eigen netwerk. Met de knop hieronder kom je direct bij de aanbieder terecht.

Nieuw

Bandeloodijk

Bekijk kaart
3079 PC Rotterdam (Groot IJsselmonde)
€ 450.000 k.k.
  • 124 m²
  • 6 kamers
  • 1978

Samenvatting

  • Deze woning wordt sinds 23 januari 2026 aangeboden door Woonvisie NVM Makelaars;
  • De tussenwoning heeft een woonoppervlakte van 124 m² en beschikt over 6 kamers, waarvan 5 slaapkamers;
  • De woning is gebouwd In 1978 en ligt in de buurt Groot IJsselmonde in Rotterdam.

Beschrijving

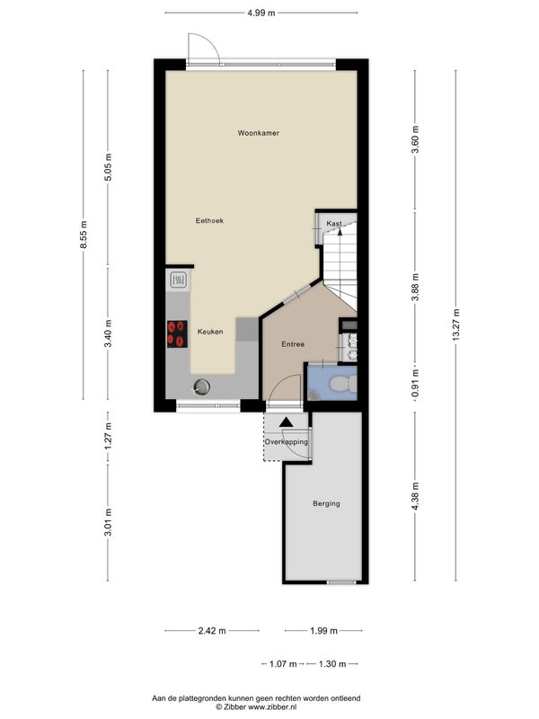
Deze ruime gezinswoning op eigen grond met 5 slaapkamers en een royale achtertuin is ideaal voor uw gezin. De oplevering is gepland voor juli 2026. U komt binnen via de entree/hal die toegang biedt tot de toiletruimte en de meterkast. Aan de voorkant heeft de woning een betegelde voortuin met toegang tot de stenen berging van 7 m². De lichte woonkamer aan de achterzijde leidt naar de verzorgde achtertuin, gelegen op het westen, met een tuinhuis/overkapping. De U-vormige keuken is van moderne apparatuur voorzien.

Op de eerste verdieping vindt u drie slaapkamers en een geheel betegelde badkamer. De tweede verdieping heeft nog twee slaapkamers en bergruimte. Gelegen in de kindvriendelijke wijk Groot-IJsselmonde, dichtbij voorzieningen en met goede bereikbaarheid. De woning is volledig geïsoleerd, met stadsverwarming en heeft energielabel A.

Overdracht

Vraagprijs
€ 450.000 k.k.
Aangeboden sinds
23-01-2026
Status
Beschikbaar
Beschikbaar
Per direct

Oppervlakte en inhoud

Woonoppervlakte
124 m²
Perceeloppervlakte
124 m²

Bouw

Type woning
Huis
Soort woning
Tussenwoning (rijtjeshuis), Eengezinswoning
Soort bouw
Bestaande bouw
Bouwjaar
1978

Indeling

Aantal kamers
6
Aantal slaapkamers
5
Aantal badkamers
1

Buitenruimte

Dakterras
Niet aanwezig

Energie

Energielabel
A
Meld een probleem met deze woning