Contact met de makelaar

Deze woning is gevonden buiten ons eigen netwerk. Met de knop hieronder kom je direct bij de aanbieder terecht.

Benedenstraat

Bekijk kaart
3077 BA Rotterdam (Oud IJsselmonde)
€ 330.000 k.k.
  • 80 m²
  • 3 kamers
  • 1890

Samenvatting

  • Deze woning wordt sinds 30 oktober 2025 aangeboden door Estate Makelaar B.V;
  • De tussenwoning heeft een woonoppervlakte van 80 m² en beschikt over 3 kamers, waarvan 2 slaapkamers;
  • De woning is gebouwd In 1890 en ligt in de buurt Oud IJsselmonde in Rotterdam.

Beschrijving

Overdracht

Vraagprijs
€ 330.000 k.k.
Aangeboden sinds
30-10-2025
Status
Beschikbaar
Beschikbaar
In overleg

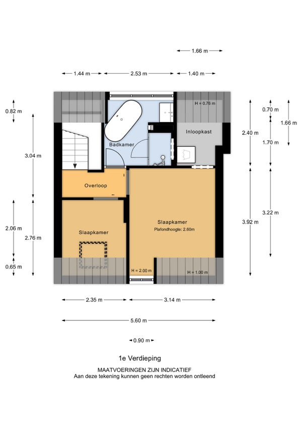
Oppervlakte en inhoud

Woonoppervlakte
80 m²
Perceeloppervlakte
120 m²

Bouw

Type woning
Huis
Soort woning
Tussenwoning (rijtjeshuis), Eengezinswoning
Soort bouw
Bestaande bouw
Bouwjaar
1890

Indeling

Aantal kamers
3
Aantal slaapkamers
2
Aantal badkamers
1

Buitenruimte

Dakterras
Niet aanwezig
Meld een probleem met deze woning