Contact met de aanbieder

Deze woning is gevonden buiten ons eigen netwerk. Via de knop hieronder ga je direct naar de website van de aanbieder.

Plantageweg 14 BN

Bekijk kaart
3061 PJ Rotterdam (Kralingen West)
€ 599.000 k.k.
  • 175 m²
  • 12 kamers
  • 1896

Samenvatting

  • Deze woning wordt sinds 8 weken aangeboden door Schildtvoorde;
  • De tussenwoning heeft een woonoppervlakte van 175 m² en beschikt over 12 kamers, waarvan 8 slaapkamers;
  • De woning is gebouwd In 1896 en ligt in de buurt Kralingen West in Rotterdam.

Beschrijving

Stap binnen in deze verrassend ruime woning met veel kamers en royale leefruimtes, waar de indeling en omvang volop mogelijkheden bieden voor wonen, werken, samenleven of het creëren van uw ideale droomhuis.

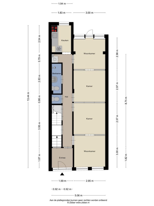
Middels de entree/hal krijgt u toegang tot de verschillende vertrekken en de trapopgang naar de eerste verdieping. In de hal bevinden zich de geheel betegelde badkamer, separate toiletruimte, meterkast en trapkast. De begane grond beschikt over 4 kamers welke volledig naar eigen wens zijn in te richten. Via de achterste kamer krijgt u toegang tot de tuin welke is gelegen op het westen. De dichte keuken bevindt zich aan de achterzijde van de woning.

Op de eerste verdieping bevinden zich in de hal twee geheel betegelde toiletruimtes en een badkamer. De dichte keuken bevindt zich aan de achterzijde van de woning. Op deze verdieping bevinden zich vier slaapkamers. De slaapkamer aan de voorzijde staat in verbinding met de andere slaapkamer d.m.v. een toog. Dit geldt ook voor de twee slaapkamers aan de achterzijde van de woning.

Op zolder bevinden zich de geheel betegelde toiletruimte, badkamer en open keuken. Aan de voorzijde van de woning bevinden zich twee slaapkamers welke met elkaar in verbinding staan d.m.v. een toog. Dit geldt ook voor de slaapkamers aan de achterzijde van de woning.

Gelegen in de populaire en karaktervolle wijk Kralingen-Crooswijk, biedt Plantageweg 14 BN een uitstekende combinatie van rust, bereikbaarheid en stedelijke voorzieningen. Binnen handbereik vindt u alle dagelijkse voorzieningen: supermarkten, speciaalzaken, cafés en restaurants zijn op korte loopafstand, waardoor boodschappen en borrelen om de hoek liggen. Het brede aanbod aan winkels en horeca in Kralingen en Crooswijk zorgt voor een levendige buurt met volop mogelijkheden om te ontdekken. De bereikbaarheid is uitstekend: diverse tram, metro en buslijnen zijn op loopafstand bereikbaar. Daarnaast zijn treinstations op fietsafstand gelegen, wat wonen hier extra aantrekkelijk maakt voor forensen en stedelingen.

Begane grond:

  • Middels de entree/hal krijgt u toegang tot de verschillende vertrekken van de woning;
  • In de hal bevinden zich de trapkast met meterkast en een geheel betegelde toiletruimte;
  • De dichte keuken bevindt zich aan de achterzijde van de woning;
  • De geheel betegelde badkamer is voorzien van een wastafel, douche, toilet en wasmachineaansluiting;
  • Middels de achterste kamer krijgt u toegang tot de achtertuin;
  • Kamer 1;
  • Kamer 2;
  • Kamer 3;
  • Kamer 4;

Eerste verdieping;

  • Via de overloop krijgt u toegang tot de verschillende vertrekken;
  • In de hal bevinden zich twee toiletruimtes;
  • De dichte keuken bevindt zich aan de achterzijde van de woning;
  • De badkamer is voorzien van een wastafel en douche;
  • Slaakamer 1 & 2 zijn gelegen aan de voorzijde van de woning;
  • Slaapkamer 3 & 4 zijn gelegen aan de achterzijde van de woning;

Zolder:

  • Via de overloop krijgt u toegang tot de verschillende vertrekken;
  • Geheel betegelde toiletruimte;
  • Open keuken;
  • Geheel betegelde badkamer welke is voorzien van een wastafel, toilet en douche met thermostaatkraan;
  • Slaapkamer 5 & 6 zijn gelegen aan de voorzijde van de woning;
  • Slaapkamer 7 & 8 zijn gelegen aan de achterzijde van de woning;
  • Er bevindt zich een balkon aan de achterzijde van de woning, deze is echter niet bereikbaar.

Buiten:

  • De achtertuin is gelegen op het westen;

Bijzonderheden:

  • Bouwjaar: 1896;
  • Woonoppervlakte: ca. 175 m²;
  • Inhoud: ca. 578 m³;
  • Energielabel F;
  • Gelegen op erfpacht welke is afgekocht tot 31-12-2044;
  • Voorzien van kunststof kozijnen en dubbele beglazing;
  • Voorzien van een laminaat vloer;
  • Verwarming en warmwater middels Cv-combiketel;
  • Valt onder de opkoopbescherming van Rotterdam;
  • Gezien het bouwjaar van de woning zal er een asbest- en ouderdomsclausule in de koopakte worden opgenomen;
  • De eigenaar heeft de woning niet zelf feitelijk bewoond en om die reden is de vragenlijst en de lijst van zaken niet ingevuld.

De oplevering vindt plaats in overleg.

Alle verstrekte informatie moet beschouwd worden als een uitnodiging tot het doen van een bod of om in onderhandeling te treden.

Deze informatie is door ons met de nodige zorgvuldigheid samengesteld. Onzerzijds wordt echter geen enkele aansprakelijkheid aanvaard voor enige onvolledigheid, onjuistheid of anderszins, dan wel de gevolgen daarvan. Alle opgegeven maten en oppervlakten zijn indicatief. Van toepassing zijn de NVM voorwaarden.

In diverse wijken is er sprake van een opkoopbescherming. De opkoopbescherming houdt in een verbod om, na het aankopen van een woning vanaf één januari tweeduizend tweeëntwintig (1 januari 2022), deze te verhuren zonder vergunning, tenzij aan bepaalde voorwaarden is voldaan.
Meer informatie hierover is terug te vinden op de website van de gemeente Rotterdam (******)

Koopovereenkomst pas rechtsgeldig na ondertekening:
Een mondelinge overeenstemming tussen de particuliere verkoper en de particuliere koper is niet rechtsgeldig. Met andere woorden: er is geen koop. Er is pas sprake van een rechtsgeldige koop als de particuliere verkoper en de particuliere koper de koopovereenkomst hebben ondertekend. Dit vloeit voort uit artikel 7:2 Burgerlijk Wetboek. Een bevestiging van de mondelinge overeenstemming per e-mail of een toegestuurd concept van de koopovereenkomst wordt overigens niet gezien als een 'ondertekende koopovereenkomst'.

Toelichtingsclausule NEN2580:
De Meetinstructie is gebaseerd op de NEN2580. De Meetinstructie is bedoeld om een meer eenduidige manier van meten toe te passen voor het geven van een indicatie van de gebruiksoppervlakte. De Meetinstructie sluit verschillen in meetuitkomsten niet volledig uit, door bijvoorbeeld interpretatieverschillen, afrondingen of beperkingen bij het uitvoeren van de meting.

Overdracht

Vraagprijs
€ 599.000 k.k.
Aangeboden sinds
29-12-2025
Status
Beschikbaar
Beschikbaar
In overleg
Onderhoudsstaat
Redelijk

Oppervlakte en inhoud

Woonoppervlakte
175 m²
Perceeloppervlakte
212 m²
Inhoud
578 m³

Bouw

Type woning
Huis
Soort woning
Tussenwoning (rijtjeshuis), Eengezinswoning
Soort bouw
Bestaande bouw
Bouwjaar
1896
Ligging
  • Aan een rustige weg
  • Aan een park
  • In een woonwijk

Indeling

Aantal kamers
12
Aantal slaapkamers
8
Aantal badkamers
3
Aantal woonlagen
3
Voorzieningen
  • Douche
  • Toilet

Buitenruimte

Balkon
Niet aanwezig
Tuin
Aanwezig (15 m², gelegen op het westen)
Tuinbeschrijving
achtertuin
Achterom
Niet aanwezig
Dakterras
Niet aanwezig

Energie

Isolatie
Dubbele beglazing
Verwarming
CV-ketel
Warm water
CV-ketel
Energielabel
F

Parkeergelegenheid

Aanwezig
Ja
Soort parkeergelegenheid
Betaald

Garage

Aanwezig
Nee
Meld een probleem met deze woning