Contact met de aanbieder

Deze woning is gevonden buiten ons eigen netwerk. Via de knop hieronder ga je direct naar de website van de aanbieder.

Ouddorpsestraat 11

Bekijk kaart
3114 BK Schiedam (Eilandenbuurt)
€ 449.000 k.k.
  • 128 m²
  • 5 kamers
  • 1911

Samenvatting

  • Deze woning wordt sinds 3 maanden aangeboden door Mijn Huis Verkoop Ik Zelf;
  • De tussenwoning heeft een woonoppervlakte van 128 m² en beschikt over 5 kamers;
  • De woning is gebouwd In 1911 en ligt in de buurt Eilandenbuurt in Schiedam.

Beschrijving

Op zoek naar een schitterend gerenoveerde eengezinswoning? Dan is deze woning in de gezellige en kindvriendelijke wijk De Gorzen precies wat u zoekt!

Deze royale woning biedt verrassend veel ruimte en heeft maar liefst vier slaapkamers, twee badkamers en een fijne achtertuin.

Gelegen op eigen grond en op loopafstand van winkels, scholen en gezellige horecagelegenheden, is dit een ideale woning voor wie droomt van een huis met karakter in een levendige, sociale en kindvriendelijke buurt. Bovendien is parkeren hier nog altijd gratis!

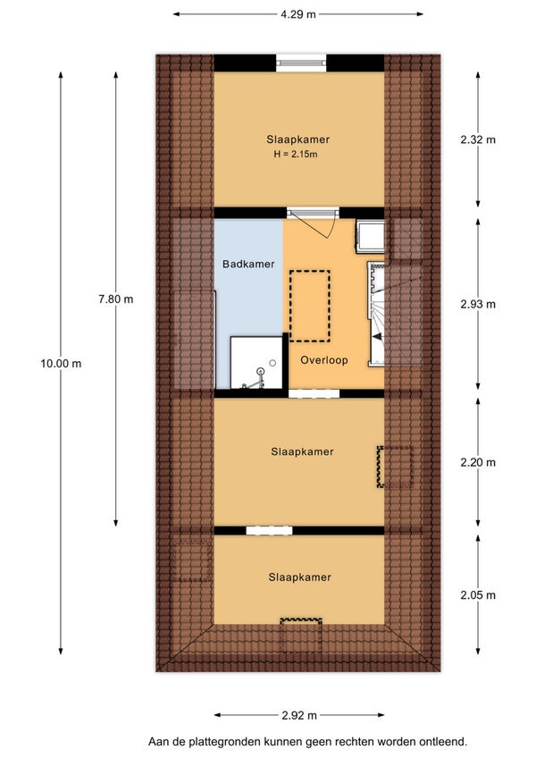
Indeling
Begane grond:
Entree, ruime hal met toilet en toegang tot de verrassend ruime woonkamer. Moderne open keuken met kookeiland en voorzien van alle luxe. Royale woonkamer met toegang tot de achtertuin.

Eerste verdieping
De overloop biedt toegang tot de open badkamer en master bedroom, de moderne badkamer is uitgerust met een ligbad en inloopdouche. Daarnaast is er een tweede slaapkamer aan de achterzijde. In de hal zit een aparte toilet.

Tweede verdieping
Op de bovenste verdieping bevinden zich nog twee ruime slaapkamers, daarnaast heeft deze verdieping een eigen badkamer met ligbad, douche.

BIJZONDERHEDEN

  • Energielabel C
  • Cv-ketel bouwjaar 2015
  • Volledig voorzien van dubbel glas, deels houten en deels kunststof ramen en kozijnen;
  • Elektrische installatie vernieuwd in 2025 ( 3 fase, 11 groepen);
  • Woonoppervlakte c.a. 128 M2
  • Oplevering in overleg.

    Gevonden op ******

Overdracht

Vraagprijs
€ 449.000 k.k.
Prijs per m²
€ 3.508
Aangeboden sinds
05-11-2025
Status
Beschikbaar
Beschikbaar
In overleg

Oppervlakte en inhoud

Woonoppervlakte
128 m²
Perceeloppervlakte
99 m²
Inhoud
465 m³

Bouw

Type woning
Huis
Soort woning
Tussenwoning (rijtjeshuis), Eengezinswoning
Soort bouw
Bestaande bouw
Bouwjaar
1911

Indeling

Aantal kamers
5

Buitenruimte

Tuin
Aanwezig
Dakterras
Niet aanwezig

Energie

Energielabel
C

Garage

Aanwezig
Nee
Meld een probleem met deze woning