Contact met de makelaar

Deze woning is gevonden buiten ons eigen netwerk. Met de knop hieronder kom je direct bij de aanbieder terecht.

Koestraat

Bekijk kaart
5014 EB Tilburg (Besterd)
€ 315.000 k.k.
  • 102 m²
  • 4 kamers
  • 1905

Samenvatting

  • Deze woning wordt sinds 6 januari 2026 aangeboden door RE/MAX Direct;
  • De tussenwoning heeft een woonoppervlakte van 102 m² en beschikt over 4 kamers, waarvan 3 slaapkamers;
  • De woning is gebouwd In 1905 en ligt in de buurt Besterd in Tilburg.

Beschrijving

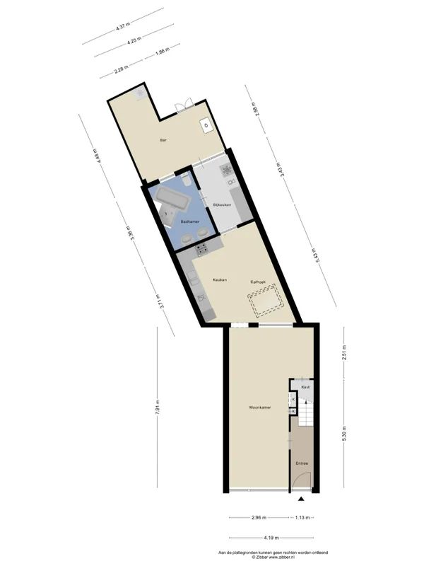
In de Koestraat 99 in Tilburg vind je een sfeervolle woning op een rustige, centrale locatie. Deze gelegenheden zorgen voor een ideale combinatie van comfort en toegankelijkheid; het levendige centrum met winkels, cafés en scholen ligt op loopafstand. De woning, gebouwd in 1905, beschikt over ongeveer 102 m² woonoppervlakte en heeft een energielabel E. Op de begane grond vind je de ruime woonkamer, een grote woonkeuken met moderne apparatuur en een bijkeuken met toegang tot de achtertuin. De eerste verdieping herbergt drie slaapkamers en een berging. De achtertuin, gelegen op het westen, beschikt over een overkapping met bar. Dit is een praktische gezinswoning met een goede bereikbaarheid voor openbaar vervoer.

Overdracht

Vraagprijs
€ 315.000 k.k.
Aangeboden sinds
06-01-2026
Status
Beschikbaar
Beschikbaar
Per direct

Oppervlakte en inhoud

Woonoppervlakte
102 m²
Perceeloppervlakte
121 m²

Bouw

Type woning
Huis
Soort woning
Tussenwoning (rijtjeshuis), Eengezinswoning
Soort bouw
Bestaande bouw
Bouwjaar
1905

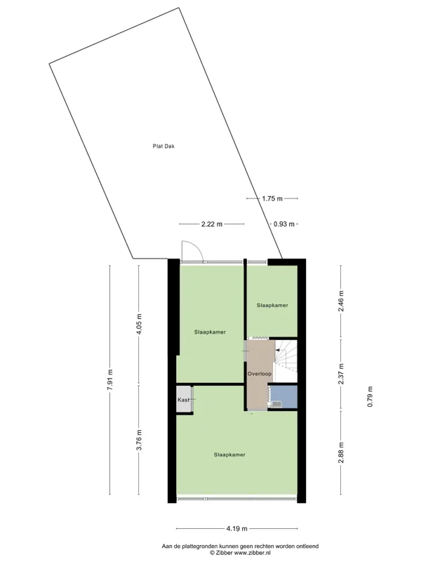
Indeling

Aantal kamers
4
Aantal slaapkamers
3
Aantal badkamers
1

Buitenruimte

Dakterras
Niet aanwezig

Energie

Energielabel
E
Meld een probleem met deze woning