Contact met de makelaar

Deze woning is gevonden buiten ons eigen netwerk. Met de knop hieronder kom je direct bij de aanbieder terecht.

Verkocht onder voorbehoud

De Ruijterstraat 11

Bekijk kaart
5463 GG Veghel (Veghel Zuid 2)
€ 359.000 k.k.
  • 126 m²
  • 6 kamers
  • 1968

Samenvatting

  • Deze woning wordt sinds 6 weken aangeboden door De Support Makelaar;
  • De tussenwoning heeft een woonoppervlakte van 126 m² en beschikt over 6 kamers, waarvan 3 slaapkamers;
  • De woning is gebouwd In 1968 en ligt in de buurt Veghel Zuid 2 in Veghel.

Beschrijving

Ben je op zoek naar een ruime eengezinswoning op een prettige woonlocatie, in een rustige buurt, maar wel met alle voorzieningen binnen handbereik? Kom dan eens een kijkje nemen bij deze fijne tussenwoning aan de De Ruijterstraat in Veghel. Je woont hier in de familievriendelijke woonwijk Veghel-Zuid, vlak bij scholen, het sfeervolle dorpscentrum en de uitvalswegen. De woning zelf biedt drie grote slaapkamers, waaronder een mooie zolderslaapkamer met dakkapel. Daarnaast beschik je als bewoner over onder meer een lichte doorzonwoonkamer, een comfortabele keuken en badkamer en een keurig aangelegde voor- en achtertuin. Laatstgenoemde is op het zonnige zuidwesten gericht en verrijkt met een fraaie terrasoverkapping en een grote, vrijstaande garage.

Ligging
De De Ruijterstraat is onderdeel van een fijne buurt in de geliefde woonwijk Veghel-Zuid. Je woont hier op een rustig plekje aan een verkeersluwe straat, met verschillende kleine en grotere plantsoenen en parkjes in de buurt. Belangrijke voorzieningen als een apotheek, een wijkcentrum en een basisschool zijn op steenworp afstand, terwijl meer scholen en het gezellige dorpscentrum (met talrijke supermarkten, winkels en sfeervolle horecazaken) op een minuut of tien wandelen liggen. Het centrale busstation van Veghel ligt op vergelijkbare afstand. Ga je met de auto op pad? Vanuit de De Ruijterstraat zit je al na zo'n vijf minuten autorijden met de dichtstbijzijnde oprit naar de snelweg A50.

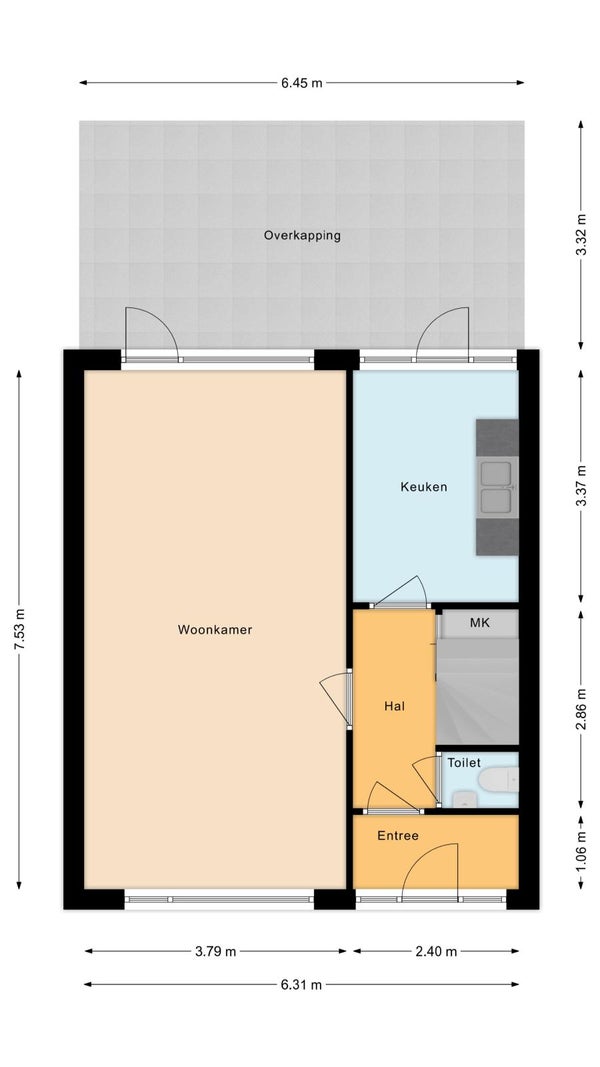
Begane grond
Na binnenkomst via de voordeur beland je eerst in een keurige entree. Deze loopt over in een hal, waarvandaan een volledig betegelde toiletruimte, de trapopgang en een grote trapkast (met meterkast) bereikbaar zijn.

Vanuit de centrale hal heb je ook toegang tot de woonkamer. Het gaat hier om een sfeervolle doorzonwoonkamer, waar je dankzij de grote raampartijen aan weerszijden profiteert van veel inval van zonlicht. Deze ruime living is verder uitgerust met een fraaie laminaatvloer, terwijl de muren en plafonds netjes en in rustgevende kleuren zijn afgewerkt.

De keuken van dit huis zit in een aparte ruimte, die ook vanuit de hal bereikbaar is. Hier is momenteel sprake van een comfortabele keukeninrichting in wandopstelling. Er zijn diverse aansluitpunten voor keukenapparatuur, en eveneens voor een wasmachine.

Eerste verdieping
Wanneer je op de eerste verdieping aankomt, kom je eerst terecht op een centrale overloop. Hiervandaan bereik je alle vertrekken van deze woonlaag, waaronder twee grote slaapkamers. Vooral de kamer aan de achterkant van het huis is van riante omvang. Houd je deze master bedroom in de huidige vorm, of trek je de tussenmuur door en creëer je hier een extra slaapkamer? Als nieuwe bewoner van dit huis maak je deze keuze helemaal zelf. Voor de vloeren van de slaapkamers is verder gebruikgemaakt van mooi laminaat. Daarnaast vind je op deze etage een moderne badkamer met complete betegeling, een groot ligbad, een wastafel en het tweede toilet van de woning.

Tweede verdieping
De bovenste verdieping van het huis is eveneens via een vaste trap bereikbaar. Je belandt hier eerst op een ruime overloop, waar je aansluitpunten voor wasapparatuur vindt, én de toegangsdeur tot een grote, volwaardige zolderslaapkamer. Deze kamer profiteer dankzij een mooie dakkapel aan de achterkant zelfs van extra veel ruimte. Intussen is aan de andere kant achter knieschotten een mooie berging gecreëerd.

Tuin
Bij dit huis hoort een heerlijke achtertuin, die op het zonnige zuidwesten is gericht. De ideale plek om lekker van het buitenleven te genieten! Dat kan op verschillende plekken in de het zonnetje, al is er ook altijd een schaduwrijk plekje beschikbaar, want tegen de woning aan is een fraaie, Douglas-houten terrasoverkapping aangebracht. Verder is dit een overwegend groene tuin, met verschillende borders met afwisselende beplanting. Achterin de tuin staat een vrijstaande stenen garage, die goed is voor dik achttien vierkante meter aan opslagruimte. Deze garage is ook te betreden via de doorgang erachter, die via de Jan van Galenstraat bereikbaar is (ook per auto).

Kenmerken
-Ruime, goed onderhouden eengezinswoning in familievriendelijke buurt in Veghel-Zuid, vlak bij scholen en op korte wandelafstand van het gezellige dorpscentrum.
-Sfeervolle doorzonwoonkamer.
-Comfortabele keuken in afgezonderde ruimte.
-Drie grote slaapkamers, waaronder een fijne zolderslaapkamer met dakkapel.
-Moderne badkamer met groot ligbad.
-Keurig aangelegde voortuin.
-Heerlijke achtertuin op het zuidwesten. Met fraaie, Douglas-houten terrasoverkapping.
-Grote vrijstaande garage in de achtertuin.
-Bouwjaar: 1968
-Energielabel: B
-Volledige eigendom.

Overdracht

Vraagprijs
€ 359.000 k.k.
Aangeboden sinds
05-12-2025
Status
Verkocht onder voorbehoud
Beschikbaar
In overleg
Onderhoudsstaat
Redelijk

Oppervlakte en inhoud

Woonoppervlakte
126 m²
Inhoud
447 m³

Bouw

Type woning
Huis
Soort woning
Tussenwoning (rijtjeshuis), Eengezinswoning
Soort bouw
Bestaande bouw
Bouwjaar
1968

Indeling

Aantal kamers
6
Aantal slaapkamers
3
Aantal woonlagen
3
Voorzieningen
Glasvezelaansluiting

Buitenruimte

Balkon
Niet aanwezig
Dakterras
Niet aanwezig

Energie

Energielabel
B

Parkeergelegenheid

Aanwezig
Nee

Garage

Aanwezig
Ja
Omschrijving
Vrijstaand steen
Meld een probleem met deze woning