Contact met de makelaar

Deze woning is gevonden buiten ons eigen netwerk. Met de knop hieronder kom je direct bij de aanbieder terecht.

Nieuw

Doedesstraat 71 A

Bekijk kaart
3022 VD Rotterdam (Nieuwe Westen)
€ 250.000 k.k.
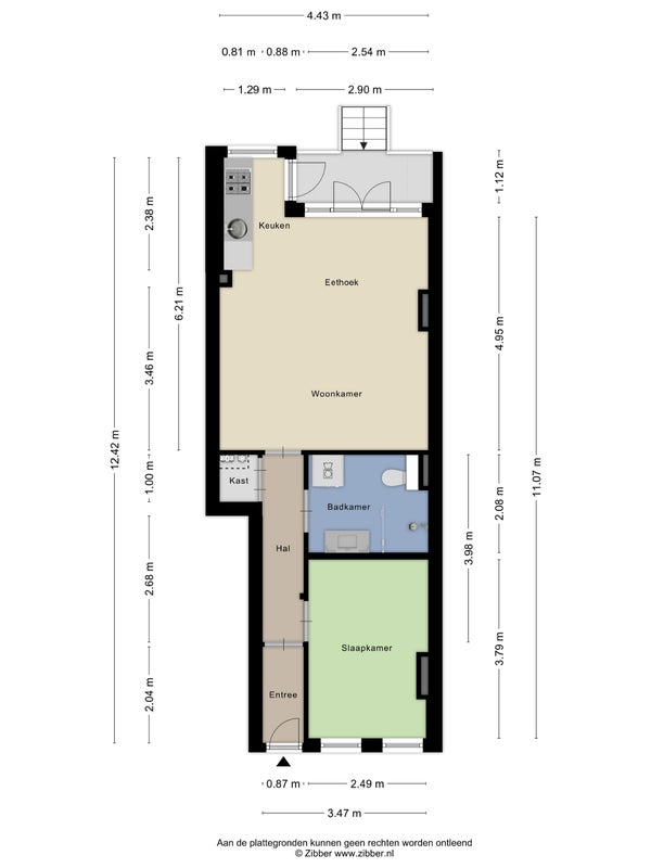
  • 46 m²
  • 2 kamers
  • 1912

Samenvatting

  • Deze woning wordt sinds 28 oktober 2025 aangeboden door Schildtvoorde;
  • De benedenwoning heeft een woonoppervlakte van 46 m² en beschikt over 2 kamers, waarvan 1 slaapkamer;
  • De woning is gebouwd In 1912 en ligt in de buurt Nieuwe Westen in Rotterdam;
  • De woning beschikt onder andere over de volgende voorzieningen: Kabel TV, Glasvezelaansluiting, Douche, Bergruimte, Toilet.

Beschrijving

Meer woninginformatie bekijken?

Log in of registreer gratis.

Overdracht

Vraagprijs
€ 250.000 k.k.
Aangeboden sinds
28-10-2025
Status
Beschikbaar
Beschikbaar
In overleg
Bijzonderheden
Mindervalide woning, Seniorenwoning
Onderhoudsstaat
Goed

Oppervlakte en inhoud

Woonoppervlakte
46 m²
Inhoud
152 m³

VvE informatie

Inschrijving KvK
Ja
Jaarlijkse vergadering
Ja
Periodieke bijdrage
Ja (€ 75 per maand)
Reservefonds aanwezig
Ja
Onderhoudsplan
Ja
Opstalverzekering
Ja

Bouw

Type woning
Appartement
Soort woning
Benedenwoning, Appartement
Soort bouw
Bestaande bouw
Bouwjaar
1912
Ligging
Aan een rustige weg

Indeling

Aantal kamers
2
Aantal slaapkamers
1
Aantal badkamers
1
Aantal woonlagen
1
Voorzieningen
  • Kabel TV
  • Glasvezelaansluiting
  • Douche
  • Bergruimte
  • Toilet

Buitenruimte

Balkon
Niet aanwezig
Tuin
Aanwezig (33 m², gelegen op het westen)
Tuinbeschrijving
achtertuin
Dakterras
Niet aanwezig

Energie

Isolatie
Dubbele beglazing
Verwarming
CV-ketel
Warm water
CV-ketel
Cv-ketel
Intergas (Gas, uit 2025, Eigendom)
Energielabel
F

Bergruimte

Schuur/Berging
Aanwezig
Omschrijving
Vrijstaand hout

Parkeergelegenheid

Aanwezig
Ja
Soort parkeergelegenheid
Betaald

Garage

Aanwezig
Nee
Meld een probleem met deze woning
Contact met de makelaar Bel