- 145 m²
- 6 kamers
- 1926
Samenvatting
- Deze woning wordt sinds 22 januari 2026 aangeboden door Von Poll Real Estate;
- De galerijflat heeft een woonoppervlakte van 145 m² en beschikt over 6 kamers, waarvan 4 slaapkamers;
- De woning is gebouwd In 1926 en ligt in de buurt Jordaan in Amsterdam.
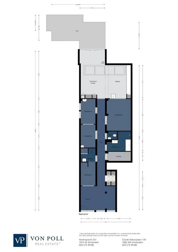
Beschrijving
In de populaire Jordaan, een van de meest karakteristieke buurten van Amsterdam, ligt dit ruime gelijkvloerse appartement van 145 m². U woont in een levendige volkswijk, omringd door authentieke smalle straatjes en grachtjes, met de rust van een eigen patio en tuin van circa 32 m². Het appartement, gebouwd rond 1899, strekt zich uit over de gehele begane grond en beschikt over vier slaapkamers en twee badkamers, ideaal voor een gezin of een thuiswerkplek. De lichte ruimte aan de voorzijde is perfect als kantoor. De moderne uitbouw met open eetkeuken vormt het hart van het huis en biedt toegang tot de zonnige patio, een groene oase in de stad. Met uitstekende bereikbaarheid van tram, bus en de uitvalsweg combineert dit appartement levendige stadslevens met rust en ruimte.
Overdracht
- Vraagprijs
- € 1.225.000 k.k.
- Aangeboden sinds
- 22-01-2026
- Status
- Beschikbaar
- Beschikbaar
- Per direct
Oppervlakte en inhoud
- Woonoppervlakte
- 145 m²
Bouw
- Type woning
- Appartement
- Soort woning
- Galerijflat
- Soort bouw
- Bestaande bouw
- Bouwjaar
- 1926
Indeling
- Aantal kamers
- 6
- Aantal slaapkamers
- 4
- Aantal badkamers
- 2
Buitenruimte
- Dakterras
- Niet aanwezig
Energie
- Energielabel
- C