Contact met de makelaar

Deze woning is gevonden buiten ons eigen netwerk. Met de knop hieronder kom je direct bij de aanbieder terecht.

Nieuw

Waterkeringweg 65

Bekijk kaart
1051 NX Amsterdam (Centrale Markt)
€ 600.000 k.k.
  • 70 m²
  • 3 kamers
  • 1997

Samenvatting

  • Deze woning wordt sinds 9 februari 2026 aangeboden door Fred Koot Makelaardij;
  • De galerijflat heeft een woonoppervlakte van 70 m² en beschikt over 3 kamers, waarvan 2 slaapkamers;
  • De woning is gebouwd In 1997 en ligt in de buurt Centrale Markt in Amsterdam.

Beschrijving

Dit is een licht 3-kamer appartement van 70 m² met een terras, gelegen op de 7e en 8e verdieping. De open keuken en woonkamer zorgen voor veel lichtinval en een prachtig uitzicht over de stad. De erfpacht is tot 1 september 2046 afgekocht en er is extra bergruimte in de kelder.

Het appartement maakt deel uit van een modern complex in de Staatsliedenbuurt, vlakbij Westerpark, Café-Restaurant Amsterdam, Haarlemmerplein en Jordaan. Openbaar vervoer is dichtbij, met tram 5 en bus 21, en het Centraal Station op 10 minuten fietsen.

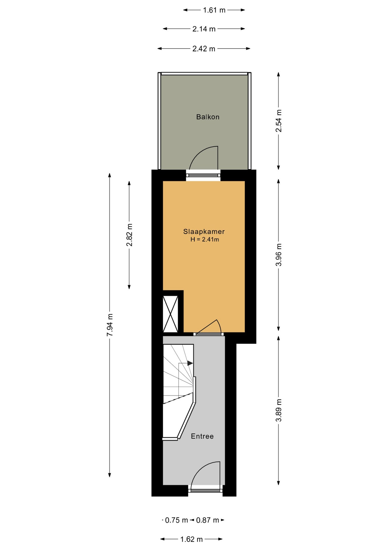
Binnenin vindt u een hal, slaapkamer met toegang tot het terras, en een ruime woonkamer met open keuken. Er is een aparte toilet en badkamer met inloopdouche en wasmachineaansluiting. Het appartement heeft 2 slaapkamers, energielabel A, en is volledig geïsoleerd.

Overdracht

Vraagprijs
€ 600.000 k.k.
Aangeboden sinds
09-02-2026
Status
Beschikbaar
Beschikbaar
Per direct

Oppervlakte en inhoud

Woonoppervlakte
70 m²

Bouw

Type woning
Appartement
Soort woning
Galerijflat
Soort bouw
Bestaande bouw
Bouwjaar
1997

Indeling

Aantal kamers
3
Aantal slaapkamers
2
Aantal badkamers
1

Buitenruimte

Dakterras
Niet aanwezig

Energie

Energielabel
A
Meld een probleem met deze woning