- 115 m²
- 6 kamers
- 1930
Samenvatting
- Deze woning wordt sinds 22 januari 2026 aangeboden door Von Poll Real Estate;
- De galerijflat heeft een woonoppervlakte van 115 m² en beschikt over 6 kamers, waarvan 3 slaapkamers;
- De woning is gebouwd In 1930 en ligt in de buurt Stadionbuurt in Amsterdam.
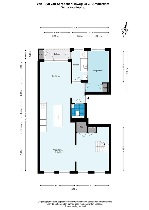
Beschrijving
Dit eigentijdse en lichte appartement van 115 m² strekt zich uit over drie verdiepingen en beschikt over een balkon en een dakterras. Gelegen in een populaire straat in de Stadionbuurt, is het recentelijk gerenoveerd in 2021 en biedt een royale woonkamer met open keuken, drie slaapkamers en twee luxe badkamers. De multifunctionele bijkeuken voegt extra functionaliteit toe. De locatie biedt diverse restaurants, cafés en winkels op loopafstand, zoals het Stadionplein met het viersterrenhotel Twenty Eight. Goede scholen en openbaar vervoer zijn nabij, met snelle verbindingen naar het centrum en Schiphol. Het appartement omvat ook een zonnig dakterras van 21 m² en is professioneel beheerd met een maandelijkse V.v.E. bijdrage van € 296,-.
Overdracht
- Vraagprijs
- € 895.000 k.k.
- Aangeboden sinds
- 22-01-2026
- Status
- Beschikbaar
- Beschikbaar
- Per direct
Oppervlakte en inhoud
- Woonoppervlakte
- 115 m²
Bouw
- Type woning
- Appartement
- Soort woning
- Galerijflat
- Soort bouw
- Bestaande bouw
- Bouwjaar
- 1930
Indeling
- Aantal kamers
- 6
- Aantal slaapkamers
- 3
- Aantal badkamers
- 2
Buitenruimte
- Dakterras
- Niet aanwezig
Energie
- Energielabel
- C