Niet beschikbaar

De woning die je wilt bekijken is niet langer beschikbaar. Je bekijkt nu het woningaanbod in dezelfde stad.

Contact met de makelaar

Deze woning is gevonden buiten ons eigen netwerk. Met de knop hieronder kom je direct bij de aanbieder terecht.

Haarlemmer Houttuinen

Bekijk kaart
1013 GL Amsterdam (Haarlemmerbuurt)
€ 650.000 k.k.
  • 76 m²
  • 3 kamers
  • 1797

Samenvatting

  • Deze woning wordt sinds 3 maanden aangeboden door Vondel Makelaars;
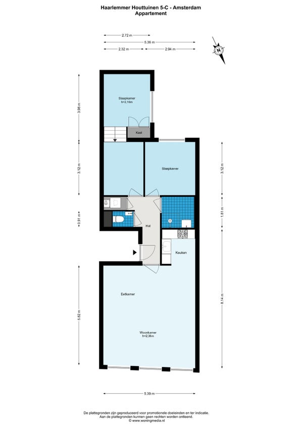
  • De galerijflat heeft een woonoppervlakte van 76 m² en beschikt over 3 kamers, waarvan 2 slaapkamers;
  • De woning is gebouwd In 1797 en ligt in de buurt Haarlemmerbuurt in Amsterdam.

Beschrijving

In het hart van de Jordaan, bevindt zich deze ruime en lichte drie-kamer woning, gevestigd in een karakteristiek voormalig pakhuis uit 1797, dat als rijksmonument is geklasseerd. Met een oppervlakte van circa 76 m² (BVO = 84 m²) biedt deze woning twee goed uitgeruste slaapkamers en een comfortabele woonkamer met eet- en zitgedeelte en een open keuken. De keuken is voorzien van moderne inbouwapparatuur, waaronder een Smeg gasfornuis en vaatwasser.

De badkamer is uitgerust met een mooi wastafelmeubel en een inloopdouche. Daarnaast is er een separaat toilet en een praktische ruimte voor de wasmachine en droger. De woning heeft een houten vloer door het hele huis en er is een aparte berging van ongeveer 5 m² voor opslag.

Gelegen op een rustige straat met gemakkelijke toegang tot restaurants, de hoofdgrachten en openbaar vervoer.

Overdracht

Vraagprijs
€ 650.000 k.k.
Aangeboden sinds
30-10-2025
Status
Beschikbaar
Beschikbaar
Per direct

Oppervlakte en inhoud

Woonoppervlakte
76 m²

Bouw

Type woning
Appartement
Soort woning
Galerijflat
Soort bouw
Bestaande bouw
Bouwjaar
1797

Indeling

Aantal kamers
3
Aantal slaapkamers
2
Aantal badkamers
1

Buitenruimte

Dakterras
Niet aanwezig
Meld een probleem met deze woning