- 84 m²
- 3 kamers
- 2002
Samenvatting
- Deze woning wordt sinds 22 januari 2026 aangeboden door Von Poll Real Estate;
- De galerijflat heeft een woonoppervlakte van 84 m² en beschikt over 3 kamers, waarvan 2 slaapkamers;
- De woning is gebouwd In 2002 en ligt in de buurt IJselbuurt in Amsterdam.
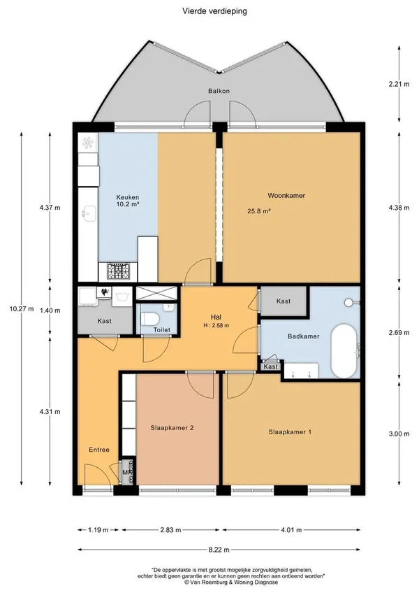
Beschrijving
Dit lichte en ruime driekamerappartement van 84 m² is gelegen op de vierde en bovenste verdieping van een gebouw uit 2002, met een lift en energielabel B. Het appartement beschikt over twee royale slaapkamers en een zonnig terras van 12 m² met prachtig uitzicht over de stad. Gevestigd aan het Borssenburgplein, biedt de locatie rust en centraliteit, met de Rijnstraat en de Pijp op loopafstand. Ook cafés, restaurants en het Martin Luther King Park zijn dichtbij. Het appartement is goed bereikbaar met de auto en openbaar vervoer, met tram- en bushaltes om de hoek.
De indeling omvat een gemeenschappelijke entree, hal, berging met aansluitingen voor wasmachine, aparte WC, woonkamer met open keuken vol apparatuur, en een moderne badkamer met dubbele wastafel, ligbad en inloopdouche. Daarnaast is er een houten vloer door het gehele appartement.
Overdracht
- Vraagprijs
- € 795.000 k.k.
- Aangeboden sinds
- 22-01-2026
- Status
- Beschikbaar
- Beschikbaar
- Per direct
Oppervlakte en inhoud
- Woonoppervlakte
- 84 m²
Bouw
- Type woning
- Appartement
- Soort woning
- Galerijflat
- Soort bouw
- Bestaande bouw
- Bouwjaar
- 2002
Indeling
- Aantal kamers
- 3
- Aantal slaapkamers
- 2
- Aantal badkamers
- 1
Buitenruimte
- Dakterras
- Niet aanwezig
Energie
- Energielabel
- B