Contact met de makelaar

Deze woning is gevonden buiten ons eigen netwerk. Met de knop hieronder kom je direct bij de aanbieder terecht.

Nieuw

Wittgensteinlaan 126

Bekijk kaart
1062 KC Amsterdam (Westlandgracht)
€ 630.000 k.k.
  • 90 m²
  • 3 kamers
  • 1992

Samenvatting

  • Deze woning wordt sinds 16 januari 2026 aangeboden door Expat Property;
  • De bovenwoning heeft een woonoppervlakte van 90 m² en beschikt over 3 kamers, waarvan 2 slaapkamers;
  • De woning is gebouwd In 1992 en ligt in de buurt Westlandgracht in Amsterdam;
  • De woning beschikt onder andere over de volgende voorzieningen: Lift, Internetaansluiting, Mechanische ventilatie, Douche, Bergruimte, Toilet.

Beschrijving

Dit lichte hoekappartement van ca. 89,5 m² met energielabel B in Amsterdam-West is vorig jaar gemoderniseerd en volledig instapklaar. Dankzij de hoekligging is er veel daglicht gedurende de hele dag (zuid- en westzijde). De woning combineert een strak, minimalistisch design met een royaal balkon en volop bergruimte en wordt verkocht inclusief een eigen privé-garage én een parkeerplaats direct voor het gebouw – een zeer praktische en zeldzame combinatie in deze buurt.

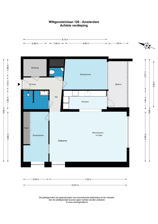
Indeling
Via de ruime entree kom je in de hal, waar zich aan de linkerzijde een grote interne berging bevindt, ideaal voor jassen, schoenen en huishoudelijke spullen. In de hal is daarnaast ruimte voor een garderobe. Vanuit de hal zijn zowel het separate toilet als de badkamer toegankelijk.

De woning is vorig jaar gemoderniseerd met onder andere een nieuwe vloer en plinten, en opnieuw gestucte en geschilderde wanden en plafonds. Ook radiatoren en binnendeuren zijn meegenomen in deze afwerking. De houtkleurige laminaatvloer loopt door het gehele appartement en de afwerking in warme, natuurlijke tinten zorgt voor een prettige sfeer. Zwarte binnendeuren en bijpassende plinten geven het geheel een strak en modern karakter.

De royale woonkamer biedt voldoende ruimte voor een grote eettafel en een comfortabele zithoek. Als hoekappartement beschikt de woning over ramen aan meerdere zijden, wat zorgt voor veel zonlicht en een ruimtelijk gevoel. De tweede slaapkamer grenst aan de woonkamer en beschikt naast de reguliere deur over een stalen kozijn met glas, waardoor extra daglicht de kamer binnenvalt.

Slaapkamers
De hoofdslaapkamer biedt comfortabel plaats aan een tweepersoonsbed en een grote kledingkast. De tweede slaapkamer is flexibel in te delen en geschikt als kinder-, werk- of logeerkamer, of als walk-in closet.

Keuken
De keuken is modern uitgevoerd met witte kasten en een antracietkleurig composiet werkblad en is voorzien van een inductiekookplaat, afzuigkap, ingebouwde oven, Siemens vaatwasser en een koelkast. Een losse vriezer, geplaatst in de kast naast de keuken, kan desgewenst worden overgenomen. Vanuit de keuken is er directe toegang tot het balkon.

Badkamer en toilet
De badkamer is afgewerkt met moderne tegels in aardse tinten en beschikt over een inloopdouche, een extra brede wastafel met spiegelkast en bergruimte onder de wastafel. Het toilet is separaat en voorzien van een eigen wastafel. Alle sanitaire ruimtes zijn volledig betegeld.

Buitenruimte
Het balkon van ca. 8,7 m² is gelegen op het zuiden en bereikbaar vanuit zowel de woonkamer als de keuken. Dankzij de afmetingen is er voldoende ruimte voor een zit- of loungehoek en kun je hier vrijwel de hele dag van de zon genieten.

Bergruimte
De woning beschikt over een grote interne berging én een separate externe berging in het gebouw van ca. 3,7 m².

Parkeren
Bij de woning horen zowel een aparte privé garage van ca. 17,8 m² als een eigen parkeerplaats direct voor het gebouw. De garage betreft een volwaardige garage (geen parkeerplaats) en wordt samen met het appartement verkocht.

Locatie
Gelegen aan de Wittgensteinlaan in de geliefde Westlandgrachtbuurt in Amsterdam-West. Een rustige, groene woonomgeving met alle dagelijkse voorzieningen op korte afstand. Supermarkten, winkels, cafés en scholen bevinden zich in de directe omgeving. Hoofddorpplein, Rembrandtpark en Vondelpark zijn eenvoudig per fiets bereikbaar. Uitstekende openbaarvervoersverbindingen en een snelle aansluiting op de A10 richting Schiphol en het centrum.

Vereniging van Eigenaren (VvE)
De woning maakt deel uit van een professioneel beheerde en financieel gezonde VvE, beheerd door VvE Beheer Groep. De VvE bestaat uit 48 appartementen inclusief garages en parkeerplaatsen binnen het complex Cornet. Er is een meerjarenonderhoudsplan (MJOP), een collectieve opstalverzekering en er wordt jaarlijks vergaderd. Per december 2025 bedroegen de reserves ca. €310.000, met aanvullend ca. €15.500 gereserveerd voor de garages.

Eigendomssituatie
De woning is gelegen op gemeentelijke erfpacht, welke is afgekocht tot en met juni 2040. Na deze datum kan de erfpacht worden vastgezet of eeuwigdurend worden afgekocht. De vaste canon bedraagt €350,68 per jaar voor het appartement en €34,99 per jaar voor de garage (totaal €385,07 per jaar, geïndexeerd). Eeuwigdurende afkoop bedraagt €7.131 voor het appartement en €699 voor de garage.

Bijzonderheden

  • Woonoppervlakte ca. 89,5 m² (meetrapport beschikbaar)
  • Balkon ca. 8,7 m², gelegen op het zuiden
  • Hoekappartement met ramen op zuid- en westzijde
  • Aparte privé garage ca. 17,8 m² + eigen parkeerplaats
  • Twee ruime slaapkamers, flexibel in te delen
  • Vorig jaar gemoderniseerd en instapklaar
  • Energielabel B
  • Grote interne berging + externe berging ca. 3,7 m²
  • CV-ketel uit 2025
  • Bouwjaar 1992
  • Gemeentelijke erfpacht, afgekocht tot 2040
  • Maandelijkse VvE-bijdrage: €200,05 voor het appartement en €21 voor de garage

De gegevens en maatvoeringen op de plattegronden, op internet en in de brochure zijn indicatief. Hoewel de informatie zorgvuldig is samengesteld is het toch niet uitgesloten dat bepaalde informatie na verloop van tijd verouderd of niet meer correct is. Aan de op de plattegronden en in de brochure vermelde informatie kunnen dan ook op geen enkele manier rechten worden ontleend. Expat Property aanvaardt geen enkele aansprakelijkheid voor onjuiste of onvolledige informatie noch voor schade ten gevolge van het bezoek aan onze website of andere websites die door middel van links toegankelijk zijn vanuit de website van Expat Property.

Overdracht

Vraagprijs
€ 630.000 k.k.
Aangeboden sinds
16-01-2026
Status
Beschikbaar
Beschikbaar
Per direct
Onderhoudsstaat
Zeer goed

Oppervlakte en inhoud

Woonoppervlakte
90 m²
Inhoud
286 m³

VvE informatie

Inschrijving KvK
Ja
Jaarlijkse vergadering
Ja
Periodieke bijdrage
Ja (€ 200 per maand)
Reservefonds aanwezig
Ja
Opstalverzekering
Ja

Bouw

Type woning
Appartement
Soort woning
Bovenwoning, Appartement
Soort bouw
Bestaande bouw
Bouwjaar
1992

Indeling

Aantal kamers
3
Aantal slaapkamers
2
Aantal badkamers
1
Aantal woonlagen
1
Verdieping
8
Voorzieningen
  • Lift
  • Internetaansluiting
  • Mechanische ventilatie
  • Douche
  • Bergruimte
  • Toilet

Buitenruimte

Balkon
Aanwezig
Dakterras
Niet aanwezig

Energie

Isolatie
Dubbele beglazing
Warm water
CV-ketel
Cv-ketel
Intergas (Gas, uit 2025, Eigendom)
Energielabel
B

Bergruimte

Schuur/Berging
Aanwezig

Parkeergelegenheid

Aanwezig
Ja
Soort parkeergelegenheid
Openbaar

Garage

Aanwezig
Ja
Meld een probleem met deze woning