Niet beschikbaar

De woning die je wilt bekijken is niet langer beschikbaar. Je bekijkt nu het woningaanbod in dezelfde stad.

Contact met de aanbieder

Deze woning is gevonden buiten ons eigen netwerk. Via de knop hieronder ga je direct naar de website van de aanbieder.

Nieuwebrugsteeg 28

Bekijk kaart
1012 AH Amsterdam (Burgwallen-Oude Zijde)
€ 1.100.000 k.k.
  • 153 m²
  • 5 kamers
  • 1931

Samenvatting

  • Deze woning wordt sinds 6 weken aangeboden door Hoekstra & van Eck Amsterdam Noord;
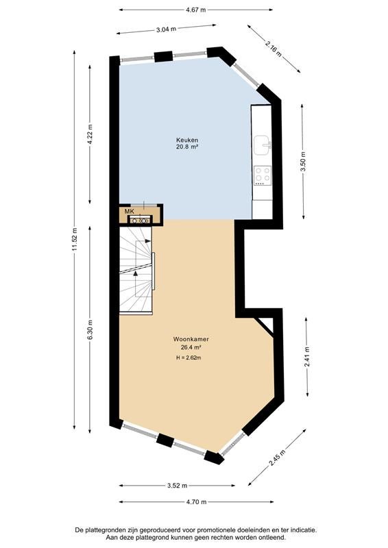
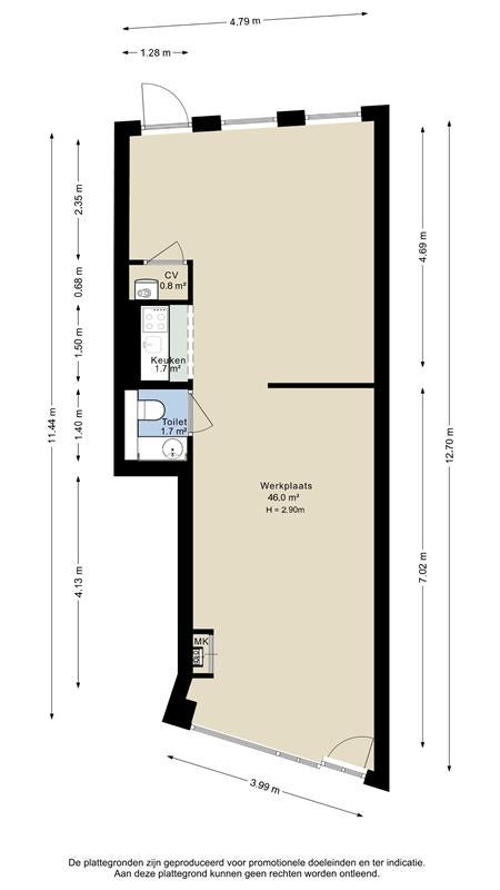
  • De tussenwoning heeft een woonoppervlakte van 153 m² en beschikt over 5 kamers, waarvan 2 slaapkamers;
  • De woning is gebouwd In 1931 en ligt in de buurt Burgwallen-Oude Zijde in Amsterdam.

Beschrijving

Volledig pand op eigen grond in het hartje centrum Amsterdam.

De tattoo shop op de begane grond , 51 m2, zal leeg en vrij van huur worden geleverd. De woning met een eigen entree op de begane grond, woonruimte op de eerste en tweede etage, totaal 102 m2, alsmede een dakterras van 23 m2 zal in verhuurde staat worden geleverd. De huuropbrengst bedraagt € 27.672,00 per jaar. De huurovereenkomst is voor onbepaalde tijd.

De ondergrond is in Volle eigendom
De omgeving is een beschermd Stads/Dorps gezicht
Het Postcodegebied 1012 heeft de speciale aandacht van de overheid omtrent de gebruiksmogelijkheden
Het bestemmingplan geeft wonen, kantoor, voorzieningen, galeries en detailhandel als mogelijkheden, wonen op de begane grond behoort dus ook tot de mogelijkheden.
Horeca 1 in de eerste bouwlaag, uitsluitend ter plaatse van de aanduiding 'specifieke vorm van gemengd' - horeca 1 toegestaan in de eerste bouwlaag
Het geheel verkeert in een goede staat van onderhoud.
Omtrent de fundering zijn geen gegevens bekend.

Overdracht

Vraagprijs
€ 1.100.000 k.k.
Prijs per m²
€ 7.190
Aangeboden sinds
16-01-2026
Status
Beschikbaar
Beschikbaar
In overleg

Oppervlakte en inhoud

Woonoppervlakte
153 m²
Perceeloppervlakte
62 m²
Inhoud
517 m³

Bouw

Type woning
Huis
Soort woning
Tussenwoning (rijtjeshuis), Grachtenpand
Soort bouw
Bestaande bouw
Bouwjaar
1931

Indeling

Aantal kamers
5
Aantal slaapkamers
2

Buitenruimte

Balkon
Niet aanwezig
Tuin
Niet aanwezig
Dakterras
Niet aanwezig

Energie

Energielabel
C

Garage

Aanwezig
Nee
Meld een probleem met deze woning