Contact met de aanbieder

Deze woning is gevonden buiten ons eigen netwerk. Via de knop hieronder ga je direct naar de website van de aanbieder.

Nieuw

Valeriusstraat 152 2

Bekijk kaart
1075 GG Amsterdam (Willemspark)
€ 2.500.000 k.k.
  • 204 m²
  • 6 kamers
  • 1911

Samenvatting

  • Deze woning wordt sinds 23 februari 2026 aangeboden door PB Makelaars o.z.;
  • De galerijflat heeft een woonoppervlakte van 204 m² en beschikt over 6 kamers, waarvan 5 slaapkamers;
  • De woning is gebouwd In 1911 en ligt in de buurt Willemspark in Amsterdam.

Beschrijving

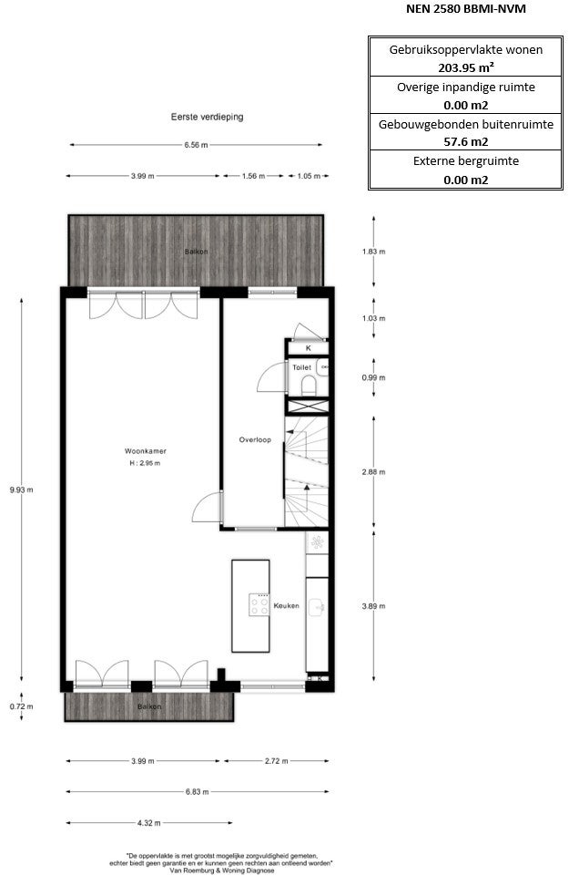
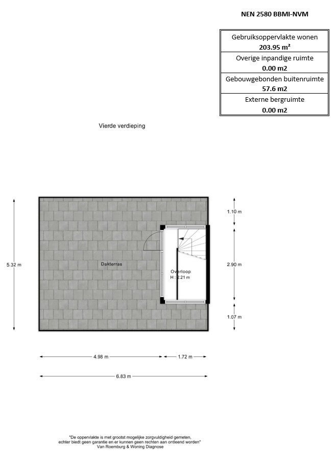
Dit hoogwaardig gerenoveerde drie dubbel bovenhuis van circa 204 m² is gelegen in Oud-Zuid, met een eigen entree op de begane grond. Hier vindt u een ruime hal die leidt naar een schitterende living met open keuken. De woning biedt maar liefst 5 slaapkamers, 2 badkamers, en een fantastische werkruimte met 3 balkons en een dakterras. Het stijlvolle appartement, volledig gerenoveerd in 2019, combineert authentieke details met moderne afwerkingen in een Scandinavische stijl. De luxe Bulthaup-keuken is uitgerust met Gaggenau-apparatuur en het appartement beschikt over een domoticasysteem en vloerverwarming. De locatie aan de Valeriusstraat biedt nabijheid van het Vondelpark, eetgelegenheden en goede scholen.

Overdracht

Vraagprijs
€ 2.500.000 k.k.
Prijs per m²
€ 12.255
Aangeboden sinds
23-02-2026
Status
Beschikbaar
Beschikbaar
Per direct

Oppervlakte en inhoud

Woonoppervlakte
204 m²

Bouw

Type woning
Appartement
Soort woning
Galerijflat
Soort bouw
Bestaande bouw
Bouwjaar
1911

Indeling

Aantal kamers
6
Aantal slaapkamers
5
Aantal badkamers
1

Buitenruimte

Dakterras
Niet aanwezig

Energie

Energielabel
A
Meld een probleem met deze woning