Contact met de makelaar

Deze woning is gevonden buiten ons eigen netwerk. Met de knop hieronder kom je direct bij de aanbieder terecht.

Nieuw

Rustenburgerstraat 370 H

Bekijk kaart
1072 HE Amsterdam (Nieuwe Pijp)
€ 1.100.000 k.k.
  • 122 m²
  • 5 kamers
  • 1904

Samenvatting

  • Deze woning wordt sinds 27 januari 2026 aangeboden door VHM Makelaars Amsterdam;
  • Het dubbele benedenhuis heeft een woonoppervlakte van 122 m² en beschikt over 5 kamers, waarvan 3 slaapkamers;
  • De woning is gebouwd In 1904 en ligt in de buurt Nieuwe Pijp in Amsterdam;
  • De woning beschikt onder andere over de volgende voorzieningen: Bad, Kabel TV, Mechanische ventilatie, Douche, Bergruimte, Toilet.

Beschrijving

Uniek wonen in De Pijp: een royaal dubbel benedenhuis van 122 m² op EIGEN GROND, met een uitzonderlijke 70 m² grote tuin. Deze sfeervolle woning beschikt over drie slaapkamers, twee badkamers en een slimme, comfortabele indeling. Een zeldzame combinatie van ruimte, rust en stadse levendigheid op een absolute toplocatie in Amsterdam!

English down below***

INDELING
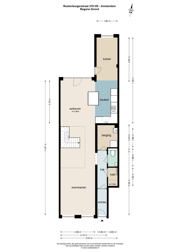
Begane grond
Via de eigen entree betreed je deze fijne woning. In de hal bevinden zich een separaat toilet en een praktische bergruimte met wasmachineaansluiting.

Aan de voorzijde ligt de ruime en lichte woonkamer, die dankzij de grote raampartijen baadt in het daglicht. Aansluitend bevindt zich de eetkamer, met volop ruimte voor een grote eettafel – perfect voor lange diners en gezellige avonden.
De open keuken in hoekopstelling is voorzien van diverse inbouwapparatuur, waaronder een gasfornuis met afzuigkap, vaatwasser en oven.

Via openslaande deuren bereik je de absolute blikvanger van deze woning: de prachtige tuin van circa 70 m². Een heerlijke, groene buitenruimte waar je in alle rust kunt ontspannen, dineren of genieten van lange zomerdagen.

Eerste verdieping
Aan de voorzijde bevinden zich twee slaapkamers. Centraal op deze verdieping ligt de badkamer, uitgerust met een douche en wastafelmeubel en toilet.

Aan de rustige achterzijde bevindt zich de royale master bedroom, voorzien van ingebouwde kasten en een en-suite badkamer met ligbad, douche en wastafelmeubel. Tevens hier ook nog een separaat toilet.

OMGEVING
Het appartement bevindt zich in de levendige en geliefde wijk De Pijp in Amsterdam-Zuid, een bruisende omgeving met een breed scala aan voorzieningen binnen handbereik. Op slechts enkele minuten loopafstand bevindt zich de beroemde Albert Cuypmarkt, waar u dagelijks terecht kunt voor verse producten, kleding en ambachtelijke lekkernijen. Voor ontspanning midden in de stad biedt het groene Sarphatipark de ideale plek om te wandelen, sporten of picknicken. De wijk zelf staat bekend om haar hippe cafés, gezellige restaurants en unieke boetiekjes, waardoor er altijd iets nieuws te ontdekken valt. Ook voor uw dagelijkse boodschappen is de locatie uiterst praktisch. Op loopafstand vindt u diverse supermarkten, waaronder een Albert Heijn direct aan de overkant van de straat. Daarnaast zijn er tal van speciaalzaken, zoals ambachtelijke bakkerijen, biologische winkels, een wijnhandel en het befaamde Massimo’s Gelato op steenworp gelegen.

BEREIKBAARHEID
De bereikbaarheid van dit appartement is uitstekend. Met de fiets bent u binnen tien minuten in het hart van Amsterdam, en de metrohalte van de Noord/Zuidlijn bevindt zich op slechts een paar minuten lopen. Daarnaast zijn er meerdere tram- en bushaltes in de buurt die een snelle verbinding bieden met andere delen van de stad. Station RAI en Zuid/WTC bevinden zich op korte afstand en met de auto bereikt u eenvoudig de Ring A10. Ook Schiphol Airport is vlot te bereiken, met de auto bent u binnen 15 minuten rijden op de luchthaven.

BIJZONDERHEDEN

  • Dubbel benedenhuis met 122 m2 aan woonoppervlakte (NEN2580 gemeten)
  • Royale achtertuin van 70m2
  • EIGEN GROND
  • 3 slaapkamers
  • 2 badkamers
  • Energielabel D
  • Oplevering in overleg

Unique living in De Pijp: a spacious double ground-floor apartment of 122 m² on FREEHOLD LAND, featuring an exceptional 70 m² private garden. This charming home offers three bedrooms, two bathrooms, and a smart, comfortable layout. A rare combination of space, tranquility, and vibrant city life, all in a prime location in Amsterdam!

LAYOUT
Ground floor
You enter this lovely home through a private entrance. The hallway provides access to a separate toilet and a practical storage room with washing machine connection.
At the front of the apartment is the spacious and bright living room, filled with natural light thanks to the large windows. This flows seamlessly into the dining area, which offers ample space for a large dining table—ideal for long dinners and cozy evenings.
The open-plan corner kitchen is equipped with various built-in appliances, including a gas stove with extractor hood, dishwasher, and oven.

Through French doors, you reach the absolute highlight of this property: the beautiful garden of approximately 70 m². A wonderful green outdoor space where you can relax in peace, dine outdoors, or enjoy long summer days.

First floor
At the front are two bedrooms. Centrally located on this floor is the bathroom, fitted with a shower, washbasin with vanity unit, and toilet.

At the quiet rear of the property is the spacious master bedroom, featuring built-in wardrobes and an en-suite bathroom with a bathtub, shower, and washbasin with vanity unit.

SURROUNDINGS
The apartment is located in the lively and highly sought-after neighborhood of De Pijp in Amsterdam-Zuid, a vibrant area with a wide range of amenities within easy reach. Just a few minutes’ walk away is the famous Albert Cuyp Market, where you can shop daily for fresh produce, clothing, and artisanal delicacies. For relaxation in the heart of the city, the green Sarphatipark offers the perfect spot for walking, exercising, or picnicking.
De Pijp is known for its trendy cafés, cozy restaurants, and unique boutiques, ensuring there is always something new to discover. Daily shopping is highly convenient, with several supermarkets within walking distance, including an Albert Heijn directly across the street. In addition, there are numerous specialty shops nearby, such as artisanal bakeries, organic food stores, a wine merchant, and the renowned Massimo Gelato, just around the corner.

ACCESSIBILITY
The accessibility of this apartment is excellent. By bike, you can reach the city center of Amsterdam within ten minutes, and the North/South metro line is only a few minutes’ walk away. Several tram and bus stops nearby provide fast connections to other parts of the city. RAI Station and Amsterdam Zuid/WTC are also close by, while by car you can easily access the A10 ring road. Schiphol Airport is conveniently reachable within approximately 15 minutes by car.

FEATURES
• Double ground-floor apartment with 122 m² of living space
• Spacious rear garden of approx. 70 m²
• Freehold property (no ground lease)
• 3 bedrooms
• 2 bathrooms
• Energy label D
• Delivery/transfer in consultation

Overdracht

Vraagprijs
€ 1.100.000 k.k.
Aangeboden sinds
27-01-2026
Status
Beschikbaar
Beschikbaar
In overleg
Onderhoudsstaat
Goed

Oppervlakte en inhoud

Woonoppervlakte
122 m²
Inhoud
474 m³

VvE informatie

Inschrijving KvK
Ja
Jaarlijkse vergadering
Ja
Periodieke bijdrage
Ja (€ 120 per maand)
Reservefonds aanwezig
Ja
Onderhoudsplan
Ja
Opstalverzekering
Ja

Bouw

Type woning
Appartement
Soort woning
Dubbel benedenhuis, Appartement
Soort bouw
Bestaande bouw
Bouwjaar
1904
Ligging
In een woonwijk

Indeling

Aantal kamers
5
Aantal slaapkamers
3
Aantal badkamers
2
Aantal woonlagen
2
Verdieping
1
Voorzieningen
  • Bad
  • Kabel TV
  • Mechanische ventilatie
  • Douche
  • Bergruimte
  • Toilet

Buitenruimte

Balkon
Aanwezig
Tuin
Aanwezig (70 m², gelegen op het noorden)
Tuinbeschrijving
achtertuin
Achterom
Niet aanwezig
Dakterras
Niet aanwezig

Energie

Isolatie
Vloerisolatie, Dakisolatie
Verwarming
CV-ketel
Warm water
CV-ketel
Cv-ketel
Intergas CW4 (Gas, Eigendom)
Energielabel
D

Bergruimte

Schuur/Berging
Aanwezig
Omschrijving
Vrijstaand hout

Parkeergelegenheid

Aanwezig
Ja
Soort parkeergelegenheid
Openbaar

Garage

Aanwezig
Nee
Meld een probleem met deze woning