Contact met de aanbieder

Deze woning is gevonden buiten ons eigen netwerk. Via de knop hieronder ga je direct naar de website van de aanbieder.

Nieuw

Prinsengracht 514 A

Bekijk kaart
1017 KJ Amsterdam (De Weteringschans)
€ 2.350.000 k.k.
  • 192 m²
  • 5 kamers
  • 1690

Samenvatting

  • Deze woning wordt sinds 24 februari 2026 aangeboden door Visch en van Zeggelaar;
  • De galerijflat heeft een woonoppervlakte van 192 m² en beschikt over 5 kamers, waarvan 3 slaapkamers;
  • De woning is gebouwd In 1690 en ligt in de buurt De Weteringschans in Amsterdam.

Beschrijving

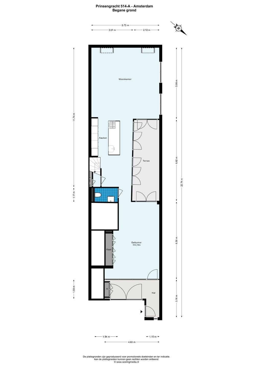
Prinsengracht 514A in Amsterdam biedt een prachtig dubbel benedenhuis, grondig gerenoveerd in 2018 en gelegen in een Rijksmonument uit 1690. Deze woning heeft een woonoppervlakte van 192 m², met drie ruime slaapkamers en twee moderne badkamers. De indeling omvat een privé-entree, een hal met "Smart Glas", en een grote eetruimte die plaats biedt aan meer dan 12 personen. De luxe keuken beschikt over een marmeren eiland en inbouwapparatuur. De woning heeft ook een eigen patio van 15 m², vloerverwarming en is uitgerust met een alarmsysteem. Gelegen in het hart van Amsterdam, dichtbij het museumkwartier en Vondelpark. Dit unieke huis biedt veel originele elementen en moderne voorzieningen die privacy en comfort waarborgen.

Overdracht

Vraagprijs
€ 2.350.000 k.k.
Prijs per m²
€ 12.240
Aangeboden sinds
24-02-2026
Status
Beschikbaar
Beschikbaar
Per direct

Oppervlakte en inhoud

Woonoppervlakte
192 m²

Bouw

Type woning
Appartement
Soort woning
Galerijflat
Soort bouw
Bestaande bouw
Bouwjaar
1690

Indeling

Aantal kamers
5
Aantal slaapkamers
3
Aantal badkamers
2

Buitenruimte

Dakterras
Niet aanwezig
Meld een probleem met deze woning