- 129 m²
- 4 kamers
- 1928
Samenvatting
- Deze woning wordt sinds 26 januari 2026 aangeboden door next move makelaars;
- De bovenwoning heeft een woonoppervlakte van 129 m² en beschikt over 4 kamers, waarvan 3 slaapkamers;
- De woning is gebouwd In 1928 en ligt in de buurt De Muntel in Den Bosch;
- De woning beschikt onder andere over de volgende voorzieningen: Bad, Douche, Toilet, Wasruimte.
Beschrijving
Geldersedam 42 ’s-Hertogenbosch
Royale karakteristieke bovenwoning uit 1928 met maar liefst 129 m² verdeeld over 3 verdiepingen. Met 2 terrassen en uniek uitzicht op de IJzeren Vrouw is dit een verrassend ruime woning met veel potentie, waar kopers hun eigen woonwensen realiseren.
Gelegen in een gemeentelijk monument, in de gewilde wijk De Muntel en op loopafstand van de bruisende binnenstad van 's-Hertogenbosch, de ideale plek om te wonen!
Eigen entree op begane grond, hal met meterkast. Trap opgang naar de eerste verdieping. De bovenwoning is verdeeld over drie verdiepingen met twee ruime dakterrassen gelegen op het zuidwesten, heerlijk om met mooie dagen nog tot laat van de zon te genieten! Aan de voorzijde een fraai uitzicht over de ijzeren vrouw.
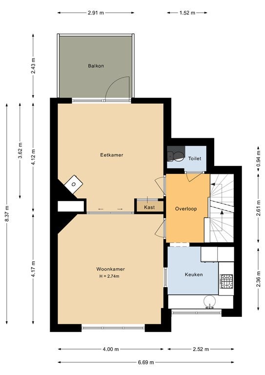
Entree op de begane grond bereik je via de trap de eerste verdieping met de overloop met toegang tot het toilet. Aparte keuken en woonkamer zich bevinden. Vanuit de woonkamer en de keuken een mooi uitzicht over de ijzeren vrouw.
Woonkamer is voorzien van een houten vloer en aan de achterzijde een ruim balkon.
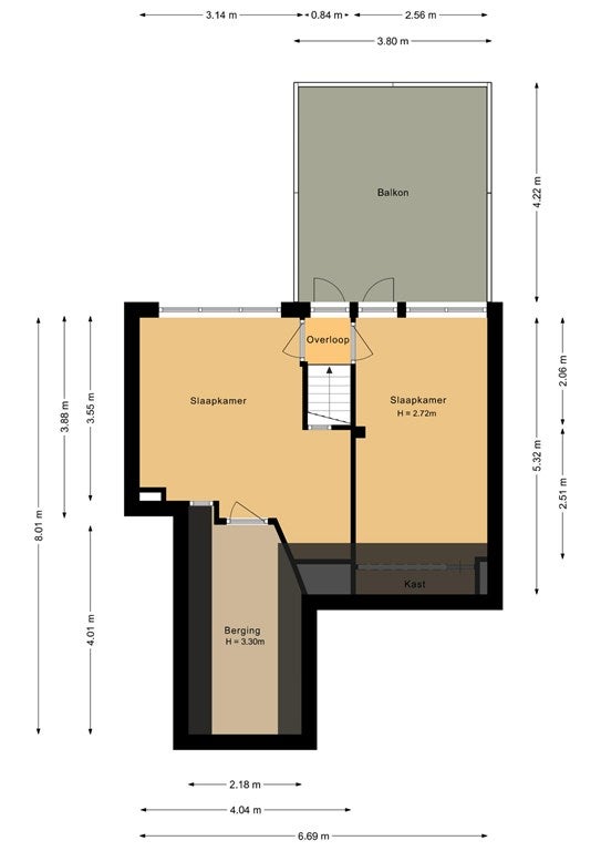
Via een vaste trap bereik je de tweede verdieping waar een zeer ruime slaapkamer, royale badkamer met toilet, hoekbad, inloopdouche en dubbele wastafel is gelegen. Veder een ruime kamer met de aansluitingen voor de wasmachine en droger.
Via de vaste trap naar de derde verdieping waar 2 ruime slaapkamers, waarvan een met een extra bergruimte. Ook is er een royaal dakterras.
Vanaf het dakterras heb je een mooi uitzicht over 's-Hertogenbosch
- Bouwjaar: 1928
- Woonoppervlakte: ca. 129 m²
- Type: bovenwoning met 3 woonlagen
- 3 slaapkamers
- 2 terrassen
- 2 kunststof kozijnen met dubbel glas
- Uitzicht op De IJzeren Vrouw
- Gelegen in De Muntel
- Op korte afstand van centrum, winkels, scholen en openbaar vervoer
- De VvE is slapend, er is een inschrijving bij de Kamer van Koophandel en een gezamenlijke opstalverzekering met de onderburen.
- Niet zelf bewoningsclausule is van toepassing
- Parkeren door middel van een vergunning
- Bouwtechnisch rapport is aanwezig
Een woning met karakter, ruimte en een uitzonderlijke ligging, klaar om naar eigen smaak te worden gemoderniseerd. Ideaal voor kopers die groots willen wonen op een toplocatie in ’s-Hertogenbosch.
ALGEMEEN: De presentatie en promotiemiddelen met indelingstekeningen is uitsluitend bedoeld als hulpmiddel, om u zo goed mogelijk te oriënteren omtrent de indeling, maar niet over afwerking etc. De gegevens zijn in de meeste gevallen afkomstig van een aan ons kantoor ter hand gestelde tekening en zijn puur ter indicatie. De Meetinstructie is gebaseerd op de NEN2580. De Meetinstructie is bedoeld om een meer eenduidige manier van meten toe te passen voor het geven van een indicatie van de gebruiksoppervlakte. De Meetinstructie sluit verschillen in meetuitkomsten niet volledig uit, door bijvoorbeeld interpretatieverschillen, afrondingen of beperkingen bij het uitvoeren van de meting.
De op deze website getoonde vrijblijvende informatie is door ons met zorg samengesteld op basis van gegevens van de verkoper (en/of derden). Wij staan niet in voor de juistheid of volledigheid daarvan, tevens zijn wij niet verantwoordelijk voor de inhoud van de websites waarnaar verwezen wordt.
Bij de bezichtiging ziet u de werkelijkheid waarvan u bij uw eventuele koop uitgaat. Daar is uiteindelijk de bezichtiging voor, die wij graag voor u regelen.
Wij adviseren u en/of uw makelaar om contact met ons op te nemen bij interesse in deze woning. Deze wooninformatie wordt naar meer geïnteresseerden gezonden en is slechts een uitnodiging om in onderhandeling te treden.
Overdracht
- Vraagprijs
- € 500.000 k.k.
- Aangeboden sinds
- 26-01-2026
- Status
- Beschikbaar
- Beschikbaar
- In overleg
- Onderhoudsstaat
- Goed
Oppervlakte en inhoud
- Woonoppervlakte
- 129 m²
- Inhoud
- 445 m³
Bouw
- Type woning
- Appartement
- Soort woning
- Bovenwoning, Appartement
- Soort bouw
- Bestaande bouw
- Bouwjaar
- 1928
- Ligging
- Aan een park
Indeling
- Aantal kamers
- 4
- Aantal slaapkamers
- 3
- Aantal badkamers
- 1
- Aantal woonlagen
- 3
- Verdieping
- 1
- Voorzieningen
-
- Bad
- Douche
- Toilet
- Wasruimte
Buitenruimte
- Balkon
- Aanwezig
- Dakterras
- Niet aanwezig
Energie
- Isolatie
- Dubbele beglazing
- Verwarming
- CV-ketel
- Warm water
- CV-ketel
- Energielabel
- D
Parkeergelegenheid
- Aanwezig
- Ja
- Soort parkeergelegenheid
- Openbaar