Contact met de makelaar

Deze woning is gevonden buiten ons eigen netwerk. Met de knop hieronder kom je direct bij de aanbieder terecht.

Nieuw

Prinsegracht 249

Bekijk kaart
2512 EE Den Haag (Kortenbos)
€ 525.000 k.k.
  • 113 m²
  • 3 kamers
  • 1997

Samenvatting

  • Deze woning wordt sinds 15 januari 2026 aangeboden door RE/MAX Adviseurs Haaglanden;
  • De portiekflat heeft een woonoppervlakte van 113 m² en beschikt over 3 kamers, waarvan 2 slaapkamers;
  • De woning is gebouwd In 1997 en ligt in de buurt Kortenbos in Den Haag;
  • De woning beschikt onder andere over de volgende voorzieningen: Bad, Internetaansluiting, Mechanische ventilatie, Dakterras, Douche, Bergruimte, Toilet, Wasruimte.

Beschrijving

For English see text below

Twee- en driepersoonshuishoudens opgelet: comfortabel én rustig wonen in hartje Den Haag
Speels ruim drie-/vierkamer TOP appartement met woonkeuken, vide, ruim dakterras, inpandige parkeerplaats én privé-berging

Aan één van de mooiste toegangswegen tot het centrum van Den Haag ligt dit fraaie ingedeelde tweelaags drie/vierkamer appartement van 113m². Kenmerkend voor dit ‘top’appartement, dat deel uitmaakt van het project Hofappartementen Prinsegracht (1998), is het ruime dakterras en de entree met woon-/eetkeuken op de zesde verdieping. Het dakterras van maar liefst 29m² biedt vrij en fraai uitzicht over onder meer de tuin van het Hofje van Nieuwkoop en de skyline van Den Haag. Vanwege de top ligging baadt het terras de hele dag in de zon. De eetkeuken biedt door de aanwezigheid van een open ruimte (vide) zicht op de ondergelegen woonlaag, bereikbaar via een binnentrap. Op deze woonlaag bevinden zich onder meer de woon- en slaapvertrekken.

De locatie is zonder meer uniek. Op loopafstand vindt u openbare voorzieningen, o.a. het Haaglanden Medisch Centrum, Randstadrail, het buurtpark Kortenbosch , de bruisende binnenstad van Den Haag met winkels, restaurants, scholen, kunstencentrum Koorenhuis, Poppodium Paard van Troje, het Binnenhof en museum het Mauritshuis. Ook de openbaar vervoersvoorzieningen, waaronder bus en Randstadrail liggen op een steenworp afstand.

Dit instapklare appartement is vanwege locatie en indeling uitermate geschikt voor twee- en drie persoonshuishoudens. Een bezichtiging is zeker de moeite waard. Maak snel een afspraak!

Indeling begane grond
Het afgesloten portiek, uitgerust met brievenbustableau en videofooninstallatie geeft toegang tot een ruime hal. Via de hal wordt toegang verkregen tot de afgesloten inpandige garage met eigen parkeerplek (9m²) en separate berging (4m²). In de doorgang naar de garage bevindt zich de hydrofoorinstallatie met de watermeters van de appartementen. Met de lift wordt de zesde verdieping bereikt.

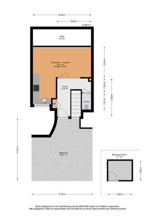
Indeling zesde verdieping
Het appartement bevindt zich op de bovenste verdieping. Het ruime dakterras van 29m² biedt fraai uitzicht over het naastgelegen Hofje van Nieuwkoop en (de skyline) van Den Haag. Het dakterras geeft toegang tot een tochtportaal met meterkast en een royale woon-eetkeuken van 20m die zich op de aangrenzende entresol bevindt. De open keuken beschikt over een 4 pits inductie kookplaat met afzuigkap, oven, koelkast en vrieskast ( 3 laden) en vaatwasmachine. De eetkeuken is extra licht vanwege de aanwezigheid van een lichtkoepel en biedt zicht op de ondergelegen woonkamer. Verder bevindt zich op deze woonlaag nog een toilet met fonteintje.

Indeling vijfde verdieping
Een dichte houten trap geeft toegang tot de overloop op de vijfde verdieping. Grenzend aan een lichtkoof is de overloop extra licht. Aan de voorzijde ervan bevindt zich een ruime woonkamer (35m²) met over de volle breedte raamkozijnen. De twee slaapkamers, resp. 12m² en 9m² bevinden zich aan de achterzijde. Verder grenzen aan de overloop een tweede toilet met fonteintje, badkamer- voorzien van douchecabine, llgbad en wastafel met bijbehorend meubel en radiator, In de trapkast is ruimte voor de cv/wtw installatie en wasmachine/droger. Verder is er nog een ruime inloopkast aanwezig.

Overige kenmerken
De vloeren van beide woonlagen zijn uitgerust met laminaat
De groepenkast beschikt over 9 groepen, beveiligd met aardlekschakelaars
De HR Intergas installatie en de WTW-installatie is uit 2013
Door de aanwezige vide bedraagt de nokhoogte 5.24 meter
De doorlopende raamstrook in de woonkamer biedt een fraai panorama uitzicht op de Prinsegracht
De VVE is actief. De maandelijkse bijdrage voor appartement met één garage bedraagt € 212,17
Een MJOP is aanwezig
Gevel buitenzijde is begin 2024 geschilderd
De hard houten kozijnen zijn uitgerust met isolatieglas
Het energielabel is A en geldig tot 15-12-2035
De inpandige parkeerplaats (met eigen kadastraal nummer) is in 2022 brandwerend gemaakt en is voorzien van camera bewaking (2023). Deze moet verplicht worden afgenomen en kost € 25.000,00
Erfpacht is eeuwigdurend afgekocht
(kopie) verkoopbrochure met plattegronden is aanwezig
Oplevering in overleg

Wetenswaardigheden

Prinsegracht
Van oudsher is de Prinsegracht een voorname locatie. De gracht werd in het midden van de 17e eeuw gebouwd in het verlengde van de Grote Markt. Het was een waardige stadsuitbreiding, waar de adel en de gegoede burgerij hun domicilie vonden. Barokke monumenten drukken tot op de dag van vandaag hun stempel op de omgeving. Voorbeelden daarvan zijn de fraai gerestaureerde Boterwaag en het Koorenhuis. Veel klassieke patriciërshuizen zijn inmiddels in ere hersteld.

Hofje van Nieuwkoop
Direct naast ‘Hofappartementen Prinsegracht’ ligt het Hofje van Nieuwkoop. Dit Hofje dateert uit de 17e eeuw (circa 1670) en werd gebouwd voor arme en behoeftige weduwen. De hoofdingang is gelegen aan de Prinsegracht, maar achter in het hof is een zij-ingang die nu door de bewoners wordt gebruikt. Recht tegenover de hoofdingang staat het Regentenhuis. In 1845 besloten de regenten de huisjes voor armlastige vrouwen te bestemmen. Na het 300-jarig bestaan werd het Hofje in een stichting ondergebracht en werd besloten tot een grondige renovatie. Er zijn nu 62 huisjes die in een rechthoek om de tuin staan. De pomp die nu in het midden van de tuin staat, is uit de 18e eeuw en staat op de plaats waar vroeger de privaten stonden. Het hofje is een Rijksmonument en maakt deel uit van de jaarlijkse Monumentendagen.

Attention two- and three-person households:
comfortable and peaceful living in the heart of The Hague.

Playfully spacious three- or four-room TOP apartment with eat-in kitchen, loft, spacious roof terrace, indoor parking space, and private storage. This beautifully laid-out two-story three- or four-room apartment of 113m² is located on one of the most beautiful access roads to the center of The Hague. Characteristic of this "top" apartment, part of the Hofappartementen Prinsegracht project (1998), is the spacious roof terrace and the entrance with eat-in kitchen on the sixth floor. The roof terrace of no less than 29m² offers unobstructed and beautiful views of, among other things, the garden of the Hofje van Nieuwkoop and the skyline of The Hague. Due to its prime location, the terrace is bathed in sunshine all day long. The eat-in kitchen, thanks to an open space (loft), offers a view of the living area below, accessible via an internal staircase. This living area includes the living and bedrooms.

The location is truly unique. Within walking distance, you'll find public amenities, including the Haaglanden Medical Center, the RandstadRail network, Kortenbosch neighborhood park, The Hague's vibrant city center with shops, restaurants, schools, the Koorenhuis arts center, the Paard van Troje pop venue, the Binnenhof, and the Mauritshuis Museum. Public transport, including buses and the RandstadRail network, is also just a stone's throw away.

This move-in ready apartment, thanks to its location and layout, is ideal for two- and three-person households. A viewing is definitely recommended. Schedule an appointment now

Ground Floor Layout
The secure porch, equipped with a mailbox panel and video intercom system, opens into a spacious hallway. This hallway provides access to the secure, integrated garage with a private parking space (9m²) and a separate storage room (4m²). The passageway to the garage houses the water pressure system, which houses the apartments' water meters. The elevator provides access to the sixth floor.

Sixth Floor Layout
The apartment is located on the top floor. The spacious 29m² roof terrace offers beautiful views of the adjacent Hofje van Nieuwkoop and The Hague (the skyline). The roof terrace provides access to a vestibule with the meter cupboard and a spacious 20m² kitchen-diner located on the adjacent mezzanine. The open-plan kitchen is equipped with a 4-burner induction cooktop with extractor hood, oven, refrigerator and freezer (3 drawers), and dishwasher. A skylight provides extra light and offers a view of the living room below. Furthermore, there is a toilet with a washbasin on this floor.

Fifth Floor Layout
A closed wooden staircase leads to the fifth-floor landing. Adjacent to a skylight, the landing is extra bright. At the front of the landing is a spacious living room (35m²) with full-width windows. The two bedrooms, 12m² and 9m² respectively, are located at the rear. Adjacent to the landing are a second toilet with a small sink, and a bathroom with a shower, double bathtub, and a washbasin with matching vanity and radiator. The under-stairs cupboard houses the central heating/heat recovery system and a washer/dryer. There is also a spacious walk-in closet.

Other features
The floors on both floors are fitted with laminate flooring.
The distribution board has 9 circuits, protected by earth leakage circuit breakers.
The Intergas high-efficiency system and the heat recovery system are from 2013.
Due to the existing atrium, the ridge height is 5.24 meters.
The continuous window strip in the living room offers a beautiful panoramic view of the Prinsengracht canal.
The homeowners' association (VVE) is active. The monthly contribution for the apartment with one garage is €212.17.
A long-term maintenance plan (MJOP) is in place.
The exterior facade was painted in early 2024.
The hardwood window frames are fitted with insulating glass.
The energy label is A and valid until December 15, 2035.
The indoor parking space (with its own cadastral number) was made fire-resistant in 2022 and is equipped with CCTV (2023). This is mandatory and costs €25,000.00.
The leasehold has been bought off in perpetuity.
A copy of the sales brochure with floor plans is available.
Delivery is possible upon consultation.

Prinsegracht
The Prinsegracht has traditionally been a prominent location. Built in the mid-17th century, the canal extends from the Grote Markt (main square). It was a worthy extension of the city, where the nobility and wealthy bourgeoisie found their residence. Baroque monuments still leave their mark on the area today. Examples include the beautifully restored Boterwaag (Botterwaag) and the Koorenhuis (Choir House). Many classical patrician houses have since been restored to their former glory.

Almshouses of Nieuwkoop
Directly next to the "Hofappartementen Prinsegracht" (Prince's Canal Court Apartments) lies the Almshouses of Nieuwkoop. This almshouse dates from the 17th century (circa 1670) and was built for poor and needy widows. The main entrance is on the Prinsegracht, but at the rear of the almshouse is a side entrance that is now used by the residents. Directly opposite the main entrance is the Regentenhuis (Regente House). In 1845, the regents decided to designate the houses for poor women. After its 300th anniversary, the almshouse was transferred to a foundation, and a thorough renovation was undertaken. There are now 62 houses arranged in a rectangle around the garden. The pump now in the center of the garden dates from the 18th century and stands where the privies once stood. The almshouse is a national monument and is part of the annual Heritage Days.

Overdracht

Vraagprijs
€ 525.000 k.k.
Aangeboden sinds
15-01-2026
Status
Beschikbaar
Beschikbaar
In overleg
Onderhoudsstaat
Goed

Oppervlakte en inhoud

Woonoppervlakte
113 m²
Inhoud
364 m³

Bouw

Type woning
Appartement
Soort woning
Portiekflat, Appartement
Soort bouw
Bestaande bouw
Bouwjaar
1997
Ligging
  • Aan een drukke weg
  • In een woonwijk
  • Nabij het openbaar vervoer
  • Nabij een school
  • Vrij uitzicht

Indeling

Aantal kamers
3
Aantal slaapkamers
2
Aantal badkamers
1
Aantal woonlagen
2
Verdieping
6
Voorzieningen
  • Bad
  • Internetaansluiting
  • Mechanische ventilatie
  • Dakterras
  • Douche
  • Bergruimte
  • Toilet
  • Wasruimte

Buitenruimte

Balkon
Niet aanwezig
Dakterras
Aanwezig

Energie

Isolatie
Volledig geïsoleerd
Verwarming
CV-ketel
Warm water
CV-ketel
Cv-ketel
HR Vailllant (Gas, uit 2013)
Energielabel
A+

Bergruimte

Schuur/Berging
Aanwezig

Parkeergelegenheid

Aanwezig
Ja

Garage

Aanwezig
Nee
Meld een probleem met deze woning