Contact met de makelaar

Deze woning is gevonden buiten ons eigen netwerk. Met de knop hieronder kom je direct bij de aanbieder terecht.

Nieuw

Garderenstraat

Bekijk kaart
2573 VW Den Haag (Oostbroek-Zuid)
€ 275.000 k.k.
  • 75 m²
  • 3 kamers
  • 1934

Samenvatting

  • Deze woning wordt sinds 14 januari 2026 aangeboden door RE/MAX Direct;
  • De galerijflat heeft een woonoppervlakte van 75 m² en beschikt over 3 kamers, waarvan 2 slaapkamers;
  • De woning is gebouwd In 1934 en ligt in de buurt Oostbroek-Zuid in Den Haag.

Beschrijving

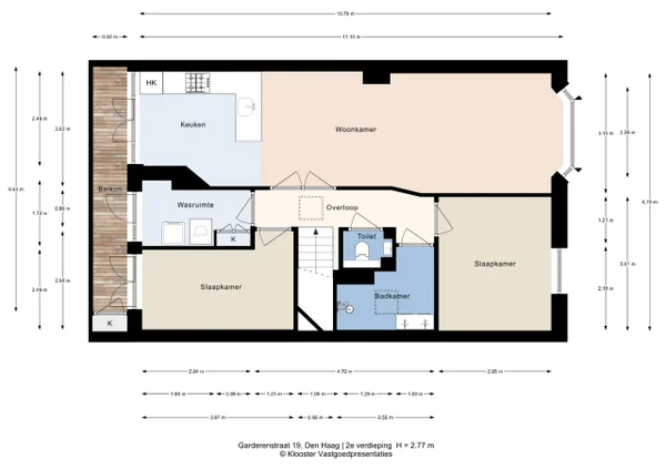
Dit lichte en sfeervolle 3/4 kamer appartement, gelegen in de wijk Rustenburg/Oostbroek, biedt veel comfort en gemak. Met een woonoppervlak van ca. 75 m² beschikt het over twee ruime slaapkamers, een moderne badkamer, en een waskamer die eerder als keuken diende. De open keuken is voorzien van een 4-pits gasfornuis, oven, en vaatwasser, en heeft toegang tot een balkon dat zich over de volledige breedte van het appartement uitstrekt. Het appartement is goed bereikbaar met openbaar vervoer en ligt dicht bij het Zuiderpark, een plek voor sport en recreatie. De woning, gebouwd in 1934, is volledig voorzien van dubbel glas en kunststof kozijnen. Er is een actieve VvE met een bijdrage van €140,- per maand. De verwarming en het warme water worden geregeld via een CV-combi ketel uit 2016. Energielabel B.

Overdracht

Vraagprijs
€ 275.000 k.k.
Aangeboden sinds
14-01-2026
Status
Beschikbaar
Beschikbaar
Per direct

Oppervlakte en inhoud

Woonoppervlakte
75 m²

Bouw

Type woning
Appartement
Soort woning
Galerijflat
Soort bouw
Bestaande bouw
Bouwjaar
1934

Indeling

Aantal kamers
3
Aantal slaapkamers
2
Aantal badkamers
1

Buitenruimte

Dakterras
Niet aanwezig

Energie

Energielabel
B
Meld een probleem met deze woning