- 75 m²
- 3 kamers
- 1934
Samenvatting
- Deze woning wordt sinds 14 januari 2026 aangeboden door RE/MAX City Makelaardij;
- De portiekflat heeft een woonoppervlakte van 75 m² en beschikt over 3 kamers, waarvan 2 slaapkamers;
- De woning is gebouwd In 1934 en ligt in de buurt Oostbroek-Zuid in Den Haag;
- De woning beschikt onder andere over de volgende voorzieningen: Douche, Toilet, Wasruimte.
Beschrijving
Kopers opgelet!
Bent u op zoek naar een licht, sfeervol en instap-klaar huis? Stop dan met zoeken, u heeft hem zojuist gevonden!
Dit 3/4 kamer top appartement is voorzien van enorm veel lichtinval, 2 goede slaapkamers en een waskamer een moderne badkamer en keuken en een zeer centrale ligging.
De woning is gelegen in de wijk Rustenburg/Oostbroek, op loopafstand van het Zuiderpark, waar u heerlijk kunt sporten, wandelen, spelen maar ook diverse festivals plaatsvinden. De woning is ook goed gelegen t.o.v. openbaar vervoer verbindingen en uitvalswegen
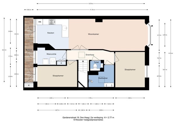
Entree woning op de eerste verdieping, hal v.v. meterkast, trapopgang naar de 2e verdieping: woonverdieping. Overloop welke toegang geeft tot alle vertrekken. Ruime woonkamer met open keuken. De keuken is v.v. 4 pits gas kookplaat, afzuigkap, oven, koel-/vriescombi, vaatwasser en toegang tot het balkon. Ruime slaapkamer aan de voorzijde gelegen, badkamer v.v. douche, dubbel wastafelmeubel, lichtkoepel en handdoekradiator. De tweede slaapkamer is aan de achterzijde gelegen en is eveneens ruim opgezet. De voormalig keuken is omgetoverd tot 3e kamer en is thans in gebruik als waskamer alwaar opstelplaats wasmachine-/droger en cv-combi ketel. Aan de achterzijde een balkon over de gehele breedte met vaste kast.
Kortom een geweldig appartement met karakter en sfeer voor een betaalbare prijs!
- Type woning: bovenwoning
- Woonoppervlak: ca 75 m2
- Bouwjaar: 1934
- De woning is gelegen op eigen grond
- De woning is geheel v.v. dubbel glas met kunststof kozijnen
- De VvE is actief, bijdrage € 140,- per maand (dak is onlangs vernieuwd en geïsoleerd)
- Verwarming en warm water middels cv-combi ketel (bouwjaar 2016)
- De woning beschikt over Energielabel B
- Conform het bouwjaar van de woning zullen wij de ouderdom en materialenclausule opnemen in de koopovereenkomst
- Oplevering in overleg
Overdracht
- Vraagprijs
- € 275.000 k.k.
- Aangeboden sinds
- 14-01-2026
- Status
- Beschikbaar
- Beschikbaar
- In overleg
- Onderhoudsstaat
- Goed
Oppervlakte en inhoud
- Woonoppervlakte
- 75 m²
- Inhoud
- 270 m³
VvE informatie
- Inschrijving KvK
- Ja
- Jaarlijkse vergadering
- Ja
- Periodieke bijdrage
- Ja (€ 140 per maand)
- Reservefonds aanwezig
- Ja
- Onderhoudsplan
- Ja
- Opstalverzekering
- Ja
Bouw
- Type woning
- Appartement
- Soort woning
- Portiekflat, Appartement
- Soort bouw
- Bestaande bouw
- Bouwjaar
- 1934
Indeling
- Aantal kamers
- 3
- Aantal slaapkamers
- 2
- Aantal badkamers
- 1
- Aantal woonlagen
- 1
- Verdieping
- 3
- Voorzieningen
-
- Douche
- Toilet
- Wasruimte
Buitenruimte
- Balkon
- Aanwezig
- Dakterras
- Niet aanwezig
Energie
- Isolatie
- Dubbele beglazing
- Verwarming
- CV-ketel
- Warm water
- CV-ketel
- Energielabel
- B
Parkeergelegenheid
- Aanwezig
- Ja
- Soort parkeergelegenheid
- Betaald