Contact met de makelaar

Deze woning is gevonden buiten ons eigen netwerk. Met de knop hieronder kom je direct bij de aanbieder terecht.

Nieuw

Rhenenstraat 182

Bekijk kaart
2546 TZ Den Haag (Leyenburg)
€ 350.000 k.k.
  • 107 m²
  • 6 kamers
  • 1941

Samenvatting

  • Deze woning wordt sinds 16 januari 2026 aangeboden door Park 16Hoven Makelaardij;
  • De bovenwoning heeft een woonoppervlakte van 107 m² en beschikt over 6 kamers, waarvan 4 slaapkamers;
  • De woning is gebouwd In 1941 en ligt in de buurt Leyenburg in Den Haag;
  • De woning beschikt onder andere over de volgende voorzieningen: Internetaansluiting, Mechanische ventilatie, Douche, Schuifdeuren, Toilet.

Beschrijving

SFEERVOL WONEN IN EEN DUBBELE BOVENWONING OP EIGEN GROND MET EEN HEERLIJK ZONNIG BALKON OP HET ZUIDEN MET HET ZUIDERPARK ALS UW ACHTERTUIN-IN-GEDACHTEN

English text below

Op een rustige, groene locatie, op slechts enkele minuten wandelen van het geliefde Zuiderpark, wacht deze charmante en verrassend ruime dubbele bovenwoning van 107 m² woonoppervlakte op zijn nieuwe bewoners. Een plek waar licht, ruimte en comfort samenkomen met over de volle breedte een zonnig balkon op het zuiden waar u tot laat in de middag geniet van de zon.

Hier woont u met plezier: twee woonlagen, een royale doorzonwoonkamer, praktische keuken, vernieuwde badkamer en maar liefst vier slaapkamers maken dit een ideale woning voor wie ruimte zoekt .

Waarom deze woning zo bijzonder is:

• Eigen grond
• Woonoppervlakte 107 m²
• Bouwjaar 1941
• Energielabel D
• Zonnig balkon op het zuidwesten over de volledige breedte
• Veel natuurlijk licht
• Vier slaapkamers
• Zolderruimte van ca. 20 m² vloeroppervlak (eventueel uit te breiden tot woonoppervlakte)
• Dubbele beglazing
• Kunststof kozijnen (1e verdieping)
• Houten kozijnen (2e verdieping)
• Nieuwe badkamer van 2024
• Keuken van 2020
• Verwarming en WW via combiketel
• Mechanische ventilatie
• Oplevering kan snel

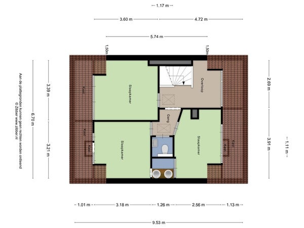
Indeling

Eerste etage
Via het open portiek bereikt u de entree met een ruim portaal, uitgebreide meterkast en handige bergruimte.
De lichte woon-/eetkamer strekt zich uit van voor tot achter en wordt prachtig verlicht door de grote ramen. Aan de achterzijde schuift u zo de pui open naar het balkon, een heerlijke verlenging van uw woonkamer op zonnige dagen.
Aan de voorzijde bevindt zich een extra kamer, ideaal als slaap-, werk- of hobbyruimte.

De keuken is praktisch ingericht en uitgerust met een inductiekookplaat, moderne zwarte afzuigkap, oven, vaatwasser en koel-/vriescombinatie. Ook vanuit de keuken heeft u directe toegang tot het balkon.
De vernieuwde tussengelegen badkamer beschikt over een inloopdouche, stijlvol wastafelmeubel, handdoekradiator en de opstelplaats voor de wasmachine. Daarnaast is er een separaat toilet met fonteintje.

Tweede etage
Een open houten stevige draaitrap brengt u naar de bovenetage met een ruime overloop en veel opbergmogelijkheden in de knieschotten. Hier bevindt zich tevens een tweede toiletruimte met fonteintje.
Aan de voorzijde liggen twee slaapkamers, beide met opbergruimte. De linker slaapkamer beschikt daarbij over een eigen wastafelkast. De vierde slaapkamer, aan de achterzijde, heeft eveneens veel inbouw- en knieschotruimte én een eigen wastafelkast.

Royale zolderruimte
Boven de tweede verdieping bevindt zich een verrassend ruime zolder van ca. 20 m² vloeroppervlakte. Deze verdieping is nu bereikbaar via een aluminium schuifbare trap, maar biedt uitstekende mogelijkheden om te worden uitgebreid met een vaste trap en een dakkapel aan de achterzijde. Daarmee creëert u eenvoudig een extra slaapkamer, werkruimte of atelier.

Locatie
De woning ligt ideaal ten opzichte van voorzieningen: winkelcentra Leyenburg, Almeloplein en Leyweg bevinden zich op fietsafstand. Het openbaar vervoer brengt u binnen enkele minuten naar de Haagse binnenstad, sportverenigingen en de stranden van Kijkduin en Scheveningen. De uitvalswegen A4, A12 en A13 zijn snel bereikbaar.
Natuurliefhebbers en rustzoekers zitten hier perfect: het Zuiderpark biedt volop ruimte voor hardlopen, wandelen, picknicken en het bijwonen van diverse zomerse evenementen.

Overig
• Actieve VvE
• VvE-bijdrage € 80 p/m
• Elektra: 8 groepen met 2 aardlekschakelaars
• Vrij parkeren tot 18:00 uur; daarna betaald/vergunning
• NEN 2580-meetrapport beschikbaar

Wordt dit uw nieuwe thuis?
Maak een afspraak en laat u verrassen door de ruimte, het licht en de fijne ligging.
U bent van harte welkom voor een bezichtiging.

Neem vandaag nog contact met ons op.

Deze informatie is door ons met de nodige zorgvuldigheid samengesteld. Onzerzijds wordt echter geen enkele aansprakelijkheid aanvaard voor enige onvolledigheid, onjuistheid of anderszins, dan wel de gevolgen daarvan. Alle opgegeven maten en oppervlakten zijn indicatief.

ATMOSPHERIC LIVING IN A DOUBLE UPPER HOUSE ON FREEHOLD LAND WITH A WONDERFULLY SUNNY SOUTH-FACING BALCONY AND THE ZUIDERPARK AS YOUR “BACKYARD-IN-THOUGHT”

In a quiet, green location, just a few minutes’ walk from the beloved Zuiderpark, this charming and surprisingly spacious double upper house with 107 m² of living space is waiting for its new residents. A place where light, space, and comfort come together, featuring a sunny south-facing balcony that spans the full width of the home—allowing you to enjoy the sun until late in the afternoon.

Here, you will truly enjoy living: two floors, a generous through-living room, practical kitchen, renovated bathroom, and no fewer than four bedrooms make this an ideal home for anyone seeking ample space.

Why this home is so special:
• Freehold property
• Living area of 107 m²
• Built in 1941
• Energy label D
• Sunny southwest-facing balcony spanning the full width of the home
• Abundant natural light
• Four bedrooms
• Attic space of approx. 20 m² floor area (potential to convert into additional living space)
• Double glazing
• PVC window frames (1st floor)
• Wooden window frames (2nd floor)
• New bathroom from 2024
• Kitchen from 2020
• Heating and hot water via combi boiler
• Mechanical ventilation
• Quick delivery possible

Layout

First Floor
Via the open porch, you reach the entrance with a spacious hallway, an expanded fuse box, and convenient storage space.
The bright living/dining room stretches from front to back and is beautifully illuminated by the large windows. At the rear, you can slide open the doors to the balcony, an inviting extension of your living room on sunny days.
At the front, there is an additional room, ideal as a bedroom, office, or hobby room.

The kitchen is practically laid out and equipped with an induction cooktop, modern black extractor hood, oven, dishwasher, and fridge/freezer combination. The kitchen also provides direct access to the balcony.
The newly renovated mid-level bathroom features a walk-in shower, a stylish washbasin cabinet, towel radiator, and the connection for the washing machine. There is also a separate toilet with a small sink.

Upper Floor
A sturdy open wooden spiral staircase leads you to the upper level, which features a spacious landing and plenty of storage space in the knee walls. This floor also includes a second toilet with a small sink.
At the front are two bedrooms, both with storage space. The left bedroom additionally features its own washbasin cabinet. The fourth bedroom, located at the rear, also has ample built-in and knee-wall storage as well as its own washbasin cabinet.

Generous Attic Space
Above the second floor is a surprisingly spacious attic of approximately 20 m² of floor area. It is currently accessible via an aluminum retractable ladder, but offers excellent potential to be expanded with a fixed staircase and a dormer window at the rear. This would allow you to easily create an additional bedroom, workspace, or studio.

Location
The home is ideally situated close to amenities: the Leyenburg, Almeloplein, and Leyweg shopping centers are all within cycling distance. Public transport takes you within minutes to The Hague’s city center, sports clubs, and the beaches of Kijkduin and Scheveningen. The A4, A12, and A13 highways are also quickly accessible.
Nature lovers and those seeking peace will feel right at home here: the Zuiderpark offers ample space for running, walking, picnics, and various summer events.

General features:
• Active homeowners’ association (VvE)
• VvE contribution: €80 per month
• Electrical system: 8 circuits with 2 residual-current devices
• Free parking until 18:00; paid/permit parking afterwards
• NEN 2580 measurement report available

Will this be your new home?
Schedule a viewing and let yourself be pleasantly surprised by the space, the light, and the wonderful location. You are most welcome to come and take a look.
Contact us today.

Overdracht

Vraagprijs
€ 350.000 k.k.
Aangeboden sinds
16-01-2026
Status
Beschikbaar
Beschikbaar
Per direct
Onderhoudsstaat
Goed

Oppervlakte en inhoud

Woonoppervlakte
107 m²
Perceeloppervlakte
172 m²
Inhoud
354 m³

VvE informatie

Inschrijving KvK
Ja
Periodieke bijdrage
Ja (€ 80 per maand)
Opstalverzekering
Ja

Bouw

Type woning
Appartement
Soort woning
Bovenwoning, Dubbel bovenhuis
Soort bouw
Bestaande bouw
Bouwjaar
1941
Ligging
  • Aan een rustige weg
  • In een woonwijk

Indeling

Aantal kamers
6
Aantal slaapkamers
4
Aantal badkamers
1
Aantal woonlagen
3
Verdieping
1
Voorzieningen
  • Internetaansluiting
  • Mechanische ventilatie
  • Douche
  • Schuifdeuren
  • Toilet

Buitenruimte

Balkon
Niet aanwezig
Dakterras
Niet aanwezig

Energie

Isolatie
Dubbele beglazing, Dakisolatie
Verwarming
CV-ketel
Warm water
CV-ketel
Energielabel
D

Parkeergelegenheid

Aanwezig
Ja
Soort parkeergelegenheid
Openbaar
Meld een probleem met deze woning