Contact met de makelaar

Deze woning is gevonden buiten ons eigen netwerk. Met de knop hieronder kom je direct bij de aanbieder terecht.

Nieuw

Helmstraat 8 B

Bekijk kaart
6211 TA Maastricht (Binnenstad)
€ 1.450.000 k.k.
  • 283 m²
  • 6 kamers
  • 1902

Samenvatting

  • Deze woning wordt sinds 29 januari 2026 aangeboden door Lassoo Makelaars & Taxateurs;
  • De galerijflat heeft een woonoppervlakte van 283 m² en beschikt over 6 kamers, waarvan 5 slaapkamers;
  • De woning is gebouwd In 1902 en ligt in de buurt Binnenstad in Maastricht.

Beschrijving

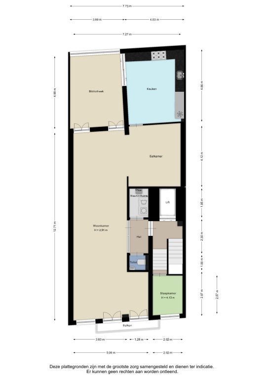
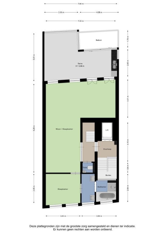
In het historische centrum van Maastricht, vlakbij het Vrijthof, wacht een woning die zijn gelijke niet kent. Dit exclusieve appartement aan de Helmstraat 8B, gelegen in een monumentaal pand, biedt een combinatie van geschiedenis en modern comfort. Met een woonoppervlak van 283 m², eigen lift en een wintertuin met uitzicht over de stad, is dit een zeldzaam appartement in de binnenstad.

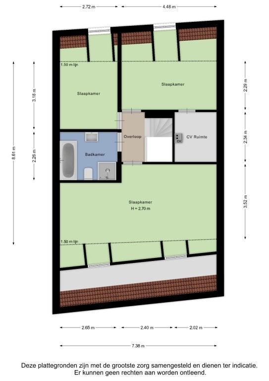
Het souterrain heeft twee ruime kelders voor opslag of hobbygebruik. Op de begane grond komt u binnen via een statige hal met toegang tot uw eigen lift of een brede trap. De eerste verdieping herbergt een elegante woonkamer, een klassieke keuken en een bibliotheek. De tweede verdieping beschikt over een royale woon-/slaapkamer met en-suite badkamer en toegang tot de wintertuin. De derde verdieping biedt nog eens drie slaapkamers en een ruime badkamer. Het appartement heeft meerdere balkons, perfect voor een moment van rust.

Overdracht

Vraagprijs
€ 1.450.000 k.k.
Aangeboden sinds
29-01-2026
Status
Beschikbaar
Beschikbaar
Per direct

Oppervlakte en inhoud

Woonoppervlakte
283 m²

Bouw

Type woning
Appartement
Soort woning
Galerijflat
Soort bouw
Bestaande bouw
Bouwjaar
1902

Indeling

Aantal kamers
6
Aantal slaapkamers
5
Aantal badkamers
3

Buitenruimte

Dakterras
Niet aanwezig
Meld een probleem met deze woning