Contact met de makelaar

Deze woning is gevonden buiten ons eigen netwerk. Met de knop hieronder kom je direct bij de aanbieder terecht.

Houtlaan 319

Bekijk kaart
3016 DA Rotterdam (Nieuwe Werk)
€ 1.150.000 k.k.
  • 122 m²
  • 3 kamers
  • 2022

Samenvatting

  • Deze woning wordt sinds 6 weken aangeboden door Schildtvoorde;
  • De portiekflat heeft een woonoppervlakte van 122 m² en beschikt over 3 kamers, waarvan 2 slaapkamers;
  • De woning is gebouwd In 2022 en ligt in de buurt Nieuwe Werk in Rotterdam;
  • De woning beschikt onder andere over de volgende voorzieningen: Bad, Lift, Mechanische ventilatie, Douche, Toilet.

Beschrijving

Welkom aan de Houtlaan 319! Gelegen op de 32e verdieping in de Zalmhaven toren bevindt zich dit luxe appartement met prachtig uitzicht over Rotterdam.

Via de 2 ingangen krijgt u toegang tot dit prachtige appartementencomplex, waar u alleen naar binnen kunt als bewoner of als u een afspraak heeft. Er zijn meerdere liften aanwezig welke toegang bieden tot aan de 57ste verdieping, ook is er is een 3-laagse parkeergarage in het gebouw en een aantal lagen met ruime bergingen welke bij de appartementen horen.

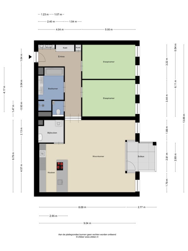
Op de 32e verdieping stapt u binnen in een luxe en comfortabel appartement met uitzicht over Rotterdam wat nooit verveeld! Bij binnenkomst treft u de entree/hal welke is voorzien van een maatwerk garderobe kast en de nette toiletruimte. De ruime woonkamer is gelegen aan de achterzijde van de woning en heeft veel lichtinval door de grote raampartijen. De moderne open keuken met schiereiland is voorzien van een gezellige bar en verschillend inbouwapparatuur. Via de woonkamer krijgt u toegang tot het balkon welke is gelegen op het oosten. De nette en betegelde badkamer is gelegen aan de voorzijde van de woning. Het appartement beschikt over twee slaapkamers, beide met mooi uitzicht over de Maas. Tevens is heel de woning voorzien van een PVC vloer.

Er is een ruime parkeergelegenheid in de garage, exclusief voor bewoners, toegankelijk met een keycard. Bewoners van de Zalmhaven I komen via de lift vanuit de lobby bij de parkeergarage. Het appartement heeft een eigen parkeerplaats en een eigen berging. De berging is gelokaliseerd op de derde verdieping. Op de parkeergarage bevindt zich een daktuin die alleen toegankelijk is voor de bewoners van De Zalmhaven.

Wonen op Houtlaan 319 betekent kiezen voor absolute topklasse: in De Zalmhaventoren, de hoogste woontoren van de Benelux, woont u letterlijk en figuurlijk boven de Maas en de skyline van Rotterdam met adembenemend uitzicht op de rivier en iconen zoals de Erasmusbrug. De locatie is het charmante, karaktervolle Scheepvaartkwartier een wijk waar historie en moderniteit samenkomen. Vanuit uw appartement wandelt u moeiteloos naar het hart van Rotterdam: winkels, boetieks, galeries, en alle voorzieningen liggen binnen handbereik. Cultuur, kunst, theater, musea en het bruisende stadsleven zijn op korte afstand. qua bereikbaarheid is het een toplocatie. U bent dichtbij tram- en metrostations en andere OV-verbindingen, ook het centrum en het station van Rotterdam zijn snel en eenvoudig te bereiken. Voor automobilisten biedt de ligging bij de Erasmusbrug, de Boompjes en de Coolsingel vlotte toegang tot uitvalswegen.

32ste verdieping:

  • Middels de entree/hal krijgt u toegang tot de verschillende vertrekken;
  • Toiletruime welke is voorzien van een fonteintje en wandcloset;
  • Ruime woonkamer met veel lichtinval door de grote raampartijen;
  • Via de woonkamer krijgt u toegang tot het balkon;
  • Het balkon is gelegen op het oosten;
  • De moderne open keuken met schiereiland is voorzien van Siemens inbouwapparatuur: koel/- en vriescombinatie, oven vaatwasser, inductiekookplaat met afzuigsysteem en een Quooker.
  • De betegelde badkamer is voorzien van: een ligbad, inloopdouche, dubbel wastafelmeubel, designradiator en een spiegel met verlichting;
  • Slaapkamer 1;
  • Slaapkamer 2;

Bijzonderheden:

  • Bouwjaar: 2022;
  • Woonoppervlakte: ca. 122 m²;
  • Inhoud: ca. 401 m³;
  • Energielabel A++;
  • Gelegen op eigen grond;
  • Verwarming en warm water middels stadsverwarming (Aquaheat | 2021);
  • Gehele woning voorzien van vloerverwarming;
  • De woning is voorzien van een PVC vloer;
  • De woning is voorzien van kunststof kozijnen en dubbele beglazing;
  • Prachtig uitzicht over de maas en skyline van Rotterdam;
  • Voorzien van een eigen parkeerplaats;
  • Voorzien van een eigen berging in het gebouw;
  • Daktuin op de vierde verdieping;
  • Actieve Vve bijdrage per maand € 493,42,- & € 43,19,- voor de parkeergarage;

De oplevering vindt plaats in overleg.

Alle verstrekte informatie moet beschouwd worden als een uitnodiging tot het doen van een bod of om in onderhandeling te treden.

Deze informatie is door ons met de nodige zorgvuldigheid samengesteld. Onzerzijds wordt echter geen enkele aansprakelijkheid aanvaard voor enige onvolledigheid, onjuistheid of anderszins, dan wel de gevolgen daarvan. Alle opgegeven maten en oppervlakten zijn indicatief. Van toepassing zijn de NVM voorwaarden.

Koopovereenkomst pas rechtsgeldig na ondertekening:
Een mondelinge overeenstemming tussen de particuliere verkoper en de particuliere koper is niet rechtsgeldig. Met andere woorden: er is geen koop. Er is pas sprake van een rechtsgeldige koop als de particuliere verkoper en de particuliere koper de koopovereenkomst hebben ondertekend. Dit vloeit voort uit artikel 7:2 Burgerlijk Wetboek. Een bevestiging van de mondelinge overeenstemming per e-mail of een toegestuurd concept van de koopovereenkomst wordt overigens niet gezien als een 'ondertekende koopovereenkomst'.

Toelichtingsclausule NEN2580:
De Meetinstructie is gebaseerd op de NEN2580. De Meetinstructie is bedoeld om een meer eenduidige manier van meten toe te passen voor het geven van een indicatie van de gebruiksoppervlakte. De Meetinstructie sluit verschillen in meetuitkomsten niet volledig uit, door bijvoorbeeld interpretatieverschillen, afrondingen of beperkingen bij het uitvoeren van de meting.

Overdracht

Vraagprijs
€ 1.150.000 k.k.
Aangeboden sinds
10-12-2025
Status
Beschikbaar
Beschikbaar
In overleg
Onderhoudsstaat
Goed

Oppervlakte en inhoud

Woonoppervlakte
122 m²
Inhoud
401 m³

VvE informatie

Inschrijving KvK
Nee
Jaarlijkse vergadering
Nee
Periodieke bijdrage
Ja (€ 537 per maand)
Reservefonds aanwezig
Nee
Onderhoudsplan
Nee
Opstalverzekering
Nee

Bouw

Type woning
Appartement
Soort woning
Portiekflat, Corridorflat
Soort bouw
Bestaande bouw
Bouwjaar
2022
Ligging
  • In het centrum
  • Vrij uitzicht

Indeling

Aantal kamers
3
Aantal slaapkamers
2
Aantal badkamers
1
Aantal woonlagen
1
Voorzieningen
  • Bad
  • Lift
  • Mechanische ventilatie
  • Douche
  • Toilet

Buitenruimte

Balkon
Aanwezig
Tuin
Niet aanwezig
Dakterras
Niet aanwezig

Energie

Isolatie
Dubbele beglazing, Vloerisolatie, Dakisolatie, Muurisolatie
Verwarming
Volledige vloerverwarming
Energielabel
A++

Bergruimte

Schuur/Berging
Aanwezig
Omschrijving
Inpandig

Parkeergelegenheid

Aanwezig
Ja
Soort parkeergelegenheid
Betaald

Garage

Aanwezig
Nee
Meld een probleem met deze woning