Contact met de makelaar

Deze woning is gevonden buiten ons eigen netwerk. Met de knop hieronder kom je direct bij de aanbieder terecht.

Nieuw

Wieringerstraat

Bekijk kaart
3083 CK Rotterdam (Carnisse)
€ 219.000 k.k.
  • 53 m²
  • 3 kamers
  • 1938

Samenvatting

  • Deze woning wordt sinds 23 januari 2026 aangeboden door Woonvisie NVM Makelaars;
  • De galerijflat heeft een woonoppervlakte van 53 m² en beschikt over 3 kamers, waarvan 2 slaapkamers;
  • De woning is gebouwd In 1938 en ligt in de buurt Carnisse in Rotterdam.

Beschrijving

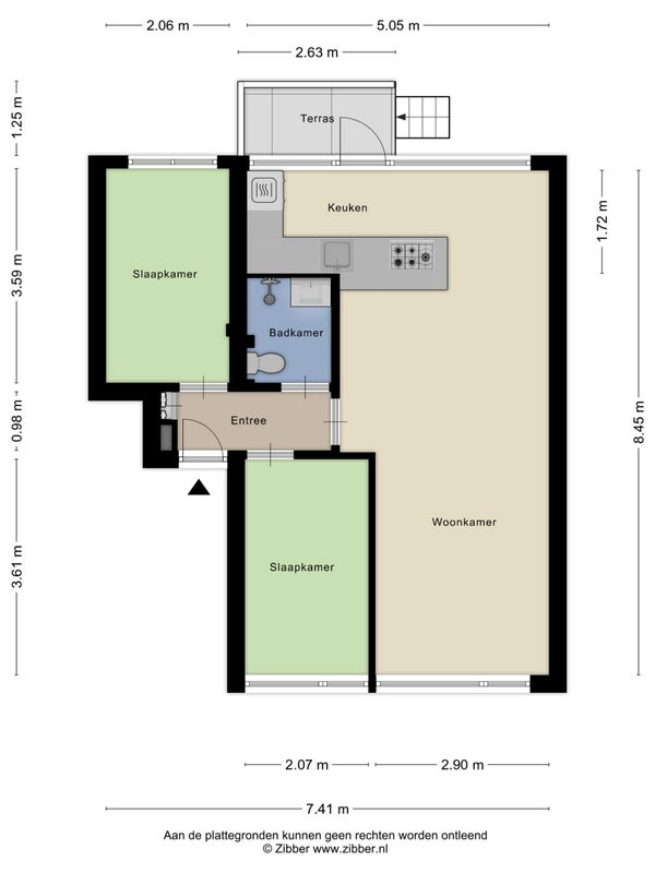
Welkom bij het appartement aan de Wieringerstraat 21A in Rotterdam. Dit goed onderhouden appartement op de eerste verdieping en in het souterrain biedt een perfecte mix van comfort en moderniteit. De ruime doorzonwoonkamer, die veel natuurlijk licht binnenlaat, heeft een gezellige zithoek en een open keuken met een kookeiland. De moderne keuken is uitgerust met een gaskookplaat, afzuigkap, koel-/vrieskast, magnetron, oven en vaatwasser. Er zijn twee slaapkamers, een betegelde badkamer met inloopdouche en wastafelmeubel. Vanuit de keuken heeft u toegang tot het balkon en de achtertuin, die volledig betegeld is en op het westen ligt. De centrale locatie nabij het winkelcentrum Zuidplein en het metrostation maakt het leven hier comfortabel en bereikbaar. De woning heeft een woonoppervlak van ca. 56 m² en is gelegen op eigen grond. Energielabel D.

Overdracht

Vraagprijs
€ 219.000 k.k.
Aangeboden sinds
23-01-2026
Status
Beschikbaar
Beschikbaar
Per direct

Oppervlakte en inhoud

Woonoppervlakte
53 m²

Bouw

Type woning
Appartement
Soort woning
Galerijflat
Soort bouw
Bestaande bouw
Bouwjaar
1938

Indeling

Aantal kamers
3
Aantal slaapkamers
2
Aantal badkamers
1

Buitenruimte

Dakterras
Niet aanwezig

Energie

Energielabel
D
Meld een probleem met deze woning