Contact met de makelaar

Deze woning is gevonden buiten ons eigen netwerk. Met de knop hieronder kom je direct bij de aanbieder terecht.

Dordtselaan

Bekijk kaart
3081 BJ Rotterdam (Tarwewijk)
€ 499.500 k.k.
  • 183 m²
  • 6 kamers
  • 1933

Samenvatting

  • Deze woning wordt sinds 7 weken aangeboden door Woonvisie NVM Makelaars;
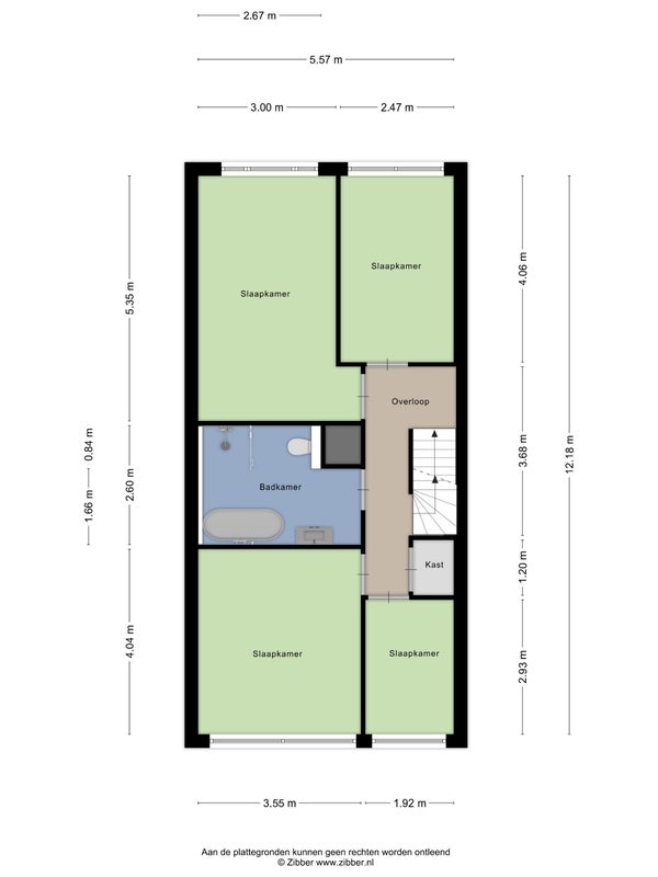
  • De galerijflat heeft een woonoppervlakte van 183 m² en beschikt over 6 kamers, waarvan 5 slaapkamers;
  • De woning is gebouwd In 1933 en ligt in de buurt Tarwewijk in Rotterdam.

Beschrijving

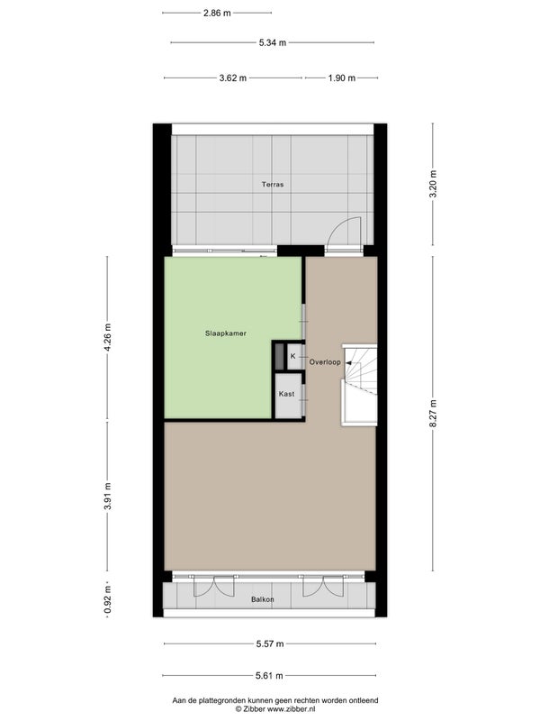
Dit instapklare bovenhuis aan de Dordtselaan heeft vijf slaapkamers, en biedt de mogelijkheid voor twee extra kamers. Met een woonoppervlakte van ongeveer 183 m² en een royaal dakterras op het westen, combineert het ruimte en comfort. De woning is in 2024 volledig gemoderniseerd en is verdeeld over drie woonlagen. Bij binnenkomst vindt u een hal die naar de moderne woonkamer leidt, vol daglicht door de grote ramen. De keuken is uitgerust met inbouwapparatuur en heeft toegang tot een Frans balkon. De tweede verdieping herbergt vier slaapkamers en een luxe badkamer met ligbad en inloopdouche. De zolder biedt nog een slaapkamer, de wasruimte en toegang tot het ruime dakterras. Deze woning ligt in de levendige wijk Tarwewijk in Rotterdam-Zuid, nabij voorzieningen en openbaar vervoer.

Overdracht

Vraagprijs
€ 499.500 k.k.
Aangeboden sinds
02-12-2025
Status
Beschikbaar
Beschikbaar
Per direct

Oppervlakte en inhoud

Woonoppervlakte
183 m²

Bouw

Type woning
Appartement
Soort woning
Galerijflat
Soort bouw
Bestaande bouw
Bouwjaar
1933

Indeling

Aantal kamers
6
Aantal slaapkamers
5
Aantal badkamers
1

Buitenruimte

Dakterras
Niet aanwezig

Energie

Energielabel
B
Meld een probleem met deze woning