Contact met de makelaar

Deze woning is gevonden buiten ons eigen netwerk. Met de knop hieronder kom je direct bij de aanbieder terecht.

Nieuw

Feijenoordkade 11

Bekijk kaart
3071 HK Rotterdam (Feijenoord)
€ 825.000 k.k.
  • 168 m²
  • 4 kamers
  • 2008

Samenvatting

  • Deze woning wordt sinds 27 oktober 2025 aangeboden door Match Makelaars;
  • De benedenwoning heeft een woonoppervlakte van 168 m² en beschikt over 4 kamers, waarvan 3 slaapkamers;
  • De woning is gebouwd In 2008 en ligt in de buurt Feijenoord in Rotterdam;
  • De woning beschikt onder andere over de volgende voorzieningen: Kabel TV, Internetaansluiting, Mechanische ventilatie.

Beschrijving

Overdracht

Vraagprijs
€ 825.000 k.k.
Aangeboden sinds
27-10-2025
Status
Beschikbaar
Beschikbaar
Per direct
Onderhoudsstaat
Goed

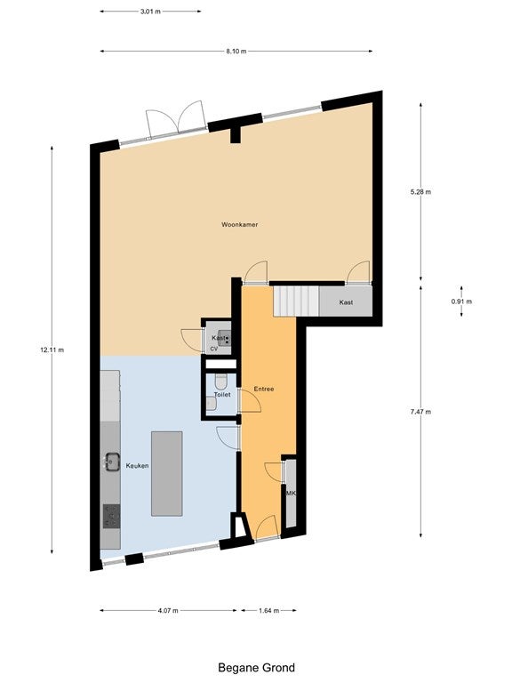
Oppervlakte en inhoud

Woonoppervlakte
168 m²
Inhoud
659 m³

VvE informatie

Inschrijving KvK
Ja
Jaarlijkse vergadering
Ja
Periodieke bijdrage
Ja (€ 183 per maand)
Reservefonds aanwezig
Ja
Onderhoudsplan
Ja
Opstalverzekering
Ja

Bouw

Type woning
Appartement
Soort woning
Benedenwoning, Appartement
Soort bouw
Bestaande bouw
Bouwjaar
2008
Ligging
  • Aan een rustige weg
  • Aan vaarwater
  • Aan het water
  • Vrij uitzicht

Indeling

Aantal kamers
4
Aantal slaapkamers
3
Aantal badkamers
1
Aantal woonlagen
2
Voorzieningen
  • Kabel TV
  • Internetaansluiting
  • Mechanische ventilatie

Buitenruimte

Balkon
Niet aanwezig
Tuin
Aanwezig (76 m², gelegen op het zuiden)
Tuinbeschrijving
achtertuin
Dakterras
Niet aanwezig

Energie

Isolatie
Dubbele beglazing, Ecoconstructie, Vloerisolatie, Volledig geïsoleerd, Gedeeltelijk dubbele beglazing, Dakisolatie, Voorzetramen, Muurisolatie
Verwarming
CV-ketel
Warm water
CV-ketel
Cv-ketel
Remeha HR combi ketel (Gas, uit 2019, Eigendom)
Energielabel
A

Bergruimte

Schuur/Berging
Aanwezig

Parkeergelegenheid

Aanwezig
Ja
Soort parkeergelegenheid
Openbaar

Garage

Aanwezig
Nee
Meld een probleem met deze woning
Contact met de makelaar Bel