Contact met de makelaar

Deze woning is gevonden buiten ons eigen netwerk. Met de knop hieronder kom je direct bij de aanbieder terecht.

Wolphaertsbocht 374

Bekijk kaart
3081 KW Rotterdam (Tarwewijk)
€ 385.000 k.k.
  • 115 m²
  • 4 kamers
  • 2006

Samenvatting

  • Deze woning wordt sinds 6 weken aangeboden door Schildtvoorde;
  • De maisonnette heeft een woonoppervlakte van 115 m² en beschikt over 4 kamers, waarvan 3 slaapkamers;
  • De woning is gebouwd In 2006 en ligt in de buurt Tarwewijk in Rotterdam.

Beschrijving

Goed gelegen 4-kamer woning met balkon, gelegen op de 2e en 3e verdieping van een goed onderhouden complex.
Dit prachtige, dubbellaags appartement beschikt o.a. over een eigen entree op de begane grond, een ruime woon-/eetkamer met openkeuken, 3 slaapkamers van goed formaat en een eigen berging op de begane grond.

Niet alleen de indeling, maar ook de ligging is ideaal te noemen. Met het Zuidplein, Ahoy, Zuiderpark, de moderne Kop van Zuid, het hippe Katendrecht en de luxe Wilhelminapier om de hoek, zijn alle voorzieningen binnen handbereik. Daarnaast vindt u aan de Brielselaan de Creative Factory, met diverse creatieve bedrijven.

De bereikbaarheid is optimaal: u bent slechts een tunnel of een brug verwijderd van het centrum en via de snelwegen A15 en A29 bent u snel de stad uit

Interesse?
Wij nodigen u graag uit voor een bezichtiging van de woning!

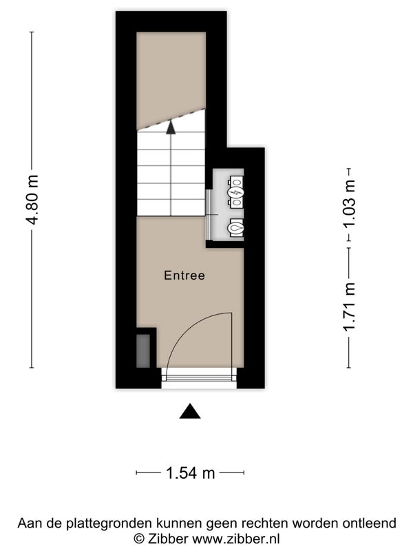
De indeling van de woning is als volgt:

Begane grond:

  • Entree op de begane grond, hal met daarin de meterkast en trapopgang naar de 1e verdieping.

1e verdieping:

  • Zeer lichte en ruime overloop v.v. frans balkon, laminaatvloer en trapopgang naar de woonverdieping.

2e verdieping:

  • Ruime woon-/eetkamer met direct toegang tot het woning brede balkon op het noordwesten.
  • De openkeuken is gelegen aan de voorzijde van het complex en beschikt naast een gezellige bar over de navolgende inbouwapparatuur: vaatwasmachine, 4-pits gaskookplaat, afzuigkap, oven en magnetron.
  • Verder bevindt zich op deze woonlaag nog een betegelde toiletruimte met fonteintje.

Deze verdieping is voorzien van een laminaatvloer (keuken plavuizenvloer) en deels voorzien van een verlaagd plafond met inbouwspots.

3e verdieping:

  • Middels de overloop heeft u toegang tot 3 slaapkamers van goed formaat en voorzien van een laminaatvloer.
  • De volledig betegelde badkamer met natuurlijke lichtinval, beschikt over een ruime douchecabine, tweede toilet, wastafelmeubel met spiegel, mechanische ventilatie en wasmachineaansluiting.
  • Vaste kast met opstelling cv-ketel.

Bijzonderheden:

  • Bouwjaar 2006;
  • Gebruiksoppervlakte wonen ca. 115m²
  • Inhoud ca. 379m³;
  • Gelegen op eigen grond;
  • Volledig geïsoleerd;
  • Volledig v.v. hardhouten kozijnen met dubbele beglazing;
  • Verwarming en warm water middels CV-combiketel (AGPO | 2006 | eigendom);
  • Energielabel A;
  • Actieve VvE, periodieke bijdrage € 167,63 per maand;
  • Balkon ligging noordwest;
  • Vrijstaande berging aanwezig op het gezamenlijke binnenterrein;
  • De woning valt onder de opkoopbescherming van de gemeente Rotterdam;
  • Afgesloten gemeenschappelijke binnentuin met speelgelegenheid voor de kinderen.

Oplevering: in overleg

Alle verstrekte informatie moet beschouwd worden als een uitnodiging tot het doen van een bod of om in onderhandeling te treden.

In diverse wijken is er sprake van een opkoopbescherming. De opkoopbescherming houdt in een verbod om, na het aankopen van een woning vanaf 1 januari 2022, deze te verhuren zonder vergunning, tenzij aan bepaalde voorwaarden is voldaan. Meer informatie hierover is terug te vinden op de website van de Gemeente Rotterdam (******).

Deze informatie is door ons met de nodige zorgvuldigheid samengesteld. Onzerzijds wordt echter geen enkele aansprakelijkheid aanvaard voor enige onvolledigheid, onjuistheid of anderszins, dan wel de gevolgen daarvan. Alle opgegeven maten en oppervlakten zijn indicatief. Van toepassing zijn de NVM voorwaarden.

Koopovereenkomst pas rechtsgeldig na ondertekening:
Een mondelinge overeenstemming tussen de particuliere verkoper en de particuliere koper is niet rechtsgeldig. Met andere woorden: er is geen koop. Er is pas sprake van een rechtsgeldige koop als de particuliere verkoper en de particuliere koper de koopovereenkomst hebben ondertekend. Dit vloeit voort uit artikel 7:2 Burgerlijk Wetboek. Een bevestiging van de mondelinge overeenstemming per e-mail of een toegestuurd concept van de koopovereenkomst wordt overigens niet gezien als een 'ondertekende koopovereenkomst'.

Toelichtingsclausule NEN2580:
De Meetinstructie is gebaseerd op de NEN2580. De Meetinstructie is bedoeld om een meer eenduidige manier van meten toe te passen voor het geven van een indicatie van de gebruiksoppervlakte. De Meetinstructie sluit verschillen in meetuitkomsten niet volledig uit, door bijvoorbeeld interpretatieverschillen, afrondingen of beperkingen bij het uitvoeren van de meting.

Overdracht

Vraagprijs
€ 385.000 k.k.
Aangeboden sinds
05-12-2025
Status
Beschikbaar
Beschikbaar
In overleg
Onderhoudsstaat
Goed

Oppervlakte en inhoud

Woonoppervlakte
115 m²
Inhoud
379 m³

VvE informatie

Inschrijving KvK
Ja
Jaarlijkse vergadering
Ja
Periodieke bijdrage
Ja (€ 168 per maand)
Reservefonds aanwezig
Ja
Onderhoudsplan
Ja
Opstalverzekering
Ja

Bouw

Type woning
Appartement
Soort woning
Maisonnette, Appartement
Soort bouw
Bestaande bouw
Bouwjaar
2006
Ligging
In een woonwijk

Indeling

Aantal kamers
4
Aantal slaapkamers
3
Aantal badkamers
1
Aantal woonlagen
2
Voorzieningen
  • Douche
  • Toilet

Buitenruimte

Balkon
Aanwezig
Tuin
Niet aanwezig
Dakterras
Niet aanwezig

Energie

Isolatie
Dubbele beglazing, Vloerisolatie, Volledig geïsoleerd, Dakisolatie, Muurisolatie
Verwarming
CV-ketel
Warm water
CV-ketel
Cv-ketel
Agpo (Gas, uit 2006, Eigendom)
Energielabel
A

Bergruimte

Schuur/Berging
Aanwezig
Omschrijving
Vrijstaand hout

Parkeergelegenheid

Aanwezig
Ja
Soort parkeergelegenheid
Openbaar

Garage

Aanwezig
Nee
Meld een probleem met deze woning