Contact met de makelaar

Deze woning is gevonden buiten ons eigen netwerk. Met de knop hieronder kom je direct bij de aanbieder terecht.

Onder bod

Beijerlandselaan 12 A

Bekijk kaart
3074 EJ Rotterdam (Hillesluis)
€ 399.000 k.k.
  • 96 m²
  • 3 kamers
  • 2009

Samenvatting

  • Deze woning wordt sinds 7 weken aangeboden door Woonvisie NVM Makelaars;
  • De bovenwoning heeft een woonoppervlakte van 96 m² en beschikt over 3 kamers, waarvan 2 slaapkamers;
  • De woning is gebouwd In 2009 en ligt in de buurt Hillesluis in Rotterdam;
  • De woning beschikt onder andere over de volgende voorzieningen: Bad, Lift, Mechanische ventilatie, Douche, Bergruimte, Toilet, Wasruimte.

Beschrijving

Luxe 3-kamerappartement op de 14e verdieping met eigen parkeerplaats, energielabel A en adembenemend uitzicht!

Welkom in dit stijlvolle en energiezuinige appartement, gelegen op de 14e verdieping van een modern complex. Hier geniet u dagelijks van een fantastisch panoramisch uitzicht over Rotterdam.

Vanuit de hal betreedt u het ruime appartement, dat toegang biedt tot het toilet, de badkamer, twee slaapkamers, de berging en de woonkamer met open keuken. De woonkamer is een heerlijke, lichte ruimte dankzij de grote raampartijen die een prachtig uitzicht bieden over het noorden van Rotterdam. De ruimte is stijlvol afgewerkt met wandpanelen en voorzien van een cinemawal. De moderne open keuken is uitgerust met een inductiekookplaat, vaatwasser, afzuigsysteem, oven en combimagnetron. Het volledig betegelde toilet beschikt over een wandcloset en fontein. Er zijn twee slaapkamers, waarvan één met een ruime vaste kast. De badkamer is voorzien van een douchecabine, wastafel en ligbad. In de berging bevinden zich de was- en droogopstelling en de koel-vriescombinatie. De gehele verdieping is afgewerkt met een nette PVC, wat zorgt voor een strakke en verzorgde uitstraling.

Voor wie op zoek is naar een centrale woonplek, is deze locatie werkelijk fantastisch! Op een steenworp afstand vindt u het winkelcentrum Zuidplein, het metro- en busstation, de evenementenhal Ahoy, scholen en het Ikazia ziekenhuis. Bovendien bevindt zich in de directe omgeving het recreatiegebied 'het Zuiderpark', waar u kunt genieten van heerlijke wandelingen. Dankzij de uitstekende bereikbaarheid via het openbaar vervoer en de auto, bent u in no time in het bruisende centrum van Rotterdam. De belangrijke verbindingswegen liggen bovendien op korte afstand. Kortom, dit is de ideale locatie! Welkom op Zuid!

Bij het appartement wordt een parkeerplaats op het buitenterrein mee verkocht. (bij vraagprijs inbegrepen)

Interesse?
Wij nodigen u graag uit voor een bezichtiging van deze woning!

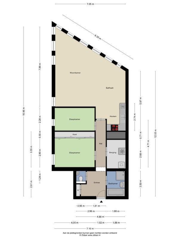
De indeling van de woning is als volgt:

Begane grond:

  • Ontvangstruimte met brievenbussen, bellentableau, videofooninstallatie en liftinstallatie.
  • Op de begane grond, buiten, is de privéparkeerplaats.
  • Gemeenschappelijke fietsenberging

14e verdieping:

  • Middels de hal krijgt u toegang tot de verschillende vertrekken van de woning;
  • De hal is voorzien van een toiletruimte welke beschikt over een wandcloset en een fonteintje;
  • De ruime woonkamer is gelegen aan de voorzijde van de woning en staat in open verbinding met de eetkamer en de keuken;
  • De inpandige berging is voorzien van een koelvrieskast, een wasmachine/- drogeraansluiting en de opstelling van de cv-ketel (ca. 1.80m x 2.88 m);
  • De keuken is voorzien van een aanrecht in wandopstelling en beschikt over diverse inbouwapparatuur waaronder een: inductiekookplaat met afzuiging, een magnetron, een oven en een vaatwasser;
  • De badkamer is voorzien van een ligbad, een douchecabine, en wastafel;
  • Slaapkamer 1 (ca. 4.00m x 2.90);
  • Slaapkamer 2 (ca. 4.00m x 2.28m);

overige - de parkeerplaats.

Bijzonderheden:

  • Bouwjaar: 2009;
  • Woonoppervlakte: ca. 96m²;
  • Inhoud: ca. 318m³;
  • Energielabel A;
  • Gelegen op eigen grond;
  • Voorzien van een PVC vloer;
  • Het appartementen complex is voorzien van een lift;
  • Verwarming en warm water middels CV-combiketel (Rehema | eigendom);
  • De woning is voorzien van kunststof kozijnen en dubbele beglazing;
  • De woning valt onder de opkoopbescherming van de Gemeente Rotterdam;
  • VvE bijdrage van € 29,91 voor de parkeerplaats en € 180,91 voor de woning;
  • De oplevering vindt plaats in overleg.

Alle verstrekte informatie moet beschouwd worden als een uitnodiging tot het doen van een bod of om in onderhandeling te treden.

Deze informatie is door ons met de nodige zorgvuldigheid samengesteld. Onzerzijds wordt echter geen enkele aansprakelijkheid aanvaard voor enige onvolledigheid, onjuistheid of anderszins, dan wel de gevolgen daarvan. Alle opgegeven maten en oppervlakten zijn indicatief. Van toepassing zijn de NVM voorwaarden.

Koopovereenkomst pas rechtsgeldig na ondertekening:
Een mondelinge overeenstemming tussen de particuliere verkoper en de particuliere koper is niet rechtsgeldig. Met andere woorden: er is geen koop. Er is pas sprake van een rechtsgeldige koop als de particuliere verkoper en de particuliere koper de koopovereenkomst hebben ondertekend. Dit vloeit voort uit artikel 7:2 Burgerlijk Wetboek. Een bevestiging van de mondelinge overeenstemming per e-mail of een toegestuurd concept van de koopovereenkomst wordt overigens niet gezien als een 'ondertekende koopovereenkomst'.

Toelichtingsclausule NEN2580:
De Meetinstructie is gebaseerd op de NEN2580. De Meetinstructie is bedoeld om een meer eenduidige manier van meten toe te passen voor het geven van een indicatie van de gebruiksoppervlakte. De Meetinstructie sluit verschillen in meetuitkomsten niet volledig uit, door bijvoorbeeld interpretatieverschillen, afrondingen of beperkingen bij het uitvoeren van de meting.

Overdracht

Vraagprijs
€ 399.000 k.k.
Aangeboden sinds
28-11-2025
Status
Onder bod
Beschikbaar
In overleg
Onderhoudsstaat
Goed

Oppervlakte en inhoud

Woonoppervlakte
96 m²
Inhoud
318 m³

VvE informatie

Inschrijving KvK
Ja
Jaarlijkse vergadering
Ja
Periodieke bijdrage
Ja (€ 211 per maand)
Reservefonds aanwezig
Ja
Onderhoudsplan
Ja
Opstalverzekering
Ja

Bouw

Type woning
Appartement
Soort woning
Bovenwoning, Appartement
Soort bouw
Bestaande bouw
Bouwjaar
2009
Ligging
  • In een woonwijk
  • Vrij uitzicht

Indeling

Aantal kamers
3
Aantal slaapkamers
2
Aantal badkamers
1
Aantal woonlagen
1
Verdieping
14
Voorzieningen
  • Bad
  • Lift
  • Mechanische ventilatie
  • Douche
  • Bergruimte
  • Toilet
  • Wasruimte

Buitenruimte

Balkon
Niet aanwezig
Tuin
Niet aanwezig
Dakterras
Niet aanwezig

Energie

Isolatie
Dubbele beglazing, Vloerisolatie, Volledig geïsoleerd, Dakisolatie, Muurisolatie
Verwarming
CV-ketel
Warm water
CV-ketel
Cv-ketel
Remeha (Gas, Eigendom)
Energielabel
A

Parkeergelegenheid

Aanwezig
Ja
Soort parkeergelegenheid
Betaald

Garage

Aanwezig
Ja
Omschrijving
Parkeerplaats
Meld een probleem met deze woning