Contact met de makelaar

Deze woning is gevonden buiten ons eigen netwerk. Met de knop hieronder kom je direct bij de aanbieder terecht.

Verkocht onder voorbehoud

Landmanstraat 9 B

Bekijk kaart
3082 WK Rotterdam (Oud Charlois)
€ 325.000 k.k.
  • 115 m²
  • 6 kamers
  • 1939

Samenvatting

  • Deze woning wordt sinds 6 weken aangeboden door Schildtvoorde;
  • De bovenwoning heeft een woonoppervlakte van 115 m² en beschikt over 6 kamers, waarvan 3 slaapkamers;
  • De woning is gebouwd In 1939 en ligt in de buurt Oud Charlois in Rotterdam;
  • De woning beschikt onder andere over de volgende voorzieningen: Kabel TV, Dakkapel, Mechanische ventilatie, Douche, Dakraam, Bergruimte, Toilet.

Beschrijving

Nette 5-kamer woning van maar liefst 115m2 gelegen in de geliefde buurt oud-Charlois.

Deze drie laagse bovenwoning is te bereiken middels een eigen trapopgang. Bij binnenkomt ervaar je direct de charmante authentieke uitstraling van de woning wat een gezellige sfeer creëert. Verder is de woning ruim opgezet en beschikt zo ook over een woon/eetkamer die van elkaar gescheiden worden middels de inbouw kasten. Ook beschikken beide ruimtes over een originele schouw. De keuken is te bereiken vanuit de eetkamer is bied toegang tot het riante balkon gelegen op het westen. De eerste slaapkamer is te bereiken vanuit de hal en is ideaal te gebruiken als kantoor. Ook is er een separaat toilet met fonteintje aanwezig.

De tweede verdieping beschikt over twee ruime slaapkamers welke beide beschikken over een bergruimte, ideaal als kleding kast. De slaapkamer aan de voorzijde beschikt ook over een wastafel en bied ook toegang tot het Balkon.
De volledig betegelde badkamer is gelegen aan de voorzijde van de woning en beschikt over een inloop douche en een was/droger aansluiting.

De derde verdieping is voorzien van een ruime overloop met de cv opstelling en een bergkast. De ruime slaapkamer is voorzien van twee dakramen en een bergkast.

De woning is gelegen in de hippe wijk Oud-Charlois en is goed gelegen ten opzichte van openbaar vervoer (bussen en tram), snelweg, scholen (basis en middelbare) en verschillende voorzieningen. Met de bus bent u binnen 3 haltes op Zuidplein waar u kunt winkelen en meteen kunt oversteken naar Ahoy, het theater, het zwembad, bibliotheek en het Ikazia Ziekenhuis. Ook zijn er hier allemaal leuke restaurants. Via metro- en busstation Zuidplein bent u bovendien nog eens goed verbonden met de rest van Rotterdam en omliggende plaatsen. Naar het centrum van Rotterdam kan op verschillende manieren via de snelbus, de maastunnel of met het openbaar vervoer. Wilt u juist de rust opzoeken dan kan dit in het Zuiderpark dat op korte loopafstand ligt.

Interesse?
Wij nodigen u graag uit voor een bezichtiging van deze woning!

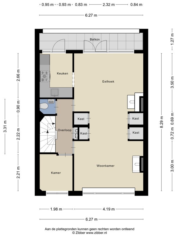
De indeling van de woning is als volgt:

Begane grond:

  • Entree met trap opgang naar de eerste verdieping

Eerste verdieping:

  • Overloop;
  • Toilet;
  • studeerkamer(ca. 2,21m x 1,98m);
  • Woonkamer aan de voorzijde van de woning (ca. 3.00 m x 4,19m);
  • Eetkamer aan de achterzijde van de woning (ca. 2,66 m x 4,19m)
  • Keuken aan de achterzijde van de woning (ca. 2,66m x 1,98m);
  • Balkon aan de achterzijde van de woning gelegen op het westen.

Tweede verdieping:

  • Overloop;
  • Slaapkamer gelegen aan de voorzijde van de woning (ca. 4,15m x 3,58m);
  • Slaapkamer gelegen aan de achter zijde van de woning (ca. 4,15m x 3,64m);
  • Badkamer gelegen aan de voorzijde van de woning (ca. 2,01m x 2,02m);
  • Toilet;
  • provisie kamer met trap naar zolderverdieping (ca. 2,29m x 1,97m);
  • Balkon gelegen aan de achterzijde van de woning gelegen op het westen.

Derde verdieping:

  • Ruime overloop met toegang CV opstelling netjes weggewerkt in een vaste kast;
  • Slaapkamer (ca. 2,78m x 2,91m)

Overig:

  • De berging (ca 1,32m x 2,88 m)

Bijzonderheden:

  • Bouwjaar:1939;
  • Woonoppervlakte: ca. 115m²;
  • Inhoud: ca. 381m³;
  • Energielabel D;
  • Maar liefst 2 balkons aanwezig gelegen op het westen;
  • Gedeeltelijk kunststof kozijnen aan de voorzijde van de woning;
  • Slapende V.v.E.
  • Gezien het bouwjaar van de woning zal er een asbest en ouderdomsclausule worden opgenomen in de koopakte;

De oplevering vindt plaats in overleg.

Alle verstrekte informatie moet beschouwd worden als een uitnodiging tot het doen van een bod of om in onderhandeling te treden.

Deze informatie is door ons met de nodige zorgvuldigheid samengesteld. Onzerzijds wordt echter geen enkele aansprakelijkheid aanvaard voor enige onvolledigheid, onjuistheid of anderszins, dan wel de gevolgen daarvan. Alle opgegeven maten en oppervlakten zijn indicatief. Van toepassing zijn de NVM voorwaarden.

Koopovereenkomst pas rechtsgeldig na ondertekening:
Een mondelinge overeenstemming tussen de particuliere verkoper en de particuliere koper is niet rechtsgeldig. Met andere woorden: er is geen koop. Er is pas sprake van een rechtsgeldige koop als de particuliere verkoper en de particuliere koper de koopovereenkomst hebben ondertekend. Dit vloeit voort uit artikel 7:2 Burgerlijk Wetboek. Een bevestiging van de mondelinge overeenstemming per e-mail of een toegestuurd concept van de koopovereenkomst wordt overigens niet gezien als een 'ondertekende koopovereenkomst'.

Toelichtingsclausule NEN2580:
De Meetinstructie is gebaseerd op de NEN2580. De Meetinstructie is bedoeld om een meer eenduidige manier van meten toe te passen voor het geven van een indicatie van de gebruiksoppervlakte. De Meetinstructie sluit verschillen in meetuitkomsten niet volledig uit, door bijvoorbeeld interpretatieverschillen, afrondingen of beperkingen bij het uitvoeren van de meting.

Overdracht

Vraagprijs
€ 325.000 k.k.
Aangeboden sinds
08-12-2025
Status
Verkocht onder voorbehoud
Beschikbaar
In overleg
Onderhoudsstaat
Goed

Oppervlakte en inhoud

Woonoppervlakte
115 m²
Inhoud
381 m³

Bouw

Type woning
Appartement
Soort woning
Bovenwoning, Dubbel bovenhuis
Soort bouw
Bestaande bouw
Bouwjaar
1939
Ligging
In een woonwijk

Indeling

Aantal kamers
6
Aantal slaapkamers
3
Aantal badkamers
1
Aantal woonlagen
3
Verdieping
2
Voorzieningen
  • Kabel TV
  • Dakkapel
  • Mechanische ventilatie
  • Douche
  • Dakraam
  • Bergruimte
  • Toilet

Buitenruimte

Balkon
Aanwezig
Tuin
Niet aanwezig
Dakterras
Niet aanwezig

Energie

Verwarming
CV-ketel
Warm water
CV-ketel
Cv-ketel
Tzera (Gas, uit 2015, Eigendom)
Energielabel
D

Bergruimte

Schuur/Berging
Aanwezig
Omschrijving
Vrijstaand hout

Parkeergelegenheid

Aanwezig
Ja
Soort parkeergelegenheid
Betaald

Garage

Aanwezig
Nee
Meld een probleem met deze woning