Contact met de makelaar

Deze woning is gevonden buiten ons eigen netwerk. Met de knop hieronder kom je direct bij de aanbieder terecht.

Wittevrouwensingel 47 B

Bekijk kaart
3572 CA Utrecht (Wittevrouwen)
€ 627.000 k.k.
  • 75 m²
  • 2 kamers
  • 1870

Samenvatting

  • Deze woning wordt sinds 3 maanden aangeboden door Mijn Huis Verkoop Ik Zelf;
  • De benedenwoning heeft een woonoppervlakte van 75 m² en beschikt over 2 kamers;
  • De woning is gebouwd In 1870 en ligt in de buurt Wittevrouwen in Utrecht.

Beschrijving

Luxe appartement (ENERGIELABEL A) in monument | Utrechtse Singel | € 627.000 k.k.

Genieten van historische details én moderne luxe op een van de mooiste plekken van Utrecht

Woont u graag in een pand met een ziel, maar wilt u geen concessies doen aan comfort? In dit unieke appartement op de bel-etage (begane grond) en het souterrain en tuin! van een gemeentelijk monument (1870) aan de Wittevrouwensingel gaat historische charme perfect samen met energiezuinige moderne gemakken. Met een weids uitzicht over het water richting de Dom en een luxe afwerking is dit een zeldzame kans.

  • Uniek appartement met 2 verdiepingen en een tuin met karakter in gemeentelijk monument
  • Weids uitzicht op de singel en de Domtoren
  • Moderne, luxe afwerking met energielabel A
  • Moderne keuken met Quooker en inductie
  • Luxe badkamer met regendouche en bad
  • Prachtige authentieke details: hoge plafonds, glas-in-lood
  • Eigen achterom/souterrain en deel gemeenschappelijke schuur
  • Zeer gunstige VvE kosten (± €200 p/m)
  • Perfecte ligging: op loopafstand van de binnenstad, musea en gezellige wijken

Omschrijving:

Een woning met een verhaal en alle moderne gemakken
Stap binnen in een stukje Utrechtse geschiedenis. Dit karakteristieke herenhuis aan de Singel biedt alles wat u van een monument mag verwachten: hoge plafonds, grote ramen, originele glas-in-looddetails en een sierlijke gietijzeren trap. Deze zijn echter vlekkeloos gecombineerd met hoogwaardige, moderne voorzieningen voor een zorgeloos en energiezuinig woongenot.

Een licht en ruimtelijk gevoel
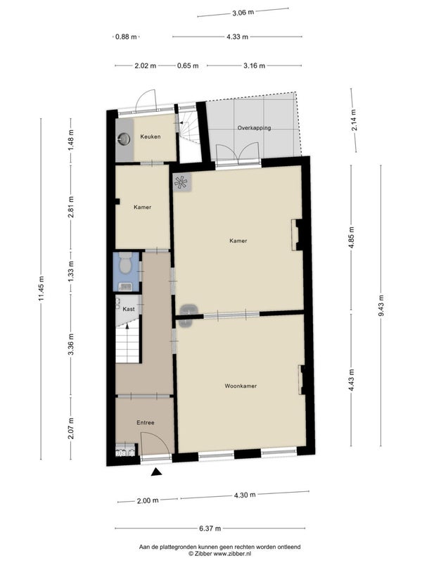
Het appartement (ca. 80 m²) beslaat de begane grond en souterrain. Via een statige algemeen entree betreedt u met de eigen entree op de begane grond de woning. Mooie originele gieten vloer in de hal die u naar de keuken brengt en de achterdeur naar de tuin.

Aan de voorzijde is een ruimte lichte kamer met een mooie statige marmeren schouw dat fantastisch zicht biedt over singel en Dom.
Aan de achterzijde een zelfde grote kamer met eveneens een statige marmeren schouw met openslaande deuren naar een patio/ tuin.
de voor en achterkamer zijn middels kamer en suite (afsluitbaar) verbonden met elkaar maar hebben ook allebei een eigen deur.
in het verlengde van de hal komt in u de stijlvol afgewerkte keuken met alle moderne apparatuur (inductie, oven, koelkast/vriezer, Quooker). via de keuken eveneens deur naar de tuin/ patio.

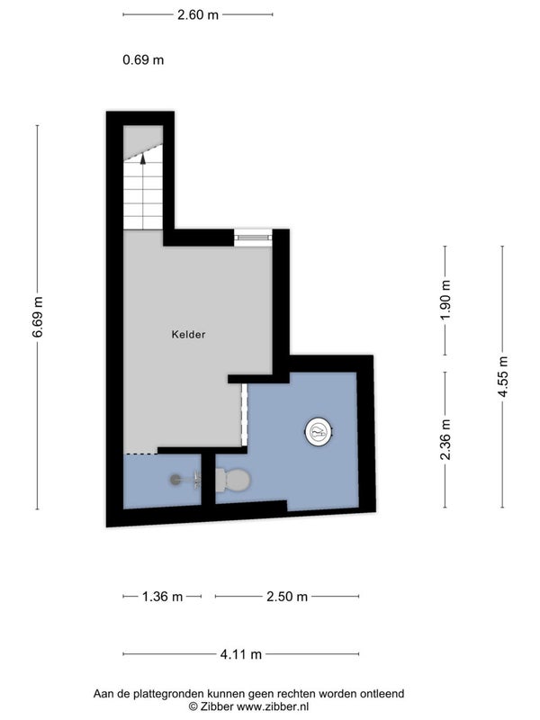
Dan een mooie aanvulling is dat u met de trap naar het souterrain gaat waar u een enorme badkamer aantreft.
Originele houten balken en volledig luxe inrichting:
grote aparte regendouche
groot ligbad met raam
aansluiting voor wasmachine en droger
separate hangtoilet
dubbele wasbak en warmte spiegel
designradiator
tevens opslag ruimte waar zich de stadsverwarming (algemeen) vindt en de elektrische boiler die voor eigen gebruik is.

Buitenruimte en opslag
U heeft beschikking over een eigen achterom.
tevens staat achterop het perceel een schuur beschikbaar (voor 1/4e deel).

Duurzaam comfort
U woont niet alleen historisch, maar ook toekomstbestendig:

  • Energielabel A: Uitzonderlijk voor een monument!
  • Moderne isolatie, waaronder innovatief vacuüm monumentenglas.
  • Stadsverwarming voor een efficiënte verwarming.
  • Elektrische warmtepompboiler voor warm tapwater.

Gunstige VvE
De VvE is nieuw en klein (slechts 4 appartementen). Maandelijkse kosten zijn door de uitstekende staat van het pand zeer laag, circa € 200 per maand. Dit is hoofdzakelijk voor de gezamenlijke opstalverzekering en voorschot voor gebruik van nutsvoorzieningen.

De perfecte locatie
U woont aan de iconische Singel, op steenworp afstand van het bruisende centrum. De wereld ligt aan uw voeten: de Stadsschouwburg, musea, de gezellige horeca van de Nachtegaalstraat en de chique winkels van de Biltstraat zijn allemaal binnen een paar minuten lopen.

Informatie

  • Vraagprijs: € 627.000 k.k.
  • Woonoppervlakte: ca. 80 m²
  • Inhoud: ca. 180 m³
  • Aantal kamers: 4 (woonkamer, slaapkamer, keuken+ badkamer)
  • Energielabel: A
  • Notaris:Voor deze koop wordt notariskantoor "Het Notarieel" gehanteerd.

Hoewel de informatie zorgvuldig is samengesteld, kunnen er geen garanties worden gegeven. Het is raadzaam om zelf de informatie te controleren. De verkoper behoudt zich het recht voor om de gunning van de woning naar eigen inzicht te bepalen. De koopovereenkomst wordt opgemaakt volgens een VBO koopakte, met extra clausules, zoals de Meetinstructie, het Energielabel, nutsbedrijven, niet-zelfbewoningsclausule en 'As is, Where is' clausule.

Bent u geïnteresseerd?
Dit unieke aanbod vraagt om een persoonlijke kennismaking. Neem direct contact op voor meer informatie of om een bezichtiging in te plannen.

Gevonden op ******

Overdracht

Vraagprijs
€ 627.000 k.k.
Aangeboden sinds
12-10-2025
Status
Beschikbaar
Beschikbaar
In overleg

Oppervlakte en inhoud

Woonoppervlakte
75 m²
Inhoud
350 m³

Bouw

Type woning
Appartement
Soort woning
Benedenwoning, Bel-etage
Soort bouw
Bestaande bouw
Bouwjaar
1870

Indeling

Aantal kamers
2

Buitenruimte

Tuin
Niet aanwezig
Dakterras
Niet aanwezig

Garage

Aanwezig
Nee
Meld een probleem met deze woning