Contact met de makelaar

Deze woning is gevonden buiten ons eigen netwerk. Met de knop hieronder kom je direct bij de aanbieder terecht.

Zeemansstraat 79 T

Bekijk kaart
1506 CT Zaandam (Oud West)
€ 375.000 k.k.
  • 58 m²
  • 2 kamers
  • 2026

Samenvatting

  • Deze woning wordt sinds 6 weken aangeboden door Stuurman en Stuurman Makelaars;
  • De galerijflat heeft een woonoppervlakte van 58 m² en beschikt over 2 kamers, waarvan 1 slaapkamer;
  • De woning is gebouwd In 2026 en ligt in de buurt Oud West in Zaandam;
  • De woning beschikt onder andere over de volgende voorzieningen: Mechanische ventilatie, Douche, Bergruimte, Toilet.

Beschrijving

Bouwnummer 16

Zonnig wonen in stijl in een 2-kamer nieuwbouwappartement met balkon op het westen
Ben je op zoek naar een modern, comfortabel appartement met nét dat beetje extra? Dit 2-kamer nieuwbouwappartement biedt alles wat je nodig hebt voor ontspannen en eigentijds wonen – en dat met een heerlijk balkon op het westen, perfect voor lange zomeravonden in de zon.
Wat maakt dit appartement bijzonder?
Zonnig balkon op het westen – geniet van middag- en avondzon
Slimme indeling met een lichte woonkamer, open keuken, aparte slaapkamer en moderne badkamer
Casco oplevering – volledig naar eigen smaak af te werken
Duurzame bouw dankzij houtskeletconstructie
Centrale ligging – alles binnen handbereik, ideaal voor stedelijke levensstijl
Perfect voor bewoners zonder auto – OV, winkels en horeca om de hoek

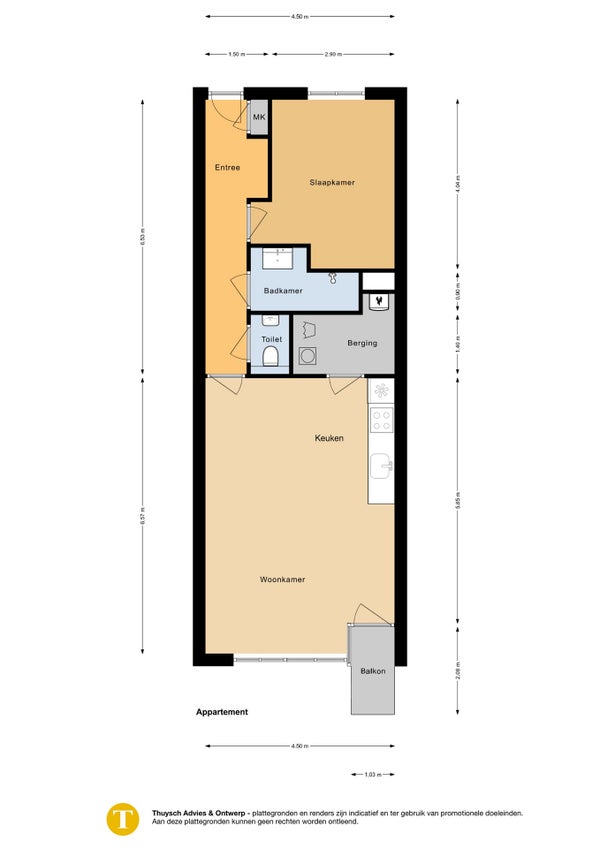
Indeling: entree aan de achterzijde van het gebouw via de galerij ( ter bereiken met de lift ) hal, met toegang tot de slaapkamer, en toegang tot de badkamer met douche en wastafel, separaat toilet, woonkamer met met balkon en veel lichtinval toegang tot de inpandige berging

Of je nu starter bent, je eerste koopwoning zoekt of gewoon comfortabel wilt wonen op een levendige locatie: dit appartement biedt de ideale mix van gemak, rust en vrijheid. Laat de zon maar komen – op jouw balkon zit je altijd goed.
ZAAN 79– Hier begint jouw nieuwe thuis

Overdracht

Vraagprijs
€ 375.000 k.k.
Aangeboden sinds
21-11-2025
Status
Beschikbaar
Beschikbaar
In overleg
Onderhoudsstaat
Zeer goed

Oppervlakte en inhoud

Woonoppervlakte
58 m²
Inhoud
188 m³

Bouw

Type woning
Appartement
Soort woning
Galerijflat, Appartement
Soort bouw
Bestaande bouw
Bouwjaar
2026
Ligging
  • Aan een rustige weg
  • In het centrum
  • In een woonwijk
  • Beschut gelegen

Indeling

Aantal kamers
2
Aantal slaapkamers
1
Aantal badkamers
1
Aantal woonlagen
1
Voorzieningen
  • Mechanische ventilatie
  • Douche
  • Bergruimte
  • Toilet

Buitenruimte

Balkon
Niet aanwezig
Tuin
Niet aanwezig
Dakterras
Niet aanwezig

Energie

Isolatie
Volledig geïsoleerd
Verwarming
CV-ketel
Warm water
CV-ketel
Cv-ketel
HR (Gas, uit 2025, Eigendom)

Bergruimte

Schuur/Berging
Aanwezig
Omschrijving
Box

Parkeergelegenheid

Aanwezig
Ja
Soort parkeergelegenheid
Openbaar

Garage

Aanwezig
Nee
Meld een probleem met deze woning