Contact met de makelaar

Deze woning is gevonden buiten ons eigen netwerk. Met de knop hieronder kom je direct bij de aanbieder terecht.

Verkocht onder voorbehoud

Galgenstraat 10

Bekijk kaart
1013 LT Amsterdam (Haarlemmerbuurt)
€ 975.000 k.k.
  • 134 m²
  • 9 kamers
  • 1932

Samenvatting

  • Deze woning wordt sinds 3 maanden aangeboden door Bloem Makelaars;
  • De tussenwoning heeft een woonoppervlakte van 134 m² en beschikt over 9 kamers, waarvan 7 slaapkamers;
  • De woning is gebouwd In 1932 en ligt in de buurt Haarlemmerbuurt in Amsterdam;
  • De woning beschikt onder andere over de volgende voorzieningen: Dakterras, Douche, Dakraam, Bergruimte, Toilet, Wasruimte.

Beschrijving

– For English, scroll down. –

Werkelijk een unieke kans! Een heel pand gelegen op eigen grond aan de Galgenstraat 10 te Amsterdam, in het hart van Prinseneiland. Middels een centraal trappenhuis is elke etage goed bereikbaar. Dankzij de praktische indeling is het gehele pand om te vormen tot één fraai woonhuis. Er zijn echter ook diverse andere mogelijkheden zoals verhuur als woonruimte, commerciële activiteiten, of een combinatie hiervan.

Volgens BAG is de publiekrechtelijke bestemming woonfunctie. Galgenstraat 10 bestaat totaal uit vier bouwlagen en heeft twee voordeuren. Oorspronkelijk had het adres drie huisnummers: 10-H, 10-1 en 10-2. Het pand splitsen in meerdere woningen bestaat daarom zeker tot de mogelijkheden.

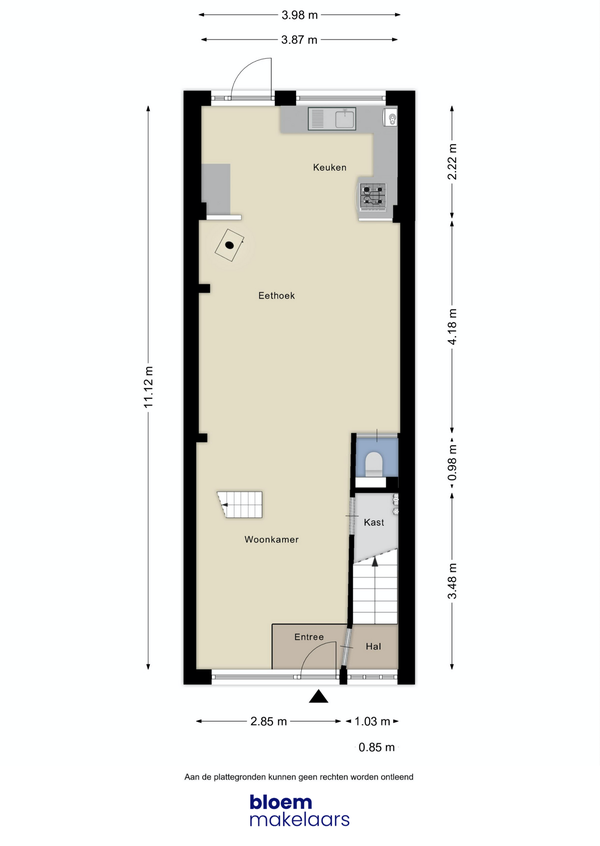
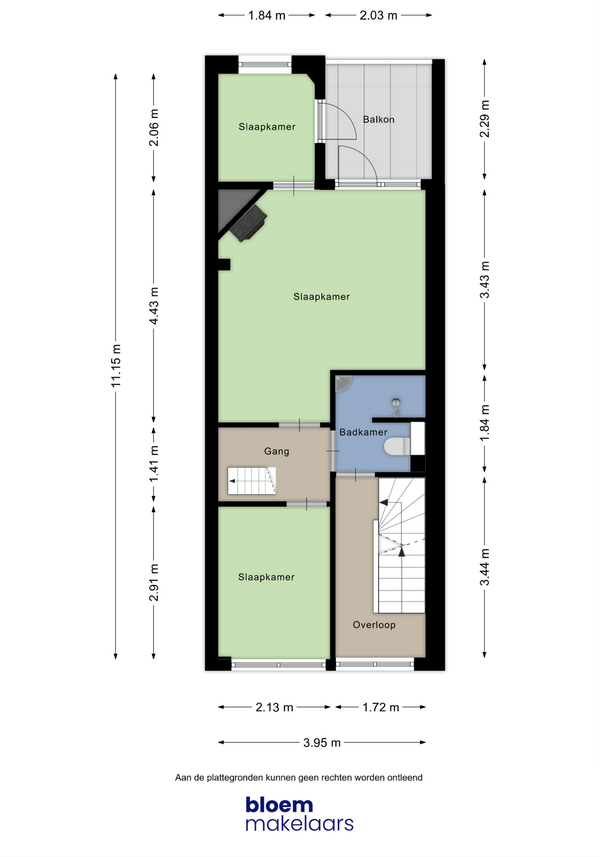
Oppervlakte per verdieping:

  • Begane grond: 44,1 M2.
  • 1e verdieping: 38,7 M2.
  • 2e verdieping: 38,5 M2
  • 3e verdieping: 12,7 M2.

Bovengenoemde oppervlakten zijn overgenomen uit het meetrapport (NEN 2580). Zie voor de indeling ook de plattegronden.

Dakterras, tuin en een stukje historie
De eerste verdieping beschikt over een dakterras en de begane grond komt aan de achterkant uit op een kleine binnentuin. Beide heerlijke plekken voor een rustige kop koffie in de stad. De naam Galgenstraat komt door het uitzicht dat je vanaf het Prinseneiland had; op het Galgenveld. Galgenstraat 10 is jarenlang in gebruik geweest als winkelruimte op de begane grond voor een melkwinkel met daarboven gelegen twee ruime appartementen.

Wonen op Prinseneiland: een oase van rust midden in de stad
Prinseneiland is zonder twijfel een van de meest bijzondere en idyllische plekken van Amsterdam. Ooit een eiland vol scheepswerven, nu een vredige woonomgeving vol karakter en historie. Hier woon je op een unieke locatie in het hart van de stad, maar met het gevoel van een rustige enclave. Een verborgen parel, omringd door het water van de grachtengordel, monumentale pakhuizen, creatieve ateliers en charmante woonhuizen.

Wat direct opvalt is de bijzondere sfeer: kleine parkjes, smalle straatjes, nauwelijks verkeer en overal het kabbelende water. Dankzij deze opzet voelt het eiland bijna dorps aan, met een sterk gemeenschapsgevoel onder bewoners die hier vaak al jarenlang met veel plezier wonen. De aanwezigheid van kunstenaars en ambachtslieden draagt nog altijd bij aan de authentieke en creatieve energie van de buurt.

Wonen in historisch Amsterdam
Prinseneiland ademt historie. Oorspronkelijk in de 17e eeuw aangelegd voor scheepsbouw en handel, is het eiland tegenwoordig een mix van verleden en heden. Monumentale panden worden hier afgewisseld met moderne woningen, en de sfeer is tegelijk klassiek én levendig. Kunstenaars als Jacob Olie en Breitner vonden hier ooit hun inspiratie, en ook nu is het eiland geliefd bij creatieve professionals. Op zondagochtend komt de buurt tot leven met een lokale bakker op de brug, een klein gebaar dat precies het dorpse karakter van Prinseneiland samenvat.

Alles binnen handbereik
Ondanks de serene sfeer is de ligging uitzonderlijk centraal. Binnen 5 minuten wandel je naar de Haarlemmerdijk, een van de leukste winkelstraten van de stad, vol speciaalzaken, hippe boetieks, koffietentjes en bekende restaurants als Toscanini, De Klepel en Domenica. Ook de Houthavens en het Westerpark liggen vlakbij, net als culturele hotspots en bioscoop The Movies. Voor de dagelijkse boodschappen is er een Albert Heijn op het Haarlemmerplein. En met de Jordaan, Noordermarkt en de grachten op loopafstand woon je midden in het culturele en culinaire hart van Amsterdam.

Perfect bereikbaar
Prinseneiland is uitstekend bereikbaar met zowel het openbaar vervoer als de auto. Op loopafstand vind je diverse bus- en tramhaltes (zoals tram 5 en bussen 18, 21 en 22). Amsterdam Centraal Station ligt op nog geen 5 minuten fietsen en biedt toegang tot alle metro-, trein- en pontverbindingen. Met de auto ben je binnen 10 minuten op de ring A10. Parkeren is mogelijk via het vergunningensysteem van stadsdeel Centrum.

Is dit jouw nieuwe plek om jarenlang van te genieten?
Plan dan snel een bezichtiging in via Bloem Makelaars. Wij laten je graag zien waarom dit jouw volgende thuis kan zijn. Je bent van harte welkom!

Bijzonderheden:

  • Woonoppervlakte: ca. 134 m² (NEN gemeten)
  • Bouwjaar 1932
  • Gelegen op eigen grond (dus géén erfpacht)
  • Geschikt voor zowel wonen als werken
  • Flexibele indeling mogelijk
  • Twee voordeuren die ervoor zorgen dat het pand op meerdere manieren kan worden bewoond
  • Het pand biedt verschillende mogelijkheden voor ontwikkeling, belegging of eigen bewoning
    – In de koopovereenkomst worden o.a. een ouderdomsclausule, asbestclausule, niet-zelfbewoningsclausule en een ‘as is, where is’-clausule opgenomen
    – Vragenlijst en lijst van zaken zijn niet beschikbaar
    – Voorbehoud gunning verkoper
  • Notaris: naar keuze koper, mits koopakte conform Model Ring bij notaris in Groot Amsterdam
  • Oplevering in overleg, kan spoedig

De op deze website getoonde vrijblijvende informatie is door ons (met zorg) samengesteld op basis van gegevens van de verkoper (en/of derden). Wij staan niet in voor de juistheid of volledigheid daarvan. Wij adviseren u en/of uw makelaar om contact met ons op te nemen bij interesse in een van onze woningen.

Truly a unique opportunity!
An entire building located on freehold land at Galgenstraat 10 in Amsterdam, in the heart of Prinseneiland. Each floor is easily accessible via a central staircase. Thanks to the practical layout, the entire building can be transformed into one beautiful residence. However, there are also several other possibilities such as rental as residential space, commercial activities, or a combination of both.

According to BAG, the public-law designation is ‘residential function’. Galgenstraat 10 consists of a total of four floors and has two front doors. Originally, the address had three house numbers: 10-H, 10-1 and 10-2. Therefore, splitting the building into multiple residences is certainly one of the possibilities.

Floor area per level:
Ground floor: 44.1 m²
1st floor: 38.7 m²
2nd floor: 38.5 m²
3rd floor: 12.7 m²

The above areas are taken from the measurement report (NEN 2580). See the floor plans for layout details.

Roof terrace, garden and a piece of history
The first floor features a roof terrace, and the ground floor opens at the back onto a small inner garden. Both are delightful spots for a peaceful coffee in the city. The name Galgenstraat originates from the view one used to have from Prinseneiland onto the Galgenveld (Gallows Field). Galgenstraat 10 was used for many years as a shop space on the ground floor for a dairy store, with two spacious apartments located above.

Living on Prinseneiland: an oasis of peace in the heart of the city
Prinseneiland is without a doubt one of the most special and idyllic places in Amsterdam. Once an island full of shipyards, it is now a peaceful residential environment full of character and history. Here, you live in a unique location in the heart of the city, yet with the feeling of a quiet enclave. A hidden gem, surrounded by the water of the canal belt, monumental warehouses, creative studios, and charming houses.

What immediately stands out is the special atmosphere: small parks, narrow streets, hardly any traffic, and the sound of gently rippling water everywhere. Thanks to this layout, the island feels almost like a village, with a strong sense of community among residents who have often lived here for many years with great pleasure. The presence of artists and craftsmen still contributes to the authentic and creative energy of the neighborhood.

Living in historic Amsterdam
Prinseneiland breathes history. Originally constructed in the 17th century for shipbuilding and trade, the island is today a mix of past and present. Monumental buildings are interspersed with modern homes, and the atmosphere is both classic and lively. Artists like Jacob Olie and Breitner once found inspiration here, and the island is still popular with creative professionals. On Sunday mornings, the neighborhood comes alive with a local baker on the bridge — a small gesture that perfectly captures Prinseneiland’s village-like charm.

Everything within reach
Despite the serene atmosphere, the location is exceptionally central. Within 5 minutes you walk to the Haarlemmerdijk, one of the city’s best shopping streets, full of specialty shops, trendy boutiques, cafés and well-known restaurants such as Toscanini, De Klepel and Domenica. The Houthavens and Westerpark are also nearby, as well as cultural hotspots and cinema The Movies. For daily groceries, there is an Albert Heijn on the Haarlemmerplein. And with the Jordaan, Noordermarkt, and the canals within walking distance, you live in the middle of the cultural and culinary heart of Amsterdam.

Perfectly accessible
Prinseneiland is excellently accessible by both public transport and car. Within walking distance, you will find several bus and tram stops (such as tram 5 and buses 18, 21, and 22). Amsterdam Central Station is less than 5 minutes by bike and provides access to all metro, train, and ferry connections. By car, you can reach the A10 ring road within 10 minutes. Parking is available via the permit system of the Centrum district.

Is this your new place to enjoy for years to come?
Then quickly schedule a viewing via Bloem Makelaars. We are happy to show you why this could be your next home. You are most welcome!

Details:
– Living area: approx. 134 m² (NEN measured)
– Year of construction: 1932
– Located on freehold land (no ground lease)
– Suitable for both residential and commercial use
– Flexible layout possible
– Two front doors offering various living arrangements
– The building offers different possibilities for development, investment, or personal residence
– The purchase agreement will include, among others: an age clause, asbestos clause, non-owner-occupied clause, and an ‘as is, where is’ clause
– Property questionnaire and list of items are not available
– Subject to seller's approval
– Notary: at the buyer’s choice, provided the purchase deed follows the Model Ring and is handled by a notary in Greater Amsterdam
– Delivery in consultation, can be soon

The non-binding information shown on this website has been (carefully) compiled by us based on data from the seller and/or third parties. We do not guarantee the accuracy or completeness thereof. We advise you and/or your agent to contact us if you are interested in one of our properties.

Overdracht

Vraagprijs
€ 975.000 k.k.
Aangeboden sinds
26-10-2025
Status
Verkocht onder voorbehoud
Beschikbaar
In overleg
Onderhoudsstaat
Redelijk

Oppervlakte en inhoud

Woonoppervlakte
134 m²
Perceeloppervlakte
49 m²
Inhoud
475 m³

Bouw

Type woning
Huis
Soort woning
Tussenwoning (rijtjeshuis), Grachtenpand
Soort bouw
Bestaande bouw
Bouwjaar
1932
Ligging
  • Aan een rustige weg
  • In het centrum

Indeling

Aantal kamers
9
Aantal slaapkamers
7
Aantal badkamers
1
Aantal woonlagen
4
Voorzieningen
  • Dakterras
  • Douche
  • Dakraam
  • Bergruimte
  • Toilet
  • Wasruimte

Buitenruimte

Balkon
Niet aanwezig
Tuin
Aanwezig (4 m²)
Tuinbeschrijving
achtertuin
Dakterras
Aanwezig

Energie

Isolatie
Gedeeltelijk dubbele beglazing, Dakisolatie
Verwarming
CV-ketel, Gashaard
Warm water
CV-ketel, Geiser
Energielabel
G

Bergruimte

Schuur/Berging
Aanwezig
Omschrijving
Inpandig

Parkeergelegenheid

Aanwezig
Ja
Soort parkeergelegenheid
Openbaar

Garage

Aanwezig
Nee
Meld een probleem met deze woning