- 133 m²
- 4 kamers
- 1931
Samenvatting
- Deze woning wordt sinds 2 maanden aangeboden door IQ Makelaars Apeldoorn;
- De vrijstaande woning heeft een woonoppervlakte van 133 m² en beschikt over 4 kamers, waarvan 3 slaapkamers;
- De woning is gebouwd In 1931 en ligt in de buurt Orden in Apeldoorn;
- De woning beschikt onder andere over de volgende voorzieningen: Bad, Rookkanaal, Toilet.
Beschrijving
Zanderijweg 96, 7312 LL Apeldoorn-West
Rustig gelegen vrijstaand woonhuis met een grote extra kamer op de begane grond, zeer geschikt als slaapkamer, en een multifunctioneel bijgebouw dat ideaal is voor werken aan huis, mantelzorg of een inwonend kind. Kortom: een woning met veel flexibiliteit en potentie.
Wonen met ruimte en flexibiliteit
Deze charmante vrijstaande woning is gelegen in een rustige straat in het geliefde Apeldoorn West en biedt verrassend veel ruimte, zowel binnen als buiten. Dankzij de praktische indeling is slapen op de begane grond mogelijk en is de woning geschikt voor diverse woon- en werkvormen.
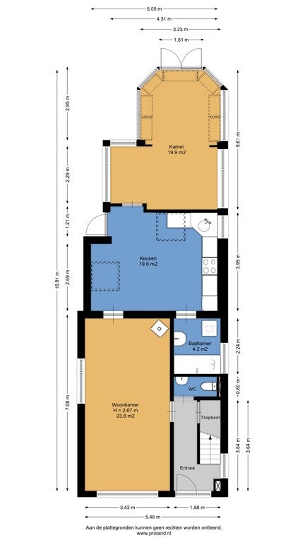
Via de entree kom je in de hal met toilet. De lichte woonkamer beschikt over een houtkachel en grote raampartijen, die zorgen voor een prettige lichtinval. Aansluitend bevindt zich de royale woonkeuken, een fijne plek voor kookliefhebbers en gezellige etentjes.
Op de begane grond is daarnaast een extra ruimte aanwezig, uitstekend te gebruiken als kantoor aan huis, slaapkamer, extra woonkamer of hobbyruimte. De badkamer op de begane grond is voorzien van een ligbad/douche en een wastafel, wat gelijkvloers wonen comfortabel maakt.
Verdieping & zolder
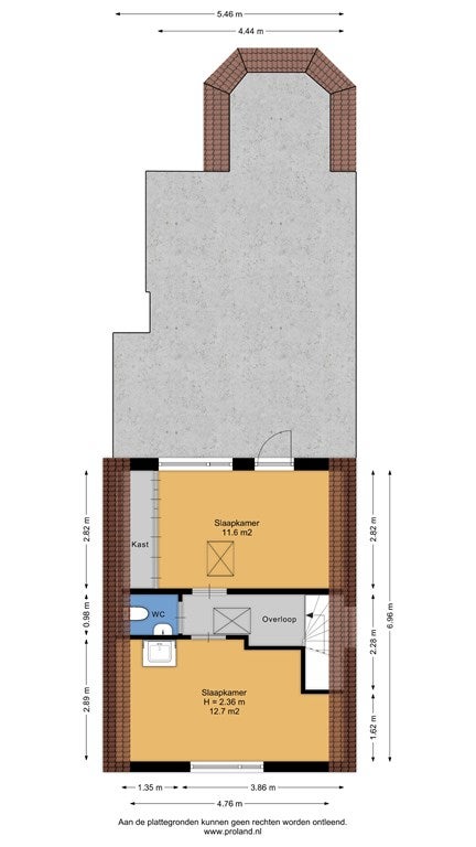
Op de eerste verdieping bevinden zich een tweede toilet en twee riante slaapkamers.
Via een vlizotrap is de ruime zolderkamer bereikbaar. Hier bestaat de mogelijkheid om een vaste trap te realiseren, waarmee eenvoudig een extra slaap- of werkkamer kan worden gecreëerd.
Multifunctioneel bijgebouw – wonen, werken of mantelzorg
Achter op het perceel staat een groot, verwarmd en geïsoleerd bijgebouw dat werkelijk multifunctioneel is. Het bijgebouw beschikt over een ruime woon-/werkkamer en een vaste trap naar een entresolverdieping, welke uitstekend te gebruiken is als slaapvertrek. Hierdoor is het bijgebouw zeer geschikt voor mantelzorg, een inwonend kind, een praktijk of kantoor aan huis, of als gastenverblijf.
Buitenruimte
De woning staat op een ruime kavel met een fijne tuin. Daarnaast is er een extra houten schuur met veranda, ideaal voor opslag, hobby’s of om heerlijk buiten te zitten.
Kenmerken:
Woonhuis 111m2 & Bijgebouw 22m2 plus verdieping
Vrijstaand woonhuis (bouwjaar 1931)
Gelegen in Apeldoorn West, rustige straat
Perceeloppervlakte ca. 423 m²
Parkeren op eigen terrein
Slapen en badkamer op de begane grond
Lichte woonkamer met houtkachel
Royale woonkeuken
Extra kamer op de begane grond (slaapkamer/kantoor/hobby)
Twee riante slaapkamers op de verdieping
Mogelijkheid vaste trap naar zolder (extra slaapkamer)
Groot multifunctioneel bijgebouw, verwarmd en geïsoleerd met verdieping
Vraagprijs € 625.000,- k.k.
Aanvaarding in overleg
Overdracht
- Vraagprijs
- € 625.000 k.k.
- Aangeboden sinds
- 16-12-2025
- Status
- Beschikbaar
- Beschikbaar
- In overleg
- Bijzonderheden
- Seniorenwoning
- Onderhoudsstaat
- Goed
Oppervlakte en inhoud
- Woonoppervlakte
- 133 m²
- Perceeloppervlakte
- 423 m²
- Inhoud
- 400 m³
Bouw
- Type woning
- Huis
- Soort woning
- Vrijstaande woning, Eengezinswoning
- Soort bouw
- Bestaande bouw
- Bouwjaar
- 1931
- Ligging
-
- Aan een rustige weg
- In bosrijke omgeving
- Nabij een school
Indeling
- Aantal kamers
- 4
- Aantal slaapkamers
- 3
- Aantal badkamers
- 1
- Aantal woonlagen
- 3
- Voorzieningen
-
- Bad
- Rookkanaal
- Toilet
Buitenruimte
- Balkon
- Niet aanwezig
- Tuin
- Aanwezig (220 m², gelegen op het zuiden)
- Tuinbeschrijving
- achtertuin
- Achterom
- Niet aanwezig
- Dakterras
- Niet aanwezig
Energie
- Verwarming
- CV-ketel, Houtkachel
- Warm water
- CV-ketel
- Cv-ketel
- TZERRA M28Cplus CCS (Gas, uit 2017, Eigendom)
- Energielabel
- E
Bergruimte
- Schuur/Berging
- Aanwezig
Parkeergelegenheid
- Aanwezig
- Ja
- Soort parkeergelegenheid
- Openbaar
Garage
- Aanwezig
- Nee