Contact met de makelaar

Deze woning is gevonden buiten ons eigen netwerk. Met de knop hieronder kom je direct bij de aanbieder terecht.

Verkocht onder voorbehoud

Venuslaan 20

Bekijk kaart
7314 KZ Apeldoorn (Sprengenbos)
€ 450.000 k.k.
  • 105 m²
  • 5 kamers
  • 1935

Samenvatting

  • Deze woning wordt sinds 6 weken aangeboden door IQ Makelaars Apeldoorn;
  • De 2-onder-1-kapwoning heeft een woonoppervlakte van 105 m² en beschikt over 5 kamers, waarvan 4 slaapkamers;
  • De woning is gebouwd In 1935 en ligt in de buurt Sprengenbos in Apeldoorn;
  • De woning beschikt onder andere over de volgende voorzieningen: Open haard, Rookkanaal, Toilet.

Beschrijving

Overdracht

Vraagprijs
€ 450.000 k.k.
Aangeboden sinds
10-10-2025
Status
Verkocht onder voorbehoud
Beschikbaar
In overleg
Onderhoudsstaat
Matig

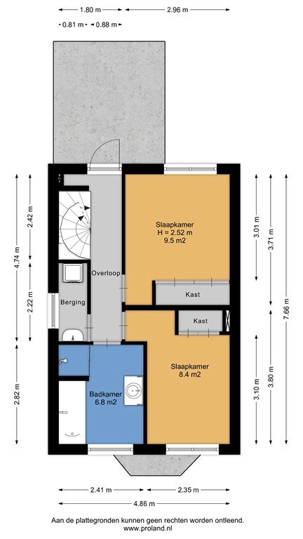
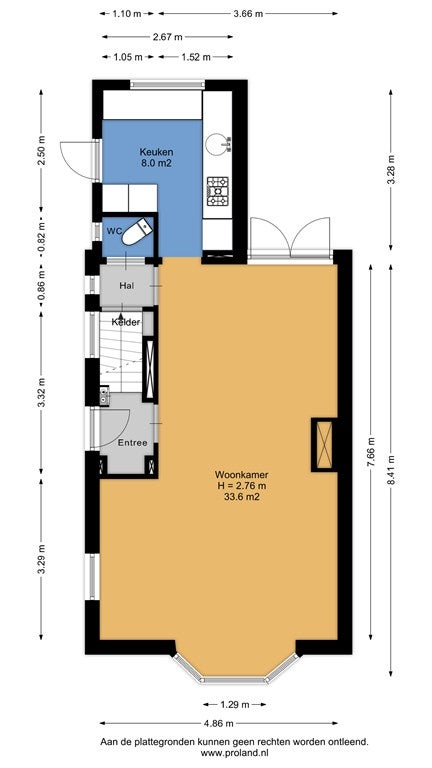
Oppervlakte en inhoud

Woonoppervlakte
105 m²
Perceeloppervlakte
200 m²
Inhoud
409 m³

Bouw

Type woning
Huis
Soort woning
2-onder-1-kapwoning, Eengezinswoning
Soort bouw
Bestaande bouw
Bouwjaar
1935
Ligging
  • Aan een rustige weg
  • In een woonwijk
  • Nabij een school

Indeling

Aantal kamers
5
Aantal slaapkamers
4
Aantal badkamers
1
Aantal woonlagen
4
Voorzieningen
  • Open haard
  • Rookkanaal
  • Toilet

Buitenruimte

Balkon
Niet aanwezig
Tuin
Aanwezig (60 m², gelegen op het noordoosten)
Tuinbeschrijving
achtertuin
Dakterras
Niet aanwezig

Energie

Verwarming
Open haard
Warm water
CV-ketel
Energielabel
E

Bergruimte

Schuur/Berging
Aanwezig

Parkeergelegenheid

Aanwezig
Ja
Soort parkeergelegenheid
Openbaar
Meld een probleem met deze woning
Contact met de makelaar Bel