Contact met de aanbieder

Deze woning is gevonden buiten ons eigen netwerk. Via de knop hieronder ga je direct naar de website van de aanbieder.

Nieuw

Beckaff 1

Bekijk kaart
4612 RL Bergen op Zoom (Schelde Vesting)
€ 479.500 k.k.
  • 113 m²
  • 5 kamers
  • 2021

Samenvatting

  • Deze woning wordt sinds 2 maart 2026 aangeboden door Baas Makelaars;
  • De tussenwoning heeft een woonoppervlakte van 113 m² en beschikt over 5 kamers, waarvan 4 slaapkamers;
  • De woning is gebouwd In 2021 en ligt in de buurt Schelde Vesting in Bergen op Zoom.

Beschrijving

Deze beschikbare woning, gelegen in het centrum van de woonwijk van Bergen op Zoom, is gebouwd in 2021 en voldoet aan de nieuwste eisen met energielabel A+++. Met een totale oppervlakte van 828 m² en een woonoppervlakte van 113 m² biedt het huis vijf kamers, waaronder vier slaapkamers en een badkamer met diverse voorzieningen zoals vloerverwarming. De woning is uitstekend geïsoleerd en wordt verwarmd door middel van vloerverwarming en een warmtepomp. De tuin ligt op het westen en heeft een normale kwaliteit. Parkeren kan met vergunningen op eigen terrein of betaald in de omgeving. Het onderhoud van zowel binnen als buiten is goed tot uitstekend. Deze woning is klaar voor permanente bewoning.

Overdracht

Vraagprijs
€ 479.500 k.k.
Prijs per m²
€ 4.243
Aangeboden sinds
02-03-2026
Status
Beschikbaar
Beschikbaar
Per direct

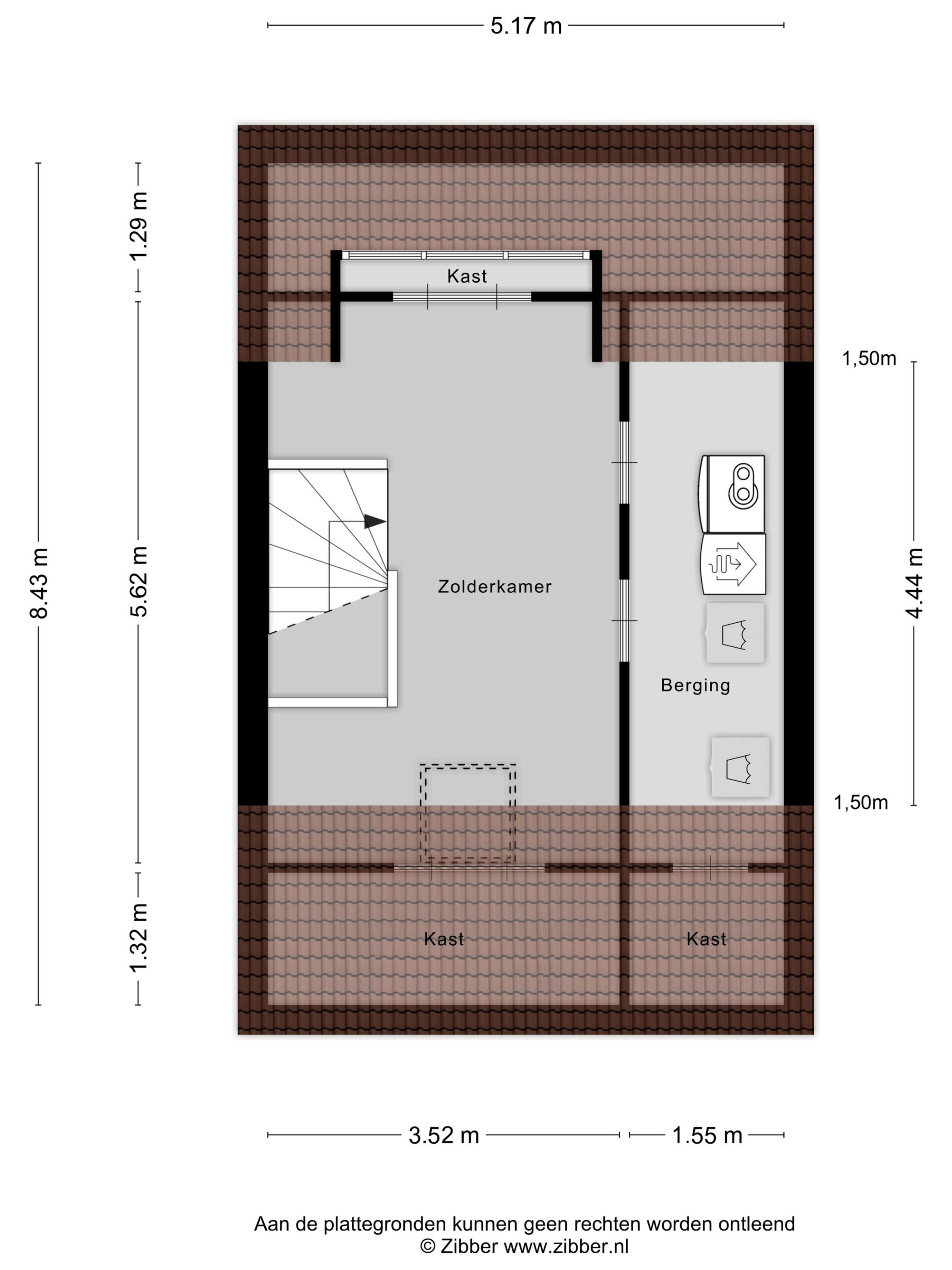
Oppervlakte en inhoud

Woonoppervlakte
113 m²
Perceeloppervlakte
828 m²

Bouw

Type woning
Huis
Soort woning
Tussenwoning (rijtjeshuis), Eengezinswoning
Soort bouw
Bestaande bouw
Bouwjaar
2021

Indeling

Aantal kamers
5
Aantal slaapkamers
4
Aantal badkamers
1

Buitenruimte

Dakterras
Niet aanwezig

Energie

Energielabel
A+++
Meld een probleem met deze woning