Contact met de aanbieder

Deze woning is gevonden buiten ons eigen netwerk. Via de knop hieronder ga je direct naar de website van de aanbieder.

Nieuw

Hamseweg 44

Bekijk kaart
3828 AE Hoogland (De Bik)
€ 1.195.000 k.k.
  • 107 m²
  • 3 kamers
  • 2001

Samenvatting

  • Deze woning wordt sinds 23 februari 2026 aangeboden door Kiers Vastgoed - Makelaar in Amersfoort & Hoogland;
  • De tussenwoning heeft een woonoppervlakte van 107 m² en beschikt over 3 kamers, waarvan 2 slaapkamers;
  • De woning is gebouwd In 2001 en ligt in de buurt De Bik in Hoogland.

Beschrijving

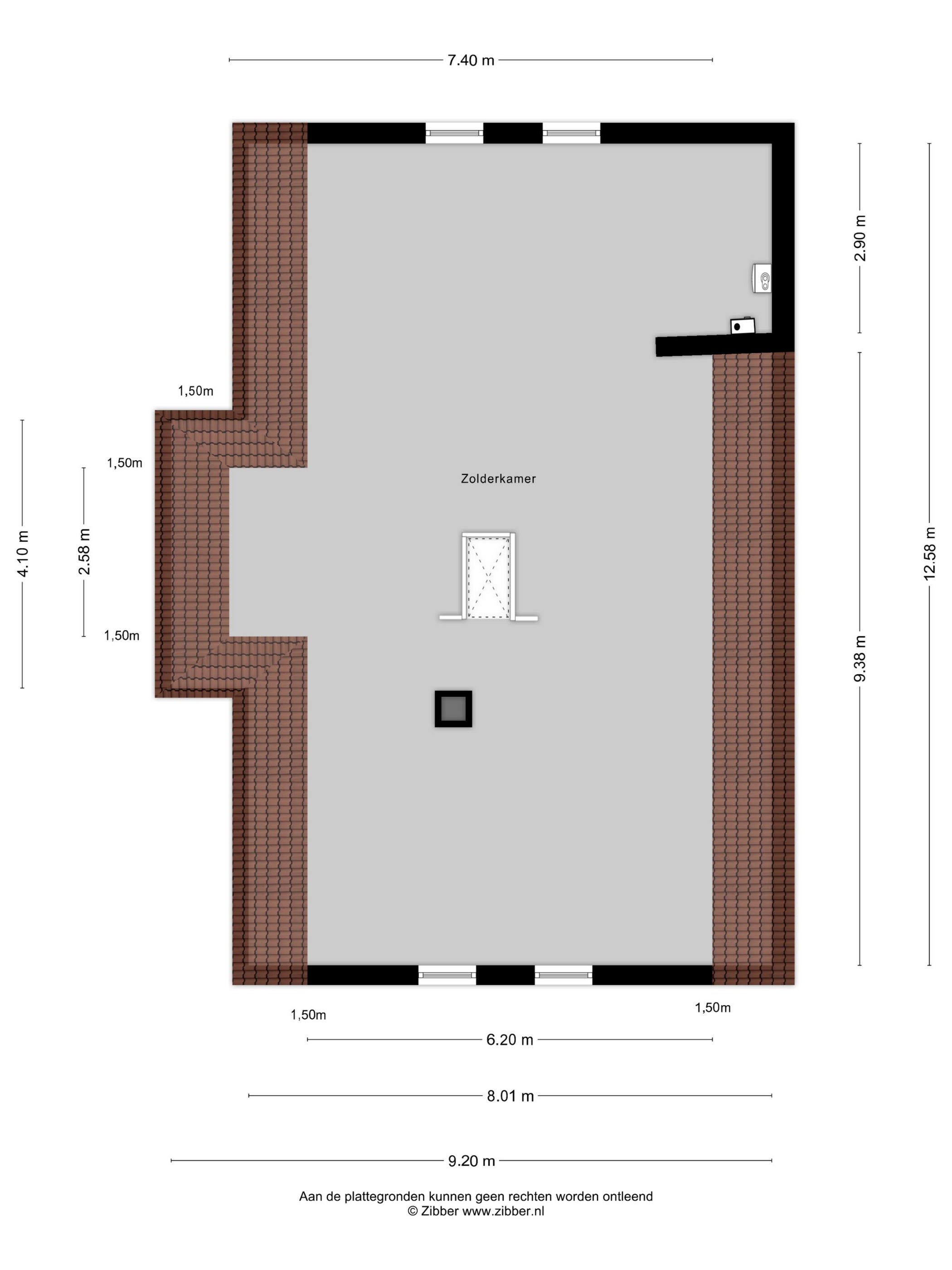
In de prachtige Hamseweg in Hoogland staat een unieke vrijstaande woning op een royaal perceel van 718 m². Dit huis biedt de mogelijkheid om gelijkvloers te wonen en is tevens uitbreidbaar. Op de begane grond vind je twee slaapkamers, een complete badkamer, een ruime woonkamer en een dichte woonkeuken met uitzicht op de tuin. Vanuit de keuken kom je in de praktische bijkeuken, die toegang geeft tot een royale garage van circa 68 m². De eerste verdieping, bereikbaar via een vlizotrap, heeft veel potentieel voor extra woonruimte. De loods aan huis is perfect voor ondernemers of hobbyisten en biedt veel mogelijkheden. De zonnige tuin op het zuidwesten, met een diepte van 31 meter, biedt privacy. Gelegen aan de rand van Hoogland, dichtbij winkels en openbaar vervoer.

Overdracht

Vraagprijs
€ 1.195.000 k.k.
Prijs per m²
€ 11.168
Aangeboden sinds
23-02-2026
Status
Beschikbaar
Beschikbaar
Per direct

Oppervlakte en inhoud

Woonoppervlakte
107 m²
Perceeloppervlakte
718 m²

Bouw

Type woning
Huis
Soort woning
Tussenwoning (rijtjeshuis), Eengezinswoning
Soort bouw
Bestaande bouw
Bouwjaar
2001

Indeling

Aantal kamers
3
Aantal slaapkamers
2
Aantal badkamers
1

Buitenruimte

Dakterras
Niet aanwezig

Energie

Energielabel
C
Meld een probleem met deze woning