Contact met de makelaar

Deze woning is gevonden buiten ons eigen netwerk. Met de knop hieronder kom je direct bij de aanbieder terecht.

Nieuw

Vestestraat 25

Bekijk kaart
2312 SV Leiden (Pancras-Oost)
€ 530.000 k.k.
  • 85 m²
  • 4 kamers
  • 1750

Samenvatting

  • Deze woning wordt sinds 28 januari 2026 aangeboden door DOEN NVM Makelaars - Voorburg;
  • De tussenwoning heeft een woonoppervlakte van 85 m² en beschikt over 4 kamers, waarvan 2 slaapkamers;
  • De woning is gebouwd In 1750 en ligt in de buurt Pancras-Oost in Leiden.

Beschrijving

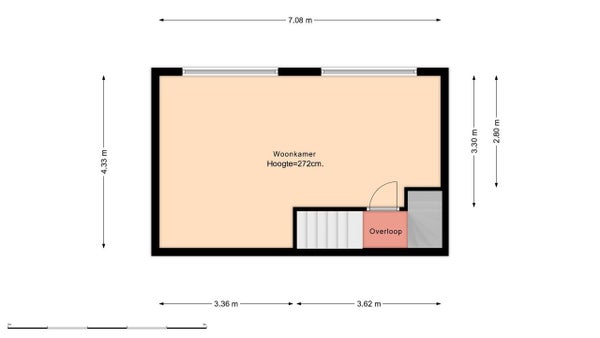
Je vindt hier een lichte, praktische en flexibele woning in het hart van Leiden. Bij binnenkomst verwelkomt de lichte keuken en eetruimte je. De extra kamer op de begane grond kan dienen als een thuiswerkplek, hobbykamer of slaapkamer. Op de eerste verdieping stroomt het daglicht binnen in de gezellige woonkamer, die eenvoudig kan worden aangepast in twee slaapkamers. De tweede verdieping herbergt een ruime slaapkamer onder een charmant hellend dak, met daarnaast een moderne badkamer. Deze eengezinswoning uit 1750 heeft een woonoppervlak van ongeveer 85 m² en een inhoud van 324 m³. Gelegen in een rustige straat met het historische centrum van Leiden dichtbij, zijn supermarkt en terrassen op loopafstand. Een ideale locatie met goede bereikbaarheid!

Overdracht

Vraagprijs
€ 530.000 k.k.
Aangeboden sinds
28-01-2026
Status
Beschikbaar
Beschikbaar
Per direct

Oppervlakte en inhoud

Woonoppervlakte
85 m²

Bouw

Type woning
Huis
Soort woning
Tussenwoning (rijtjeshuis), Eengezinswoning
Soort bouw
Bestaande bouw
Bouwjaar
1750

Indeling

Aantal kamers
4
Aantal slaapkamers
2
Aantal badkamers
1

Buitenruimte

Dakterras
Niet aanwezig

Energie

Energielabel
D
Meld een probleem met deze woning