Contact met de makelaar

Deze woning is gevonden buiten ons eigen netwerk. Met de knop hieronder kom je direct bij de aanbieder terecht.

Nieuw

Jekerstraat 19

Bekijk kaart
6211 NT Maastricht (Kommelkwartier)
€ 1.095.000 k.k.
  • 230 m²
  • 6 kamers
  • 1700

Samenvatting

  • Deze woning wordt sinds 29 januari 2026 aangeboden door Lassoo Makelaars & Taxateurs;
  • De tussenwoning heeft een woonoppervlakte van 230 m² en beschikt over 6 kamers, waarvan 5 slaapkamers;
  • De woning is gebouwd In 1700 en ligt in de buurt Kommelkwartier in Maastricht.

Beschrijving

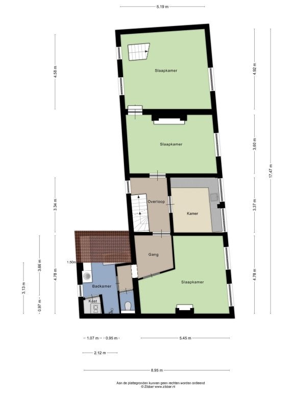
In het bruisende centrum van Maastricht staat een monumentale voormalige officierswoning, die sinds 2009 grondig is gerenoveerd. De combinatie van authentieke elementen en modern comfort resulteert in een riante woning met 5 slaapkamers en 3 badkamers. De bijzondere gewelfde kelder van ca. 40 m² dateert uit 1600. Op de begane grond vind je een sfeervolle woonkamer met openslaande deuren naar de patiotuin en een moderne keuken met vloerverwarming. De eerste verdieping omvat een bibliotheek, slaapkamers en een luxe badkamer met jacuzzi. De tweede verdieping heeft 2 slaapkamers, ieder met een eigen badkamer. Dodaalt de ondergrondse parkeerplaats via een autolift. Dit prachtige herenhuis heeft een perceel van 126 m² en een woonoppervlakte van ca. 230 m². Interesse? Neem contact op voor een bezichtiging.

Overdracht

Vraagprijs
€ 1.095.000 k.k.
Aangeboden sinds
29-01-2026
Status
Beschikbaar
Beschikbaar
Per direct

Oppervlakte en inhoud

Woonoppervlakte
230 m²
Perceeloppervlakte
126 m²

Bouw

Type woning
Huis
Soort woning
Tussenwoning (rijtjeshuis), Eengezinswoning
Soort bouw
Bestaande bouw
Bouwjaar
1700

Indeling

Aantal kamers
6
Aantal slaapkamers
5
Aantal badkamers
3

Buitenruimte

Dakterras
Niet aanwezig
Meld een probleem met deze woning