Contact met de makelaar

Deze woning is gevonden buiten ons eigen netwerk. Met de knop hieronder kom je direct bij de aanbieder terecht.

Verkocht onder voorbehoud

Carmelstraat 39

Bekijk kaart
6222 BV Maastricht (Limmel)
€ 275.000 k.k.
  • 74 m²
  • 5 kamers
  • 1993

Samenvatting

  • Deze woning wordt sinds 6 weken aangeboden door KH-Solutions Makelaars;
  • De tussenwoning heeft een woonoppervlakte van 74 m² en beschikt over 5 kamers, waarvan 3 slaapkamers;
  • De woning is gebouwd In 1993 en ligt in de buurt Limmel in Maastricht;
  • De woning beschikt onder andere over de volgende voorzieningen: Mechanische ventilatie, Douche, Toilet.

Beschrijving

IN DE VERKOOP BIJ KH-SOLUTIONS MAKELAARS:
Deze fijne tussenwoning met een ruime achtertuin in een rustige straat ligt in de wijk “Limmel”. Met maar liefst 3 slaapkamers is er genoeg ruimte voor iedereen. Buiten wacht een diepe tuin met berging. Geniet van een rechte opstelling keuken welke prima afgewerkt is aan de voorzijde van de woning. De woonkamer aan de achterzijde geniet van veel lichtinval. Carmelstraat 39 heeft een energielabel C en kenmerkt zich door de juiste ligging in een fijne omgeving. Kort bij het MUMC/Universiteit en stadscentrum Maastricht, evenals de hotelschool. Maak een afspraak met makelaar Kenneth om de woning te bezichtigen.

De woning is rustig gelegen in de geliefde woonwijk Limmel. Diverse winkels voor de dagelijkse behoeften en voorzieningen. In de directe omgeving zijn er diverse horeca, recreatie- en sportmogelijkheden en scholen gelegen. Binnen 5 minuten fietsafstand is het historische stadscentrum van Maastricht te bereiken, alsmede het NS-station. Bereikbaarheid met openbaar vervoer is goed en de aansluiting met de autowegen bevindt zich in de nabijheid. Al met al, een zeer gewilde plek om te wonen.

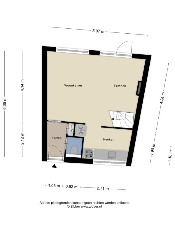
INDELING

Begane grond
Bij binnenkomst in de woning komt u in een entreehal met meterkast, die toegang biedt tot de woonkamer en toiletruimte. De woonkamer is eveneens ruim van opzet en beschikt over een halfopen keuken (2022) aan de voorzijde van de woning, wat zorgt voor een gezellige en lichte sfeer. De keuken is v.v. diverse apparatuur onder andere een vaatwasser. De woonkamer aan de achterzijde van de woning beschikt over een eetruimte en een zitruimte. De tuin is toegankelijk vanuit de woonkamer/living.

Daarnaast beschikt de woning over een ruime niet overdekte berging, die vanuit de tuin van de woning te bereiken is. De achter-haag zal door koper opnieuw geplaatst dienen te worden.
Eerste verdieping.
De overloop op de eerste verdieping van de woning biedt toegang tot 1 comfortabele en ruime slaapkamer, de badkamer en de trap die naar de tweede verdieping leidt. Veel lichtinval is kenmerkend voor deze eengezinswoning.

De badkamer uit circa 2015 is volledig betegeld en is v.v. ruime inloopdouche, modern afgewerkt + een wastafel met meubel aanwezig, wat zorgt voor een praktische en functionele indeling. De badkamer is v.v. en een raam en een radiator. Tevens bevindt zich hier de witgoedopstelling. De trapbekleding is in 2025 volledig vervangen en ziet er keurig uit.

Tweede verdieping
Via een vaste trap bereikt u de overloop op de bovenverdieping, die toegang biedt tot de twee slaapkamers en een berging (technische ruimte). Daarnaast bevindt zich in deze ruimte Cv-ketel, een Intergas Hre model uit 2023, eigendom. Dit zorgt voor een betrouwbare verwarming en warmwatervoorziening in de woning.

Bijzonderheden

  • Fijne tussenwoning in ‘Limmel’
  • Netto woonoppervlakte van 74 m²
  • Energielabel C!
  • 3 slaapkamers
  • Kindvriendelijke buurt
  • De gehele woning is voorzien van houten kozijnen en dubbele beglazing
  • Diepe achtertuin
  • Mat zwarte keuken uit 2022 en stijlvolle badkamer
  • Nieuwe trapbekleding 2025
  • Schilderwerk hout 2023
  • Cv-ketel Intergas HRE 2023 eigendom
    Deze omgeving bied je voor nu en voor de toekomst een prettig woon- en leefklimaat.
    De genoemde maten zijn ca., hieraan kunnen geen rechten worden ontleend.

Bezichtiging inplannen?
Uitsluitend op afspraak via makelaarskantoor KH-Solutions Makelaars.

Ter bescherming van de belangen van zowel koper als verkoper, wordt uitdrukkelijk gesteld dat een koopovereenkomst met betrekking tot deze onroerende zaak eerst dan tot stand komt nadat koper en verkoper de koopovereenkomst hebben getekend.

De termijn die wordt opgenomen voor eventuele (overeengekomen) ontbindende voorwaarden (bv. financiering) is in de regel 4 tot 6 weken na het sluiten van de mondelinge overeenkomst.

De waarborgsom/bankgarantie is 10% van de koopsom. De koper dient deze 1 week ná het vervallen van de ontbindende voorwaarden bij de notaris te deponeren.
Koper is te allen tijde gerechtigd voor eigen rekening een bouwkundige keuring te (laten) verrichten dan wel andere adviseurs te raadplegen teneinde een goed inzicht te verkrijgen over de staat van onderhoud.

Deze informatie is door KH-Solutions Makelaars met de nodige zorgvuldigheid samengesteld. Onzerzijds wordt echter geen enkele aansprakelijkheid aanvaard voor enige onvolledigheid, onjuistheid of anderszins, dan wel de gevolgen daarvan. Alle opgegeven maten en oppervlakten zijn indicatief. Koper is uitgenodigd de opgegeven oppervlakte(s) van het gekochte op juistheid te controleren.

Makelaar Kenneth Heuts van KH-Solutions Makelaars nodigt je graag uit voor een bezichtiging.

NEN2580 Meetrapport
De meting en berekeningen zijn op basis van de ”Meetinstructie bepalen gebruiksoppervlakten woningen” en ”Meetinstructie bepalen bruto inhoud woningen” a.d.h.v. de NEN2580:2007 NL, ‘Oppervlakten en inhouden van gebouwen – Termen, definities en bepalingsmethoden’, inclusief het correctieblad NEN 2580:2007/C1:2008. Op dit meetcertificaat zijn de in dit meetrapport genoemde aannames en voorbehouden van toepassing. NEN2580 meetrapport opvraagbaar bij de makelaar.

Niet-bewoners clausule
Verkoper heeft zelf nooit in het registergoed gewoond.

Oplevering
Het object zal worden verkocht en geleverd ‘as-is, where
Is’, dat wil zeggen in de staat ten tijde van de levering met alle aan het object verbonden rechten en plichten, alsmede eventuele zichtbare en onzichtbare gebreken en zonder garantie van enig soort, waaronder die met betrekking tot technische, bouwkundige, juridische, fiscale, milieukundige, huur- en commerciële aspecten van het verkochte.

Overdracht

Vraagprijs
€ 275.000 k.k.
Aangeboden sinds
16-11-2025
Status
Verkocht onder voorbehoud
Beschikbaar
In overleg
Onderhoudsstaat
Goed

Oppervlakte en inhoud

Woonoppervlakte
74 m²
Perceeloppervlakte
138 m²
Inhoud
261 m³

Bouw

Type woning
Huis
Soort woning
Tussenwoning (rijtjeshuis), Eengezinswoning
Soort bouw
Bestaande bouw
Bouwjaar
1993
Ligging
  • Aan een rustige weg
  • In een woonwijk
  • Beschut gelegen
  • Vrij uitzicht

Indeling

Aantal kamers
5
Aantal slaapkamers
3
Aantal badkamers
1
Aantal woonlagen
3
Voorzieningen
  • Mechanische ventilatie
  • Douche
  • Toilet

Buitenruimte

Balkon
Niet aanwezig
Tuin
Aanwezig (94 m², gelegen op het noordoosten)
Tuinbeschrijving
achtertuin
Dakterras
Niet aanwezig

Energie

Isolatie
Dubbele beglazing, Vloerisolatie, HR glas, Dakisolatie
Verwarming
CV-ketel
Warm water
CV-ketel
Cv-ketel
Intergas HRE (Gas, uit 2023, Eigendom)
Energielabel
C

Bergruimte

Schuur/Berging
Aanwezig
Omschrijving
Vrijstaand hout

Parkeergelegenheid

Aanwezig
Ja
Soort parkeergelegenheid
Openbaar

Garage

Aanwezig
Nee
Meld een probleem met deze woning