Contact met de makelaar

Deze woning is gevonden buiten ons eigen netwerk. Met de knop hieronder kom je direct bij de aanbieder terecht.

Kruisboogruwe 21

Bekijk kaart
6218 TG Maastricht (Malberg)
€ 315.000 k.k.
  • 101 m²
  • 5 kamers
  • 1993

Samenvatting

  • Deze woning wordt sinds 7 weken aangeboden door Pooters Makelaardij;
  • De tussenwoning heeft een woonoppervlakte van 101 m² en beschikt over 5 kamers, waarvan 4 slaapkamers;
  • De woning is gebouwd In 1993 en ligt in de buurt Malberg in Maastricht;
  • De woning beschikt onder andere over de volgende voorzieningen: Kabel TV, Internetaansluiting, Mechanische ventilatie, Rolluiken, Douche, Dakraam, Bergruimte, Toilet.

Beschrijving

DEZE WONING WORDT AANGEBODEN DOOR POOTERS MAKELAARDIJ
Op een centrale locatie in de wijk Malberg ligt deze verzorgde en ruime tussenwoning met vier slaapkamers, een doorzonwoonkamer, zonnige tuin op het zuidoosten en een praktische stenen berging. De woning is gelegen in een kindvriendelijke buurt, op loopafstand van het Kindcentrum Manjefiek Malberg, een winkelcentrum, diverse groenvoorzieningen en het openbaar vervoer. Dankzij de gunstige ligging zijn alle dagelijkse voorzieningen binnen handbereik, terwijl het centrum van Maastricht op korte fietsafstand te bereiken is.

Indeling:

Begane grond:
Entree/hal met meterkast (voorzien van 7 groepen en aardlekschakelaar), een garderobenis en het gastentoilet. De moderne toiletruimte is in 2018 vernieuwd en voorzien van een wandcloset en fonteintje met meubel.
De doorzonwoonkamer (26m²) is dankzij de grote raampartijen heerlijk licht en biedt toegang tot de achtertuin via een tuindeur. De woonkamer is voorzien van een moderne laminaatvloer en strakke wandafwerking, wat bijdraagt aan een verzorgde uitstraling.

De open keuken is in 2021 volledig vernieuwd en beschikt over een stijlvol schiereiland met een hoogwaardig marmeren werkblad. De keuken is uitgerust met moderne Siemens apparatuur, waaronder een 4-pits inductiekookplaat met grillfunctie, combimagnetron, oven, vaatwasser, koelkast, vriezer, afzuigkap en een spoelbak.

De achtertuin is gelegen op het zonnige zuidoosten en vrijwel volledig betegeld, waardoor deze zeer onderhoudsvriendelijk is. In 2022 is kunstgras aangelegd, wat extra comfort en een groene uitstraling biedt. De tuin beschikt over een achterom en een vrijstaande stenen berging (7m²), ideaal voor het stallen van fietsen of tuinbenodigdheden. Daarnaast is in 2021 een sfeervolle overkapping met geïntegreerde ledverlichting gerealiseerd, perfect voor gezellige avonden buiten.

De voortuin is in 2022 opnieuw betegeld en draagt bij aan de verzorgde uitstraling van de woning.

Eerste verdieping:
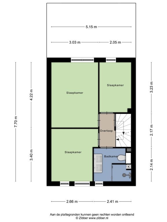
De overloop (4m²) geeft toegang tot drie slaapkamers en de badkamer. Alle slaapkamers zijn afgewerkt met een moderne laminaatvloer. Slaapkamer 1 (13m²), gelegen aan de achterzijde, beschikt over elektrisch bedienbare rolluiken. Slaapkamer 2 (9m²), is aan de voorzijde gelegen en voorzien van handbediende rolluiken. Slaapkamer 3 (7m²), is eveneens aan de achterzijde gelegen met uitzicht op de tuin.

De luxe badkamer (5m²) is in 2018 volledig vernieuwd en voorzien van hoogwaardige materialen en een moderne uitstraling. De ruimte beschikt over een eigentijdse tegelvloer, een wandcloset, een dubbele vaste wastafel in een strak ombouwmeubel, een regendouche met massagefunctie en een radiator. Dankzij de doordachte indeling en luxe afwerking is deze badkamer een echte eyecatcher en biedt het dagelijks comfort op niveau.

Tweede verdieping:
De tweede verdieping is bereikbaar via een vaste trap en biedt verrassend veel extra leefruimte. Op de voorzolder (12m²) bevinden zich de aansluitingen voor wasmachine en droger, de mechanische ventilatie, evenals de opstelling van de HR-combiketel.

De vierde slaapkamer (12m²) is ruim bemeten en beschikt over inbouwkasten en een groot Velux-dakraam, wat zorgt voor aangenaam daglicht. Deze kamer is thans in gebruik als walk-in-closet. Het dak is voorzien van isolatie, wat bijdraagt aan het wooncomfort en de energiezuinigheid.

Extra informatie:

  • Goed onderhouden en instapklare woning;
  • Voorzien van vier volwaardige slaapkamers;
  • Vrijwel volledig voorzien van houten kozijnen met isolerende beglazing;
  • Nagenoeg geheel uitgerust met rolluiken (deels elektrisch bedienbaar);
  • Verwarming en warm water wordt verkregen middels combiketel (Nefit HR; bj. 2010; eigendom);
  • Luxe open keuken met schiereiland en hoogwaardige Siemens apparatuur, vernieuwd in 2021;
  • Badkamer en toilet vernieuwd in 2018;
  • Overkapping met sfeervolle ledverlichting gerealiseerd in 2021;
  • Voortuin opnieuw betegeld in 2022;
  • Kunstgras in achtertuin aangelegd in 2022;
  • Mechanische ventilatie aanwezig;
  • Voorzien van dak-, spouwmuur- en vloerisolatie;
  • Achtertuin met gunstige zonligging (zuidoosten);
  • Centrale ligging in een rustige, kindvriendelijke buurt met alle voorzieningen op loopafstand;
  • Centrale ligging ten opzichte van uitvalswegen en het centrum van Maastricht;
  • Definitief energielabel 'B';
  • Voldoende gratis parkeergelegenheid in de straat.

Algemene informatie:
Deze aantrekkelijke woning is gelegen in een rustige straat in de wijk Malberg, een groene en kindvriendelijke buurt met uitstekende voorzieningen in de directe omgeving. Supermarkten, scholen, sportfaciliteiten en openbaar vervoer bevinden zich op loopafstand. Het bruisende centrum van Maastricht is snel en eenvoudig per fiets bereikbaar. Bovendien liggen uitvalswegen richting onder andere de A2 en A79 op slechts enkele autominuten afstand, wat zorgt voor een uitstekende bereikbaarheid richting omliggende steden en regio's.

Ter bescherming van de belangen van zowel koper als verkoper, wordt uitdrukkelijk gesteld dat een koopovereenkomst met betrekking tot deze onroerende zaak eerst dan tot stand komt nadat koper en verkoper de koopovereenkomst hebben getekend ("schriftelijkheidsvereiste"). De termijn die wordt opgenomen voor eventuele (overeengekomen) ontbindende voorwaarden (bv. Financiering) is in de regel 4 tot 6 weken na het sluiten van de mondelinge wilsovereenkomst.

De waarborgsom/bankgarantie is 10% van de koopsom. De koper dient deze 2 weken ná het vervallen van de ontbindende voorwaarden bij de desbetreffende notaris te deponeren.

Koper is te allen tijde gerechtigd voor eigen rekening een bouwkundige keuring te (laten) verrichten dan wel andere adviseurs te raadplegen teneinde een goed inzicht te verkrijgen over de staat van onderhoud.

Bovenstaande vrijblijvende informatie is door Pooters Makelaardij met de nodige zorgvuldigheid samengesteld. Echter aanvaardt Pooters Makelaardij geen enkele aansprakelijkheid voor enige onvolledigheid, onjuistheid of anderszins, dan wel de gevolgen daarvan. Oppervlakten en maten zijn indicatief.

Overdracht

Vraagprijs
€ 315.000 k.k.
Aangeboden sinds
12-11-2025
Status
Beschikbaar
Beschikbaar
In overleg
Onderhoudsstaat
Goed

Oppervlakte en inhoud

Woonoppervlakte
101 m²
Perceeloppervlakte
113 m²
Inhoud
358 m³

Bouw

Type woning
Huis
Soort woning
Tussenwoning (rijtjeshuis), Eengezinswoning
Soort bouw
Bestaande bouw
Bouwjaar
1993
Ligging
  • In een woonwijk
  • Nabij het openbaar vervoer
  • Nabij een school

Indeling

Aantal kamers
5
Aantal slaapkamers
4
Aantal badkamers
1
Aantal woonlagen
3
Voorzieningen
  • Kabel TV
  • Internetaansluiting
  • Mechanische ventilatie
  • Rolluiken
  • Douche
  • Dakraam
  • Bergruimte
  • Toilet

Buitenruimte

Balkon
Niet aanwezig
Tuin
Aanwezig (77 m², gelegen op het zuidoosten)
Tuinbeschrijving
achtertuin
Dakterras
Niet aanwezig

Energie

Isolatie
Dubbele beglazing, Vloerisolatie, Dakisolatie, Muurisolatie
Verwarming
CV-ketel
Warm water
CV-ketel
Cv-ketel
Nefit HR (Gas, uit 2010, Eigendom)
Energielabel
B

Bergruimte

Schuur/Berging
Aanwezig

Parkeergelegenheid

Aanwezig
Ja
Soort parkeergelegenheid
Openbaar
Meld een probleem met deze woning