- 380 m²
- 8 kamers
- 1960
Samenvatting
- Deze woning wordt sinds 3 maanden aangeboden door Basten Assurantiën en Makelaardij;
- De vrijstaande woning heeft een woonoppervlakte van 380 m² en beschikt over 8 kamers, waarvan 6 slaapkamers;
- De woning is gebouwd In 1960 en ligt in de buurt Buitengebied Ooij in Ooij.
Beschrijving
De Vlietberg 25: Exclusieve Woning op unieke locatie op de Vlietberg.
Op een van de meest private locaties in de Ooijpolder, waar rust en ruimte vanzelfsprekend zijn, staat deze unieke woning. Hier geniet u van een adembenemend en volledig vrij panoramisch uitzicht over de rivier de Waal. Dit is een zeldzame kans om in alle beslotenheid te wonen, omringd door natuur en met de rivier als uw constant veranderende horizon.
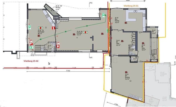
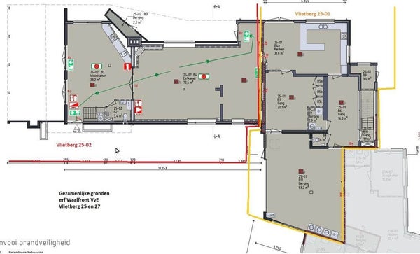
Aangeboden wordt Vlietberg 25, een royaal woonhuis op de Vlietberg bij Nijmegen met een vloeroppervlakte van ruim 380m². Deze woning wordt als een geheel verkocht (Vlietberg 25), of in twee zelfstandige eenheden: Vlietberg 25A en Vlietberg 25B. Het geheel is gelegen op een ruim perceel van ca. 3800 m² met een diepe, groene tuin uitkijkend op de Waal met volledige privacy. Het perceel van Vlietberg 25A is ruim 1512 m² groot en het gezamenlijke erf is ruim 5240 m² groot. Het perceel van Vlietberg 25B is ruim 2244 m² groot.
Kopers hebben de mogelijkheid om het gehele pand te verwerven, of te kiezen voor één van beide wooneenheden.
Locatie:
U woont hier in het hart van de Ooijpolder, een natuurgebied met fiets-, wandel- en hardlooproutes, terwijl alle stedelijke voorzieningen binnen handbereik liggen. De Vlietberg ligt in het hart van de Ooijpolder, een uniek natuurgebied met fiets-, wandel- en hardlooproutes, waar u zo de uiterwaarden in wandelt, terwijl de stad Nijmegen op slechts enkele minuten fietsafstand ligt. De Vlietberg combineert de rust en natuur van de polder met alle gemakken van de stad: een unieke woonbeleving op een besloten perceel met eigen toegangswegen
• Nijmegen centrum op fietsafstand (enkele minuten)
• Treinstation Lent op ca. 15 minuten fietsen
• Sportvelden, basisschool en supermarkt binnen 10 minuten bereikbaar
• Horeca zoals de Waalkade van Nijmegen zeer dichtbij
De Vlietberg combineert de rust en natuur van de polder met de gemakken van de stad: een unieke woonbeleving op een eigen perceel, welke vrij ligt aan een eigen weg met zicht rondom. Meer informatie is te vinden op Vlietbergbeheer.
Kerngegevens Vlietberg 25 (ca. 380 m² woonoppervlak, perceel ca. 3756 m²)
• Type aanbod: Woning
• Eigendomssituatie: volledige eigendom
• Locatie: Vlietberg 25, 6576 JB Ooij
• Prijs: €1.867.000,-
• Perceeloppervlakte: 3756 m²
• Vloeroppervlakte: ca. 436 m² BVO verdeeld over twee lagen
• Percelen: 813, 820,824, 814, 823, 819
• Gezamenlijk erf: 5241 m2, percelen 812, 825, 822, 821,818, 826
• Bestemming: wonen
Indeling Vlietberg 25A (ca. 139 m² woonoppervlak, perceel ca. 1.512 m²)
Overig inpandige ruimte: Garage 53 m2.
De Vlietberg 25A beschikt over een woonkamer met keuken, drie slaapkamers,study, badkamer en carport.
Kerngegevens
• Type aanbod: Woning
• Eigendomssituatie: volledige eigendom
• Locatie: Vlietberg 25A, 6576 JB Ooij
• Prijs: €879.000,-
• Perceeloppervlakte: 1512 m²
• Vloeroppervlakte: ca. 192 m² BVO verdeeld over twee lagen
• Percelen: 814, 823, 819
• Gezamenlijk erf: 5241 m2, percelen 812, 825, 822, 821,818, 826
• Bestemming: wonen
Indeling Vlietberg 25B (ca. 244 m² woonoppervlak, perceel ca. 2244 m²)
De Vlietberg 25B beschikt over een woonkamer met keuken, vier slaapkamers en twee badkamers. Het uitzicht vanuit deze woning is fenomenaal.
Kerngegevens
• Type aanbod: Woning
• Eigendomssituatie: volledige eigendom
• Locatie: Vlietberg 25B, 6576 JB Ooij
• Prijs: €988.000,-
• Perceeloppervlakte: 2244 m²
• Vloeroppervlakte: ca. 244 m² BVO verdeeld over twee lagen
• Percelen: 813, 820,824
• Gezamenlijk erf: 5241 m2, percelen 812, 825, 822, 821,818, 826
• Bestemming: wonen
Procedure en Contact
Wij verstrekken u graag meer informatie over de Vlietberg 25. Serieuze kandidaten nodigen wij uit contact op te nemen voor een toelichting en een bezichtiging.
Disclaimer
De vermelde informatie is met zorg samengesteld, maar uitsluitend bedoeld ter indicatie. Aan maten, tekeningen, impressies, prijzen en beschikbaarheid kunnen geen rechten worden ontleend. Wijzigingen en typefouten voorbehouden. Gunning voorbehouden
Overdracht
- Vraagprijs
- € 1.867.000 k.k.
- Aangeboden sinds
- 24-10-2025
- Status
- Beschikbaar
- Beschikbaar
- In overleg
- Onderhoudsstaat
- Redelijk
Oppervlakte en inhoud
- Woonoppervlakte
- 380 m²
- Perceeloppervlakte
- 3.747 m²
- Inhoud
- 978 m³
Bouw
- Type woning
- Huis
- Soort woning
- Vrijstaande woning, Eengezinswoning
- Soort bouw
- Bestaande bouw
- Bouwjaar
- 1960
Indeling
- Aantal kamers
- 8
- Aantal slaapkamers
- 6
- Aantal badkamers
- 3
- Aantal woonlagen
- 2
Buitenruimte
- Balkon
- Niet aanwezig
- Tuin
- Aanwezig
- Tuinbeschrijving
- achtertuin
- Dakterras
- Niet aanwezig
Garage
- Aanwezig
- Ja