Contact met de makelaar

Deze woning is gevonden buiten ons eigen netwerk. Met de knop hieronder kom je direct bij de aanbieder terecht.

Rhijnauwensingel 206

Bekijk kaart
3077 EV Rotterdam (Beverwaard)
€ 375.000 k.k.
  • 120 m²
  • 5 kamers
  • 1981

Samenvatting

  • Deze woning wordt sinds 2 maanden aangeboden door Woonvisie NVM Makelaars;
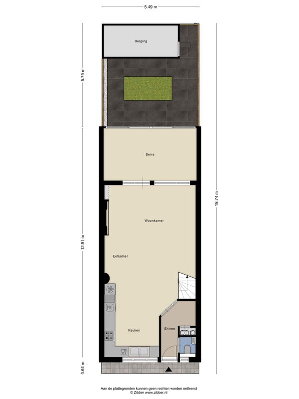
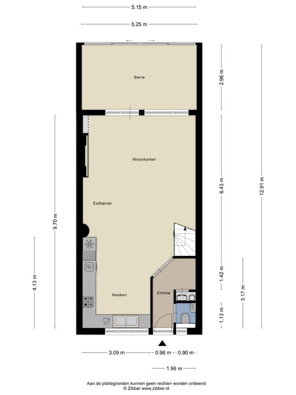
  • De tussenwoning heeft een woonoppervlakte van 120 m² en beschikt over 5 kamers, waarvan 4 slaapkamers;
  • De woning is gebouwd In 1981 en ligt in de buurt Beverwaard in Rotterdam;
  • De woning beschikt onder andere over de volgende voorzieningen: Douche, Dakraam, Bergruimte, Toilet, Wasruimte.

Beschrijving

Overdracht

Vraagprijs
€ 375.000 k.k.
Aangeboden sinds
09-10-2025
Status
Beschikbaar
Beschikbaar
In overleg
Onderhoudsstaat
Goed

Oppervlakte en inhoud

Woonoppervlakte
120 m²
Perceeloppervlakte
106 m²
Inhoud
480 m³

Bouw

Type woning
Huis
Soort woning
Tussenwoning (rijtjeshuis), Eengezinswoning
Soort bouw
Bestaande bouw
Bouwjaar
1981
Ligging
  • In een woonwijk
  • Vrij uitzicht

Indeling

Aantal kamers
5
Aantal slaapkamers
4
Aantal badkamers
1
Aantal woonlagen
3
Voorzieningen
  • Douche
  • Dakraam
  • Bergruimte
  • Toilet
  • Wasruimte

Buitenruimte

Balkon
Niet aanwezig
Tuin
Aanwezig (32 m², gelegen op het oosten)
Tuinbeschrijving
achtertuin
Dakterras
Niet aanwezig

Energie

Isolatie
Gedeeltelijk dubbele beglazing
Verwarming
CV-ketel, Gedeeltelijke vloerverwarming
Warm water
CV-ketel
Energielabel
C

Bergruimte

Schuur/Berging
Aanwezig
Omschrijving
Vrijstaand steen

Parkeergelegenheid

Aanwezig
Ja
Soort parkeergelegenheid
Openbaar

Garage

Aanwezig
Nee
Meld een probleem met deze woning