- 95 m²
- 4 kamers
- 1985
Samenvatting
- Deze woning wordt sinds 31 oktober 2025 aangeboden door Hauzer & Partners;
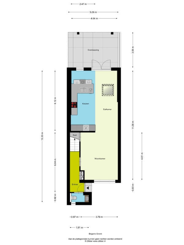
- De tussenwoning heeft een woonoppervlakte van 95 m² en beschikt over 4 kamers, waarvan 2 slaapkamers;
- De woning is gebouwd In 1985 en ligt in de buurt Op de Heide in Tegelen.
Beschrijving
Overdracht
- Vraagprijs
- € 295.000 k.k.
- Aangeboden sinds
- 31-10-2025
- Status
- Beschikbaar
- Beschikbaar
- In overleg
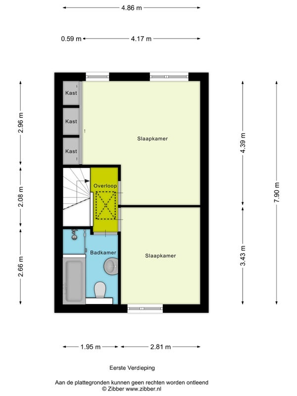
Oppervlakte en inhoud
- Woonoppervlakte
- 95 m²
- Perceeloppervlakte
- 143 m²
Bouw
- Type woning
- Huis
- Soort woning
- Tussenwoning (rijtjeshuis), Eengezinswoning
- Soort bouw
- Bestaande bouw
- Bouwjaar
- 1985
Indeling
- Aantal kamers
- 4
- Aantal slaapkamers
- 2
- Aantal badkamers
- 1
Buitenruimte
- Dakterras
- Niet aanwezig
Energie
- Energielabel
- A
 
                 
                 
                 
                 
                 
                 
                 
                 
                 
                 
                 
                 
                 
                 
                 
                 
                 
                 
                 
                 
                 
                 
                 
                 
                 
                 
                 
                 
                 
                