Contact met de aanbieder

Deze woning is gevonden buiten ons eigen netwerk. Via de knop hieronder ga je direct naar de website van de aanbieder.

Nieuw

Heierkerkweg 11

Bekijk kaart
5928 RM Venlo (Zaarderheiken)
€ 439.000 k.k.
  • 100 m²
  • 6 kamers
  • 1940

Samenvatting

  • Deze woning wordt sinds 2 maart 2026 aangeboden door Hauzer & Partners;
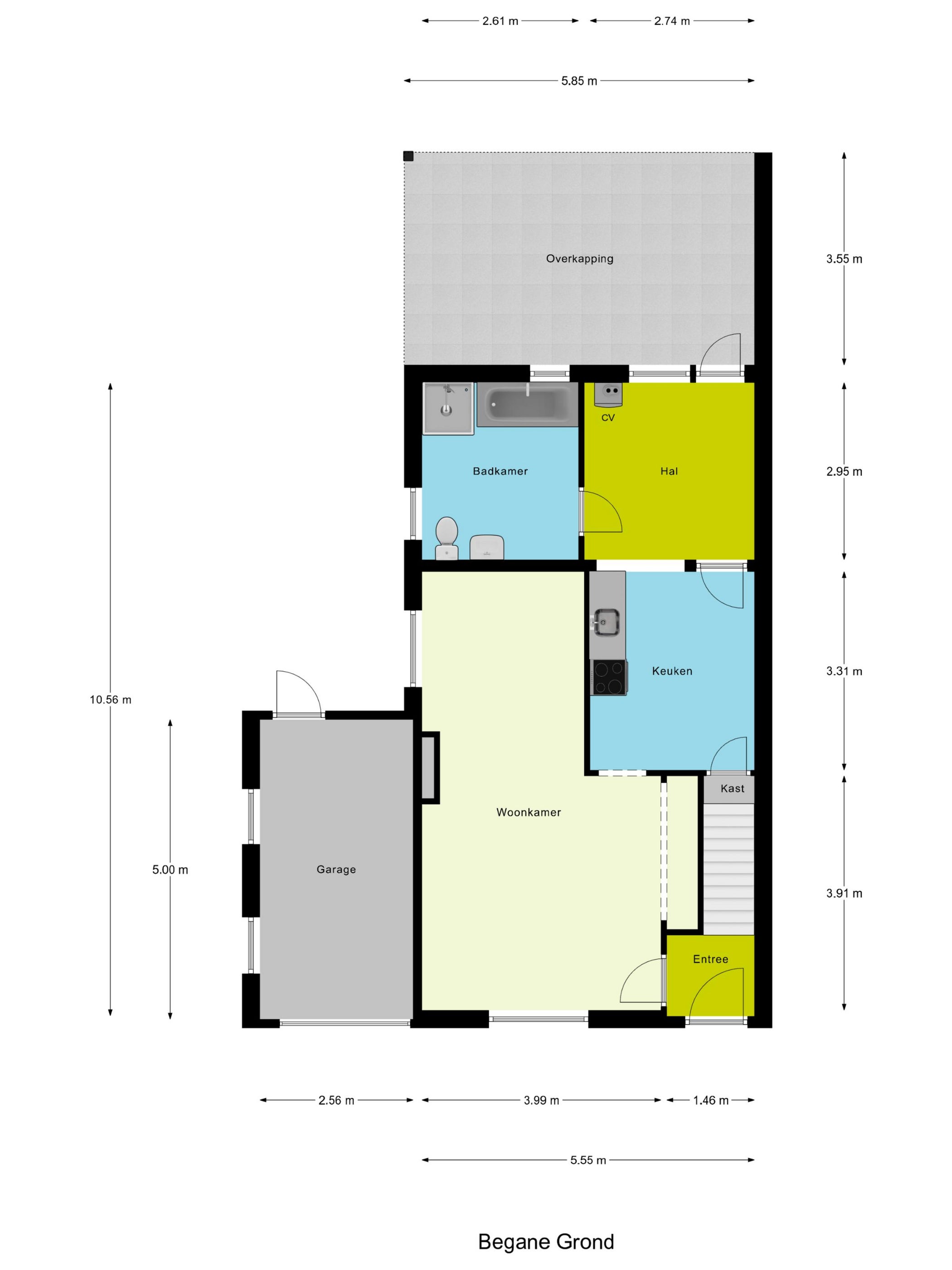
  • De tussenwoning heeft een woonoppervlakte van 100 m² en beschikt over 6 kamers, waarvan 3 slaapkamers;
  • De woning is gebouwd In 1940 en ligt in de buurt Zaarderheiken in Venlo.

Beschrijving

Deze vrijstaande woning aan de rustige Heierkerkweg, net buiten de stad, biedt 100 m² woonoppervlakte en een perceel van 864 m². Gebouwd in 1940, heeft het huis 6 kamers en is het goed onderhouden, met karakter en een ruime, groene tuin. De kelder biedt veel bergruimte en de begane grond voelt meteen prettig aan. De lichte woonkamer geeft uitzicht op de tuin, terwijl de praktische keuken uitnodigt om de dag te beginnen. Op de eerste verdieping zijn drie ruime slaapkamers met uitzicht op het groen, naast extra bergruimte voor seizoensspullen. De tuin is veelzijdig met opstallen voor opslag of hobby's en een vijver als sfeervol middelpunt. Met voorzieningen van Venlo binnen handbereik, biedt deze woning de perfecte balans tussen landelijk wonen en stedelijke voorzieningen.

Overdracht

Vraagprijs
€ 439.000 k.k.
Prijs per m²
€ 4.390
Aangeboden sinds
02-03-2026
Status
Beschikbaar
Beschikbaar
Per direct

Oppervlakte en inhoud

Woonoppervlakte
100 m²
Perceeloppervlakte
864 m²

Bouw

Type woning
Huis
Soort woning
Tussenwoning (rijtjeshuis), Eengezinswoning
Soort bouw
Bestaande bouw
Bouwjaar
1940

Indeling

Aantal kamers
6
Aantal slaapkamers
3
Aantal badkamers
1

Buitenruimte

Dakterras
Niet aanwezig

Energie

Energielabel
E
Meld een probleem met deze woning