Contact met de makelaar

Deze woning is gevonden buiten ons eigen netwerk. Met de knop hieronder kom je direct bij de aanbieder terecht.

Julianastraat

Bekijk kaart
1931 CA Egmond aan Zee (Egmond aan Zee)
€ 335.000 k.k.
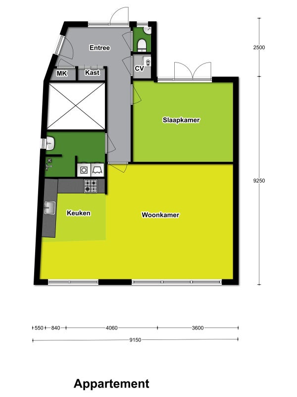
  • 77 m²
  • 2 kamers
  • 1910

Samenvatting

  • Deze woning wordt sinds 6 weken aangeboden door Kloes & Goudsblom makelaardij Castricum;
  • De galerijflat heeft een woonoppervlakte van 77 m² en beschikt over 2 kamers, waarvan 1 slaapkamer;
  • De woning is gebouwd In 1910 en ligt in de buurt Egmond aan Zee in Egmond aan Zee.

Beschrijving

Overdracht

Vraagprijs
€ 335.000 k.k.
Aangeboden sinds
31-10-2025
Status
Beschikbaar
Beschikbaar
In overleg

Oppervlakte en inhoud

Woonoppervlakte
77 m²

Bouw

Type woning
Appartement
Soort woning
Galerijflat
Soort bouw
Bestaande bouw
Bouwjaar
1910

Indeling

Aantal kamers
2
Aantal slaapkamers
1
Aantal badkamers
1

Buitenruimte

Dakterras
Niet aanwezig

Energie

Energielabel
E
Meld een probleem met deze woning