Contact met de makelaar

Deze woning is gevonden buiten ons eigen netwerk. Met de knop hieronder kom je direct bij de aanbieder terecht.

Nieuw

Stuvesande 198

Bekijk kaart
4532 MJ Terneuzen (Noordpolder)
€ 210.000 k.k.
  • 63 m²
  • 2 kamers
  • 1993

Samenvatting

  • Deze woning wordt sinds 22 januari 2026 aangeboden door Wooncoach Terneuzen;
  • De portiekflat heeft een woonoppervlakte van 63 m² en beschikt over 2 kamers, waarvan 1 slaapkamer;
  • De woning is gebouwd In 1993 en ligt in de buurt Noordpolder in Terneuzen.

Beschrijving

Wij mogen u per direct aanbieden: een prachtig appartement op de 6e verdieping van appartementencomplex ''de Residentie'' voorzien van 1 slaapkamer, ruime woonkamer, badkamer, open keuken en een balkon aan landzijde.

De Residentie Terneuzen is bijzonder goed gelegen aan de Scheldeboulevard, dichtbij het centrum, supermarkten, horeca en culturele voorzieningen. Tevens staat De Residentie bekend om het verlenen van service en dienstverlening aan haar bewoners.
In het complex is o.a. een recreatieruimte, deeltijd receptie, winkel en een grote fietsenstalling. Bent u op zoek naar een gezellige woonomgeving, in de Residentie is een actieve bewonerscommissie met o.a. een biljart vereniging. Er is een gezamenlijke ruimte waar regelmatig activiteiten georganiseerd worden zoals een koffiemomentje, kaartspellen, muzikale activiteiten, bingo, filmavond et cetera.

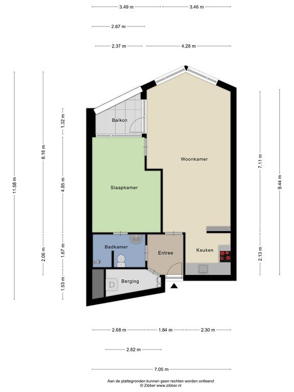
Indeling appartement:
U bereikt uw appartement via een van de twee liften die in de centrale entree beneden gelegen zijn. Uw appartement heeft een ruime entree waar ook de inpandige berging toegankelijk is. Vanuit de entree heeft u verder toegang tot de badkamer en de ruime woonkamer. De badkamer is voorzien van een douche, toilet en wastafel. De badkamer is tevens te bereiken vanuit de slaapkamer.

In de woonkamer zorgen grote raampartijen voor veel licht en een uitzicht over het land. De woning is volledig afgewerkt met een laminaat vloer.

Het balkon is gelegen aan de kant van het vaste land en vanuit de woonkamer toegankelijk. Hier kunt u heerlijk genieten van de zon.

Bijzonderheden

  • Per direct beschikbaar;
  • Serviceflat;
  • Inpandige gezamenlijke berging;
  • VvE bijdrage: € 65,03 (de Vve is gezond)
  • Servicekosten € 128,51

Nieuwsgierig geworden naar dit fraaie appartement aan de Westerschelde? We plannen graag een bezichtiging met u in. Stuur een mail naar: ******, we nemen zo snel mogelijk contact met u op.

Overdracht

Vraagprijs
€ 210.000 k.k.
Aangeboden sinds
22-01-2026
Status
Beschikbaar
Beschikbaar
Per direct
Onderhoudsstaat
Goed

Oppervlakte en inhoud

Woonoppervlakte
63 m²
Inhoud
210 m³

VvE informatie

Inschrijving KvK
Ja
Jaarlijkse vergadering
Ja
Periodieke bijdrage
Ja (€ 65 per maand)
Reservefonds aanwezig
Ja
Onderhoudsplan
Ja
Opstalverzekering
Ja

Bouw

Type woning
Appartement
Soort woning
Portiekflat, Service flat
Soort bouw
Bestaande bouw
Bouwjaar
1993

Indeling

Aantal kamers
2
Aantal slaapkamers
1
Aantal badkamers
1
Aantal woonlagen
1
Verdieping
6

Buitenruimte

Balkon
Aanwezig
Dakterras
Niet aanwezig

Energie

Verwarming
Blokverwarming
Energielabel
B

Parkeergelegenheid

Aanwezig
Ja
Soort parkeergelegenheid
Openbaar
Meld een probleem met deze woning