Contact met de aanbieder

Deze woning is gevonden buiten ons eigen netwerk. Via de knop hieronder ga je direct naar de website van de aanbieder.

Nieuw

Molenweg 170

Bekijk kaart
6543 VH Nijmegen (Heseveld)
€ 575.000 k.k.
  • 129 m²
  • 5 kamers
  • 1962

Samenvatting

  • Deze woning wordt sinds 24 februari 2026 aangeboden door WOON Makelaars;
  • De tussenwoning heeft een woonoppervlakte van 129 m² en beschikt over 5 kamers, waarvan 2 slaapkamers;
  • De woning is gebouwd In 1962 en ligt in de buurt Heseveld in Nijmegen.

Beschrijving

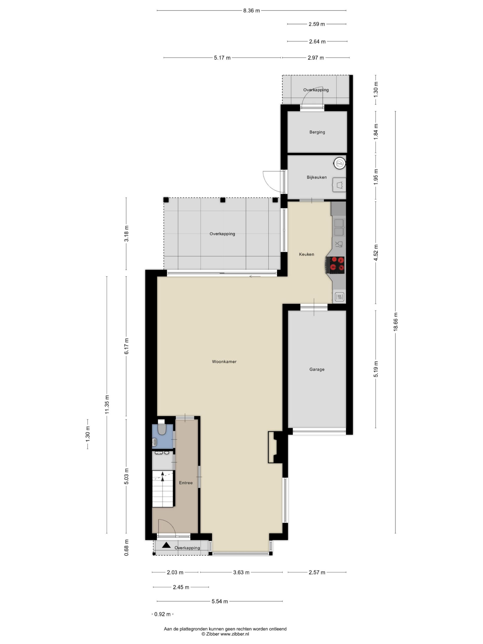
Welkom in deze perfect onderhouden, royaal uitgebouwde twee-onder-een-kapwoning uit 1962. Met ongeveer 130 m² woonoppervlakte, inclusief een uitbreiding van 40 m², biedt deze woning veel leefruimte en comfort. De praktische locatie bevindt zich nabij de basisschool en het stadspark van Hees, met het centrum van Nijmegen op slechts tien minuten fietsen. Je komt binnen in een verzorgde entree, waar de lichte woonkamer met erker en gashaard je verwelkomt. De half-open keuken is uitgerust met een granieten werkblad en hoogwaardige Miele apparatuur. De zonnige achtertuin biedt privacy door een hoge taxushaag. Op de eerste verdieping bevinden zich twee ruime slaapkamers, met de optie voor een derde, en twee badkamers. De zolderverdieping, bereikbaar via een vaste trap, bevat extra opslagruimte en een slaapkamer met dakkapel. Deze woning is een combinatie van onderhoud, comfort en ruimte, perfect voor gezinsleven.

Overdracht

Vraagprijs
€ 575.000 k.k.
Prijs per m²
€ 4.457
Aangeboden sinds
24-02-2026
Status
Beschikbaar
Beschikbaar
Per direct

Oppervlakte en inhoud

Woonoppervlakte
129 m²
Perceeloppervlakte
245 m²

Bouw

Type woning
Huis
Soort woning
Tussenwoning (rijtjeshuis), Eengezinswoning
Soort bouw
Bestaande bouw
Bouwjaar
1962

Indeling

Aantal kamers
5
Aantal slaapkamers
2
Aantal badkamers
1

Buitenruimte

Dakterras
Niet aanwezig

Energie

Energielabel
C
Meld een probleem met deze woning