Contact met de makelaar

Deze woning is gevonden buiten ons eigen netwerk. Met de knop hieronder kom je direct bij de aanbieder terecht.

Nieuw

Klarebeekweg 2

Bekijk kaart
3253 LC Ouddorp (Ouddorp klepperstee klarebeek)
€ 334.500 k.k.
  • 50 m²
  • 3 kamers
  • 2025

Samenvatting

  • Deze woning wordt sinds 28 januari 2026 aangeboden door Bezuijen Bemiddeling;
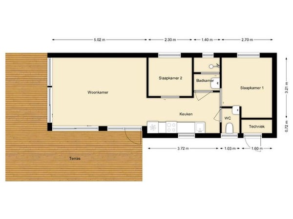
  • De tussenwoning heeft een woonoppervlakte van 50 m² en beschikt over 3 kamers, waarvan 2 slaapkamers;
  • De woning is gebouwd In 2025 en ligt in de buurt Ouddorp klepperstee klarebeek in Ouddorp.

Beschrijving

Welkom op Recreatieoord Duynhof, een nieuw recreatiepark in Ouddorp aan Zee. Deze vrijstaande New Bay chalet op eigen grond maakt deel uit van een kleinschalig park met slechts acht recreatiewoningen. De chalet heeft een open en lichte leefruimte, met een royale woonkamer die via grote schuifpuien toegang biedt tot een houten terras. De moderne keuken is uitgerust met hoogwaardige inbouwapparatuur en biedt ruimte voor maaltijden met vrienden of familie. Er zijn twee slaapkamers, waarbij de master bedroom extra comfort biedt. De moderne badkamer heeft een inloopdouche en een wastafelmeubel. Het zonnige terras en de speelse tuin zorgen voor privacy, en parkeren is dichtbij mogelijk. Ouddorp biedt volop natuur, winkels en eetgelegenheden. Dit is jouw kans op een tweede thuis aan de Nederlandse kust.

Overdracht

Vraagprijs
€ 334.500 k.k.
Aangeboden sinds
28-01-2026
Status
Beschikbaar
Beschikbaar
Per direct

Oppervlakte en inhoud

Woonoppervlakte
50 m²

Bouw

Type woning
Huis
Soort woning
Tussenwoning (rijtjeshuis), Eengezinswoning
Soort bouw
Bestaande bouw
Bouwjaar
2025

Indeling

Aantal kamers
3
Aantal slaapkamers
2
Aantal badkamers
1

Buitenruimte

Dakterras
Niet aanwezig
Meld een probleem met deze woning