Contact met de makelaar

Deze woning is gevonden buiten ons eigen netwerk. Met de knop hieronder kom je direct bij de aanbieder terecht.

Slotboomstraat 25

Bekijk kaart
3082 GM Rotterdam (Oud Charlois)
€ 425.000 k.k.
  • 131 m²
  • 4 kamers
  • 1934

Samenvatting

  • Deze woning wordt sinds 6 weken aangeboden door Woonvisie NVM Makelaars;
  • De tussenwoning heeft een woonoppervlakte van 131 m² en beschikt over 4 kamers, waarvan 2 slaapkamers;
  • De woning is gebouwd In 1934 en ligt in de buurt Oud Charlois in Rotterdam;
  • De woning beschikt onder andere over de volgende voorzieningen: Dakterras, Douche, Bergruimte, Toilet.

Beschrijving

Welkom aan de Slotboomstraat 25, een verrassend ruime woning in Rotterdam met een fijne achtertuin, maar liefst twee dakterrassen en tal van mogelijkheden om volledig naar eigen wens in te delen.

Middels de entree/ hal krijgt u toegang tot de verschillende vertrekken van de woning. De gehele benedenverdieping is nu in gebruik als werkruimte/atelier maar is helemaal naar eigen wens in te richten. Via de benedenverdieping krijgt u toegang tot de achtertuin met stenen berging en trapopgang naar het terras van de eerste verdieping. Op de eerste verdieping bevinden zich de gezellige en ruime woonkamer welke is gesitueerd aan de voorzijde van de woning. De open keuken in rechte opstelling is gelegen aan de achterzijde van de woning en biedt toegang tot het gezellige terras welke is gelegen op het westen. Via de vaste trap krijgt u toegang tot de tweede verdieping. Via de half betegelde badkamer krijgt u toegang tot de berging. Er bevinden zich twee slaapkamers waarvan één gelegen aan de voorzijde van de woning en één gelegen aan de achterzijde van de woning, via de slaapkamer krijgt u toegang tot het terras.

De woning is gelegen in een levendige en stedelijke buurt met alle dagelijkse voorzieningen binnen handbereik. Op korte afstand vindt u diverse winkels, supermarkten, speciaalzaken en gezellige eetgelegenheden. Ook zijn er meerdere scholen, kinderopvanglocaties en sportfaciliteiten in de directe omgeving, waardoor dit een ideale plek is voor zowel gezinnen als starters. Dankzij de goede bereikbaarheid zit u zo in het centrum van Rotterdam of juist op de uitvalswegen richting snelwegen. Openbaar vervoer, zoals bus, tram en metro, bevindt zich op loopafstand en biedt uitstekende verbindingen binnen de stad en daarbuiten. Daarnaast is er in de wijk volop groen te vinden, met verschillende plantsoenen en parken voor een ontspannen wandeling of om gewoon even tot rust te komen.

Kortom: een fijne, praktische en centraal gelegen woonomgeving met alles wat u nodig heeft dichtbij.

Begane grond:

  • Middels de entree krijgt u toegang tot de verschillende vertrekken;
  • In de gang bevindt zich de geheel betegelde toiletruimte;
  • Ruime benedenverdieping welke naar eigen wens is in te richten als bijvoorbeeld een woonruimte of werkruimte;
  • Via de benedenverdieping krijgt u toegang tot de achtertuin;

Eerste verdieping:

  • Middels de overloop krijgt u toegang tot de verschillende vertrekken;
  • Half betegelde toiletruimte welke is voorzien van een fonteintje;
  • De ruime en gezellige woonkamer is gelegen aan de voorzijde van de woning;
  • De open keuken in rechte opstelling met stenen werkblad is gelegen aan de achterzijde en is voorzien van een inductiekookplaat, afzuigkap, oven en vaatwasser;
  • Middels de keuken krijgt u toegang tot het terras;

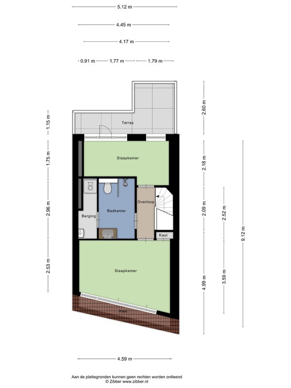
Tweede verdieping:

  • Middels de overloop krijgt u toegang tot de verschillende vertrekken;
  • De badkamer is voorzien van een inloopdouche, wastafel, toilet en designradiator;
  • Via de badkamer krijgt u toegang tot de berging met Cv-aansluiting en wasmachineaansluiting;
  • Slaapkamer 1 is gelegen aan de voorzijde van de woning;
  • Slaapkamer 2 is gelegen aan de achterzijde van de woning en biedt toegang tot het terras;

Buiten:

  • De woning is voorzien van een achtertuin en twee terrassen gelegen op de eerste en tweede verdieping. Er is een stenen berging in de achtertuin en een trap welke toegang biedt tot het terras op de eerste verdieping. Het terras op de eerste verdieping is via de keuken te bereiken en op de tweede verdieping is het terras te bereiken via de slaapkamer. De buitenruimtes zijn gelegen op het westen.

Bijzonderheden:

  • Bouwjaar: 1934;
  • Woonoppervlakte: ca. 131 m²;
  • Inhoud: ca. 464 m³;
  • Energielabel F;
  • Let op! Gelegen op erfpacht welke is afgekocht tot 31-12-2044;
  • Woning voorzien van een laminaat vloer;
  • Voorzien van kunststof kozijnen (grotendeels) en dubbele beglazing;
  • Verwarming en warmwater middels Cv-combiketel ( Eigendom| Remeha| 2014)
  • Voorzien van een alarminstallatie ( Verisure)
  • Valt onder de opkoopbescherming van Rotterdam;
  • Gezien het bouwjaar van de woning zal er een asbest- en ouderdomsclausule in de koopakte worden opgenomen;

De oplevering vindt plaats in overleg.

Alle verstrekte informatie moet beschouwd worden als een uitnodiging tot het doen van een bod of om in onderhandeling te treden.

Deze informatie is door ons met de nodige zorgvuldigheid samengesteld. Onzerzijds wordt echter geen enkele aansprakelijkheid aanvaard voor enige onvolledigheid, onjuistheid of anderszins, dan wel de gevolgen daarvan. Alle opgegeven maten en oppervlakten zijn indicatief. Van toepassing zijn de NVM voorwaarden.

In diverse wijken is er sprake van een opkoopbescherming. De opkoopbescherming houdt in een verbod om, na het aankopen van een woning vanaf één januari tweeduizend tweeëntwintig (1 januari 2022), deze te verhuren zonder vergunning, tenzij aan bepaalde voorwaarden is voldaan.
Meer informatie hierover is terug te vinden op de website van de gemeente Rotterdam (******)

Koopovereenkomst pas rechtsgeldig na ondertekening:
Een mondelinge overeenstemming tussen de particuliere verkoper en de particuliere koper is niet rechtsgeldig. Met andere woorden: er is geen koop. Er is pas sprake van een rechtsgeldige koop als de particuliere verkoper en de particuliere koper de koopovereenkomst hebben ondertekend. Dit vloeit voort uit artikel 7:2 Burgerlijk Wetboek. Een bevestiging van de mondelinge overeenstemming per e-mail of een toegestuurd concept van de koopovereenkomst wordt overigens niet gezien als een 'ondertekende koopovereenkomst'.

Toelichtingsclausule NEN2580:
De Meetinstructie is gebaseerd op de NEN2580. De Meetinstructie is bedoeld om een meer eenduidige manier van meten toe te passen voor het geven van een indicatie van de gebruiksoppervlakte. De Meetinstructie sluit verschillen in meetuitkomsten niet volledig uit, door bijvoorbeeld interpretatieverschillen, afrondingen of beperkingen bij het uitvoeren van de meting.

Overdracht

Vraagprijs
€ 425.000 k.k.
Aangeboden sinds
12-12-2025
Status
Beschikbaar
Beschikbaar
In overleg
Onderhoudsstaat
Goed

Oppervlakte en inhoud

Woonoppervlakte
131 m²
Perceeloppervlakte
91 m²
Inhoud
464 m³

Bouw

Type woning
Huis
Soort woning
Tussenwoning (rijtjeshuis), Eengezinswoning
Soort bouw
Bestaande bouw
Bouwjaar
1934
Ligging
  • Aan een rustige weg
  • In een woonwijk

Indeling

Aantal kamers
4
Aantal slaapkamers
2
Aantal badkamers
1
Aantal woonlagen
3
Voorzieningen
  • Dakterras
  • Douche
  • Bergruimte
  • Toilet

Buitenruimte

Balkon
Niet aanwezig
Tuin
Aanwezig (41 m², gelegen op het westen)
Tuinbeschrijving
achtertuin
Dakterras
Aanwezig

Energie

Isolatie
Dubbele beglazing, Vloerisolatie
Verwarming
CV-ketel
Warm water
CV-ketel
Cv-ketel
Remeha (Gas, uit 2014, Eigendom)
Energielabel
F

Bergruimte

Schuur/Berging
Aanwezig
Omschrijving
Aangebouwd steen

Parkeergelegenheid

Aanwezig
Ja
Soort parkeergelegenheid
Vergunning

Garage

Aanwezig
Nee
Meld een probleem met deze woning